Mitten im Zentrum von Euskirchen befindet sich dieses beeindruckende Investitionsobjekt. Das hochwertig sanierte Mehrfamilienhaus überzeugt durch seine zentrale Lage, solide Renditeaussichten und den hervorragenden Gesamtzustand.
Die Immobilie wurde im Jahr 2025 umfassend renoviert, um modernen Wohnansprüchen gerecht zu werden. Zu den jüngsten Sanierungsmaßnahmen zählen unter anderem die Erneuerung des Treppenhauses, der Balkone, der Fassade sowie des Kellers. Mit Raumhöhen von bis zu 3 Metern und großzügigen Kellerräumen bietet das Gebäude vielfältige Nutzungsmöglichkeiten und ein großzügiges Raumgefühl.
Die Lage könnte kaum besser sein: Nur zwei Gehminuten trennen Sie vom lebendigen Marktplatz von Euskirchen mit seinen zahlreichen Geschäften, Restaurants und Cafés. Eine Tiefgarage direkt gegenüber sorgt für komfortables Parken, und die geringen Nebenkosten machen das Objekt besonders attraktiv für Mieter und Investoren gleichermaßen.
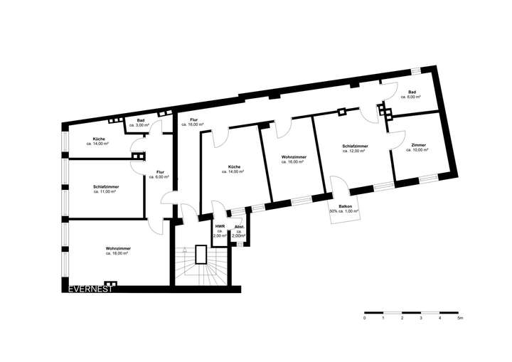
Das Mehrfamilienhaus verfügt über 13 Zimmer, 6 Badezimmer und 6 Küchen auf einer Wohnfläche von ca. 343 m², verteilt auf drei Etagen. Jedes Apartment besticht durch eine hochwertige Ausstattung und ein zeitloses Design. Mit monatlichen Mieteinnahmen von 3.215 € und einem Quadratmeterpreis von 2.114 € stellt diese Immobilie eine lukrative und zukunftssichere Kapitalanlage dar.
Das Objekt ist vollvermietet und erwirtschaftet stabile Einnahmen – eine Investition, die Sicherheit und Wertbeständigkeit bietet.
Nutzen Sie diese Gelegenheit und sichern Sie sich ein Stück Euskirchener Lebensqualität in bester Innenstadtlage. Vereinbaren Sie noch heute einen Besichtigungstermin und lassen Sie sich von diesem attraktiven Angebot überzeugen.
Attraktives Mehrfamilienhaus im Zentrum von Euskirchen mit 6 Wohneinheiten
53879 Euskirchen
Die vollständige Adresse der Immobilie erhalten Sie vom Anbieter.
Auf Karte anzeigen
Die vollständige Adresse der Immobilie erhalten Sie vom Anbieter.
Finanzierungszertifikat
In nur zwei Minuten zu Ihrem persönlichen Finanzierungszertifkat.
Infos
| Haustyp | Mehrfamilienhaus |
|---|---|
| Etagenzahl | 3 |
| Wohnfläche ca. | 343 m2 |
| Nutzfläche | 11 m2 |
| Grundstücksfläche | 185 m2 |
| Zimmer | 13 |
| Schlafzimmer | 13 |
| Badezimmer | 6 |
Kosten
| Kaufpreis |
725.000 € |
|---|---|
| Provision |
5.98 % inkl. MwSt. Bei Abschluss eines notariellen Kaufvertrages ist eine Käuferprovision vom Käufer in Höhe von 5.98 % inkl. MwSt. aus dem Kaufpreis fällig. |
| Mieteinnahmen | 3.215 € |
Finanzierungsrechner:
Kaufpreis:
600.000 €
Eigenkapital:
600.000 €
Monatliche Rate
0 €
Effektiver Jahreszins
0 %
Sollzinsbindung
10 Jahre
Bausubstanz & Energieausweis
| Baujahr | 1974 |
|---|---|
| Letzte Sanierung | 2025 |
| Objektzustand | Modernisiert |
| Qualität der Austattung | Normal |
| Heizungsart | Gas-Heizung |
| Wesentliche Energieträger | Gas |
| Energieausweis | liegt vor |
| Energieausweistyp | Bedarfsausweis |
| Energieverbrauchskennwert | 129,0 kWh/(m²*a) |
| Energieeffizienzklasse | D |
129,0
kWh/(m²*a)
Energieeffizienzklasse D
- A+
- A
- B
- C
- D
- E
- F
- G
- H
- 0
- 25
- 50
- 75
- 100
- 125
- 150
- 175
- 200
- 225
- >250
Beschreibung des Objekts
Ausstattung
Schöne Küchen
aufwendig sanierte Bäder
tolle Fliesen im Wohn-Essbereich
Balkon
großzügige Räume
3 m Deckenhöhe
Lage
Euskirchen ist eine lebendige Kreisstadt im Süden Nordrhein-Westfalens, gelegen in der fruchtbaren Zülpicher Börde am nördlichen Rand der Eifel. Die Stadt befindet sich etwa 25 Kilometer südwestlich von Bonn und 35 Kilometer südlich von Köln und verbindet damit die Ruhe des ländlichen Umlands mit der Nähe zu zwei bedeutenden Metropolregionen.
Durch das Stadtzentrum fließt der Veybach, während die Erft das gesamte Stadtgebiet durchzieht und zur charakteristischen Landschaft beiträgt. Die historische Altstadt, die innerhalb der ehemaligen Stadtmauer liegt, beherbergt heute die charmante Fußgängerzone mit zahlreichen Einkaufsmöglichkeiten, Cafés und Restaurants und bildet das lebendige Herz der Stadt.
Euskirchen verfügt über eine hervorragende Verkehrsanbindung: Über die Autobahnen A1 und A61 ist die Stadt optimal in das überregionale Straßennetz eingebunden. Zudem besteht eine sehr gute Bahnanbindung an Köln, Bonn und die umliegenden Regionen durch mehrere Regionalbahnlinien.
Darüber hinaus bietet Euskirchen ein hohes Maß an Lebensqualität – mit vielfältigen Parks, Grünflächen und Naherholungsgebieten in unmittelbarer Umgebung. Neben seiner attraktiven Wohnlage ist Euskirchen auch ein bedeutender Wirtschaftsstandort mit einer breit aufgestellten Unternehmenslandschaft und einem starken Mittelstand.
Die Kombination aus zentraler Lage, guter Infrastruktur und angenehmer Wohnatmosphäre macht Euskirchen zu einem attraktiven Standort für Wohnen, Arbeiten und Investieren.
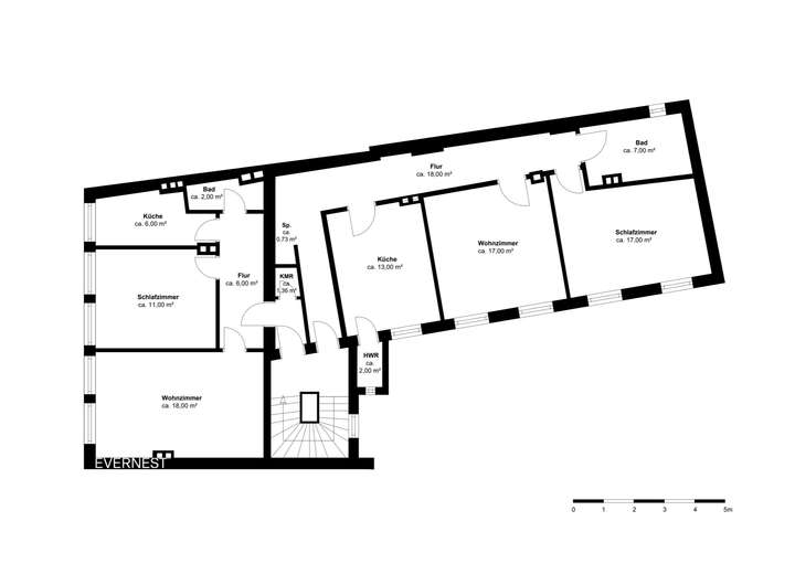
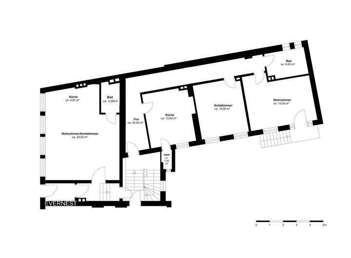
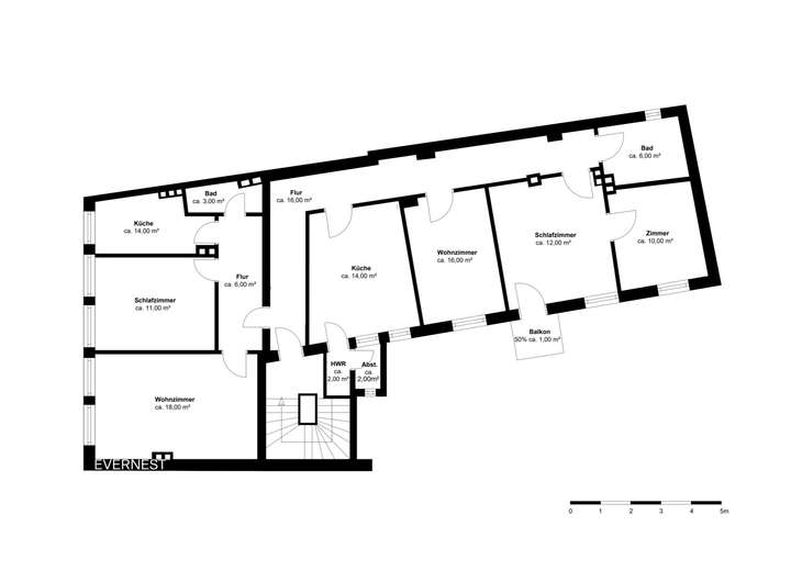
Grundriss
Erdgeschoss
>
>
1.Obergeschoss
>
>
2.Obergeschoss
>
>
Adresse
53879 Euskirchen
Interessante Orte
Preis- und Lageinformationen
Preistrend für Bestandsimmobilien in Euskirchen