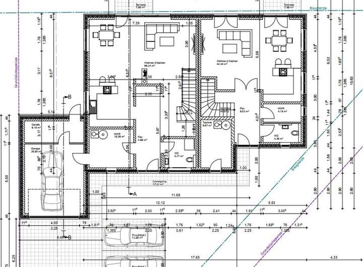
Neubau-Doppelhaushälfte (Links) im KfW Effizienzhaus 40-NH Standard mit moderner Technik, Garage und gehobener Ausstattung- Schlüsselfertig. Diese moderne Doppelhaushälfte bietet mit ca. 175 m² Wohnfläche und rund 45 m² zusätzlicher Nutzfläche großzügig Platz für die ganze Familie. Auf einem ca. 365 m² großen Grundstück vereint sie zeitgemäßes Wohnen mit energieeffizienter Technik und gehobener Ausstattung. Die Immobilie erfüllt den KfW-Effizienzhaus-40-NH-Standard und befindet sich aktuell in der finalen Phase des Innenausbaus. Als Käufer haben Sie dadurch noch die Möglichkeit, bei der Auswahl von Bodenbelägen, Badezimmerausstattung und Küchenplanung mitzuwirken. – Erdgeschoss - großzügiger Wohnbereich mit direktem Zugang zur Terrasse – Der Eingangsbereich ist offen und lichtdurchflutet gestaltet. Die hochwertige Haustür lässt sich bequem per PIN-Code öffnen und bietet einen barrierefreien Zugang. Direkt im Eingangsbereich befindet sich das großzügige Gäste-WC mit ebenerdiger Dusche. Auf der gegenüberliegenden Seite liegt der große Garderobenbereich mit angrenzendem Technikraum, der zusätzlich ausreichend Abstellfläche bietet. Von hier besteht direkter Zugang zur Garage, in der sich zudem ein separater Hauswirtschaftsraum mit Zugang zum Garten befindet. Die Garage wird mit einem elektrischen Garagentor ausgestattet und bietet zusätzlich Stellmöglichkeiten für Fahrräder oder eine Werkstatt. Das Herzstück der Doppelhaushälfte bildet der großzügige Wohn-, Ess- und Kochbereich mit rund 69,24 m². Eine offene Raumgestaltung, große Fensterflächen sowie der stilvolle Kaminofen schaffen eine besonders wohnliche Atmosphäre. Die bereits geplante U-förmige Einbauküche fügt sich hochwertig in das Gesamtbild ein, während gezielte Ambientebeleuchtung für ein gemütliches Lichtkonzept sorgt. Die angrenzende Terrasse ist direkt vom Wohnbereich aus zugänglich und erweitert das Wohnerlebnis nach draußen. – Obergeschoss - Rückzugsort mit viel Raum für die ganze Familie – Eine moderne Kragarmtreppe führt ins Obergeschoss, entlang der Wand verlaufen sechs dimmbare LED-Lichtleisten, die für ein stilvolles und indirektes Beleuchtungskonzept sorgen. Hier befindet sich das Elternschlafzimmer mit angrenzender, begehbarer Ankleide. Die Ankleide ist durch eine seitlich gesetzte Wand vom Schlafbereich abgegrenzt und schafft so eine angenehme Trennung bei gleichzeitig offener Raumwirkung. Zwei weitere helle und großzügige Kinderzimmer mit ca. 15 und 16 m² bieten zusätzlich ausreichend Platz. Das Hauptbadezimmer ist großzügig geplant und umfasst eine freistehende Badewanne, ein Doppelwaschbecken sowie eine große, ebenerdige Dusche mit zusätzlicher Ambientebeleuchtung. Die gesamte Ausstattung ist hochwertig und auf einem modernen Standard. Alle Fenster sind dreifach verglast, verfügen über Wärmeschutzverglasung und sind mit elektrischen Außenrollos ausgestattet. Eine zentrale Lüftungsanlage mit Wärmerückgewinnung sorgt für ein angenehmes Raumklima. Das integrierte Smart-Home-System ermöglicht eine komfortable Steuerung von Beleuchtung, Rollläden und weiteren Funktionen – wahlweise über Wanddisplay oder App. Für die Beheizung sorgt eine Luft-Wasser-Wärmepumpe mit 7 kW Leistung. Zusätzlich ist eine Photovoltaikanlage mit 10 kW und ein 5 kWh-Stromspeicher installiert – ein starker Beitrag zur Eigenstromversorgung und zur Senkung der Energiekosten. Im Außenbereich stehen Strom- und Wasseranschlüsse zur Verfügung, was besonders für Gartenarbeit oder Elektrogeräte im Freien praktisch ist. – Komfort- und Technikausstattung im Detail – - Neubau 2024 – KfW-Effizienzhaus 40 NH Standard - Beheizung über moderne Luft-Wasser-Wärmepumpe (7 kW) - Fußbodenheizung auf beiden Wohnetagen - Zentrale Be- und Entlüftungsanlage mit Wärmerückgewinnung - Photovoltaikanlage mit 10 kW und 5 kWh-Stromspeicher - Smart-Home-System (zentral steuer
Hochwertige Doppelhaushälfte KfW 40-NH mit insgesamt 220 m² Wohn-und Nutzfläche
Am Bienenzaun 26,
29303 Bergen
Auf Karte anzeigen

Finanzierungszertifikat
In nur zwei Minuten zu Ihrem persönlichen Finanzierungszertifkat.
Infos
Haustyp | Doppelhaushaelfte |
---|---|
Etagenzahl | 2 |
Wohnfläche ca. | 175 m2 |
Nutzfläche | 44,6 m2 |
Grundstücksfläche | 365 m2 |
Bezugsfrei ab | Oktober 2025 |
Zimmer | 4 |
Schlafzimmer | 3 |
Badezimmer | 2 |
Anzahl Garage/Stellplatz | 3 |
Kosten
Kaufpreis |
495.000 € |
---|---|
Provision |
3,57 % inkl. MwSt. |
Finanzierungsrechner:
Kaufpreis:
600.000 €
Eigenkapital:
600.000 €
Monatliche Rate
0 €
Effektiver Jahreszins
0 %
Sollzinsbindung
10 Jahre
Bausubstanz & Energieausweis
Baujahr | 2024 |
---|---|
Objektzustand | Erstbezug |
Qualität der Austattung | Gehoben |
Heizungsart | Wärmepumpe |
Energieausweis | liegt zur Besichtigung vor |
Beschreibung des Objekts
Lage
Die Immobilie befindet sich in einem ruhigen Neubaugebiet am südwestlichen Stadtrand von Bergen, im Landkreis Celle in Niedersachsen. Die Nachbarschaft ist geprägt von neu errichteten Einfamilienhäusern in moderner Bauweise und bietet eine angenehme, familienfreundliche Atmosphäre. Durch die verkehrsberuhigte Umgebung und die überschaubare Bebauung ist ein entspanntes und sicheres Wohnen gewährleistet – ideal für Familien mit Kindern, Paare oder Ruhesuchende. Das Stadtzentrum von Bergen ist nur wenige Minuten entfernt und bietet eine gute Infrastruktur mit Einkaufsmöglichkeiten, Schulen, Kindergärten, Ärzten und weiteren Dienstleistern des täglichen Bedarfs. Die Anbindung über die Bundesstraße B3 sorgt zudem für eine schnelle Erreichbarkeit der Städte Celle, Soltau und Hannover, was die Lage auch für Berufspendler attraktiv macht. Die direkte Nähe zur Lüneburger Heide und zum Naturschutzgebiet Südheide eröffnet vielfältige Möglichkeiten zur aktiven Freizeitgestaltung in der Natur. Ob Spaziergänge, Radtouren oder Ausflüge – die Umgebung bietet ein hohes Maß an Lebensqualität. Neben der attraktiven Wohnlage ist der Standort auch aus Sicht von Kapitalanlegern interessant. Durch die Beliebtheit ruhiger, naturnaher Lagen mit gleichzeitig guter Verkehrsanbindung bestehen solide Vermietungschancen, insbesondere für Familien oder Berufstätige, die ein ruhiges Umfeld schätzen. Insgesamt verbindet die Lage ruhiges Wohnen im Grünen mit guter Erreichbarkeit und moderner Infrastruktur – eine Kombination, die sowohl für Eigennutzer als auch für Investoren von Interesse ist.
Sonstige Angaben
GELDWÄSCHE: Als Immobilienmaklerunternehmen ist die Firma "Die Heide Immobilien" nach § 2 Abs. 1 Nr. 14 und § 10 Abs. 3 Geldwäschegesetz (GwG) dazu verpflichtet, beim Eingehen einer Geschäftsbeziehung, die Identität des Vertragspartners festzustellen und zu überprüfen. Dafür ist es nötig, dass wir nach § 11 GwG die relevanten Daten Ihres Personalausweises z.B. mittels einer Kopie festhalten, wenn Sie als natürliche Person handeln. Bei einer juristischen Person ist eine Kopie des Handelsregisterauszugs, aus welchem der wirtschaftlich Berechtigte hervorgeht, nötig. Das Geldwäschegesetz sieht vor, dass der Makler die Kopien bzw. Unterlagen fünf Jahre aufbewahren muss. HAFTUNG: Wir weisen darauf hin, dass sämtliche Daten in dieser Offerte auf Angaben unserer Auftraggeber basieren. Trotz sorgfältiger Prüfung können wir keine Gewähr für die Richtigkeit der Daten übernehmen. Ebenso wird keine Haftung für Vollständigkeit, Richtigkeit und Aktualität des Verkaufsobjektes übernommen. Alle Immobilienangebote sind freibleibend und vorbehaltlich Irrtümer, Zwischenverkauf und Vermietung oder sonstiger Zwischenverwertung. URHEBERRECHT: Sämtliche Bilder und grafische Darstellungen sind Eigentum von "Die Heide Immobilien" und dürfen nicht durch Dritte verwendet oder weitergegeben werden. WEITERE KOSTEN: Die weiteren Kosten, die im Zusammenhang mit dem Erwerb dieser Immobilien entstehen: 5,0 % Grunderwerbsteuer 1,5 % Notar und Gerichtskosten 3,57 % Maklerprovision
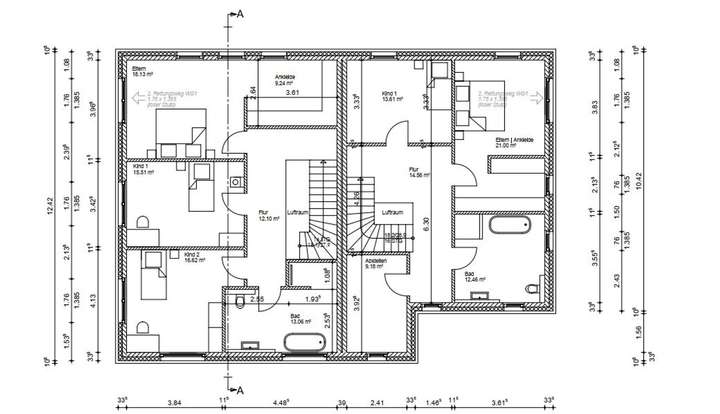
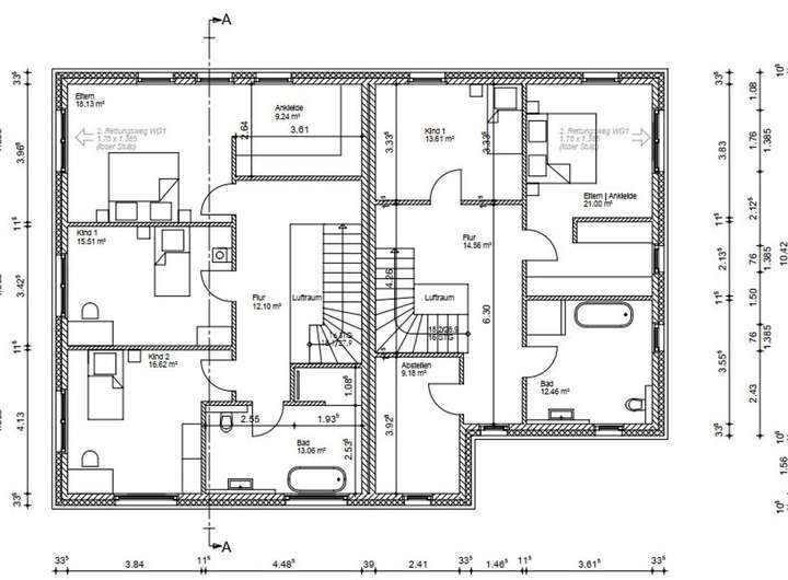
Grundriss
Linke Haushälfte Grundriss EG
>

Linke Haushälfte Grundriss OG
>

Adresse
Am Bienenzaun 26, 29303 Bergen
Interessante Orte
Preis- und Lageinformationen
Preistrend für Bestandsimmobilien in Bergen