Moderne vermietete Neubau-Doppelhaushälfte (Rechts) im KfW-Effizienzhaus 40-NH Standard mit Doppelcarport, PV-Anlage und gehobener Ausstattung. Diese hochwertig ausgestattete Doppelhaushälfte bietet auf ca. 142 m² Wohnfläche sowie rund 13 m² zusätzlicher Nutzfläche ein modernes und komfortables Zuhause. Das ca. 391 m² große Grundstück ist ideal für Familien, die großzügiges und energieeffizientes Wohnen schätzen. Die Immobilie erfüllt den KfW-Effizienzhaus-40-NH-Standard und ist bereits fertiggestellt. Sie ist aktuell für 1.500 € Kaltmiete langfristig vermietet – ideal als Kapitalanlage. – Erdgeschoss- durchdachter Grundriss mit großzügigem Wohnbereich – Der barrierefreie Eingangsbereich bietet einen komfortablen Zugang ins Haus. Direkt rechts befinden sich das Gäste-WC sowie der angrenzende Hauswirtschaftsraum. Gegenüber liegt ein großzügiger Garderobenbereich mit zusätzlicher Abstellfläche sowie einem separaten Zugang nach draußen. Der offen gestaltete Wohn- und Essbereich mit angrenzender, hochwertiger U-förmiger Einbauküche bildet das Herzstück des Hauses. Mit einer Wohnfläche von 44,34 m², großen Fensterflächen und direktem Zugang zur Terrasse entsteht ein lichtdurchfluteter, freundlicher Raum mit viel Platz für Familie und Gäste. – Obergeschoss- idealer Rückzugsort für Familien – Eine moderne Treppe mit zwei stilvollen LED-Lichtleisten an der Wand führt ins Obergeschoss, wo sich das großzügige Elternschlafzimmer mit begehbarem Ankleidezimmer befindet. Ein helles Kinderzimmer mit ca. 14 m² sowie ein Büro mit ca. 9 m² bieten ausreichend Platz für individuelle Nutzung. Der Flur ist hell und offen gestaltet. Das Badezimmer ist hochwertig ausgestattet mit freistehender Badewanne und großer, ebenerdiger Dusche mit Ambientebeleuchtung. Auch hier sorgen große Fenster für viel Tageslicht und eine angenehme Wohnatmosphäre. Die Doppelhaushälfte ist mit modernen Materialien und zeitgemäßer Technik ausgestattet. Alle Fenster sind dreifach verglast, verfügen über Wärmeschutzverglasung und sind mit elektrischen Außenrollos versehen. Die Beheizung erfolgt über eine effiziente Luft-Wasser-Wärmepumpe mit 5 kW Leistung. Zusätzlich wird eine Photovoltaikanlage mit 10 kW Leistung und ein 5 kWh-Stromspeicher installiert – ein starker Beitrag zur Eigenstromversorgung und zur Reduzierung der Energiekosten. Ein Doppelcarport befindet sich in der Planung und wird zeitnah realisiert. Im Außenbereich stehen Strom- und Wasseranschlüsse zur Verfügung, was besonders für Gartenarbeit oder Elektrogeräte im Freien praktisch ist. – Technische Ausstattung im Überblick – - Neubau 2024 – KfW-Effizienzhaus 40 NH Standard - Luft-Wasser-Wärmepumpe mit 5 kW Leistung - Fußbodenheizung auf beiden Wohnetagen - Photovoltaikanlage mit 10 kW und 5 kWh-Stromspeicher - Dreifachverglaste Fenster mit Wärmeschutzverglasung - Elektrische Außenrollläden - Hochwertige Einbauküche inklusive - Barrierefreier Zugang - Wasser- und Stromanschluss im Außenbereich - Doppelcarport in Planung – Erdgeschoss Wohnfläche – - Wohnfläche gesamt ca. 71,29 m² - Wohn-/Essbereich mit offener Küche ca. 44,34 m² - Eingangsbereich/Flur ca. 9,53 m² - Gäste-WC ca. 4,36 m² - Hauswirtschaftsraum ca. 4,19 m² - Garderobe/Abstellfläche ca. 8,87 m² – Obergeschoss Wohnfläche – - Wohnfläche gesamt ca. 70,81 m² - Elternschlafzimmer mit Ankleide ca. 21 m² - Kinderzimmer 1 ca. 13,61 m² - Büro ca. 9,18 m² - Badezimmer ca. 12,46 m² - Flur ca. 14,56 m² Es besteht zusätzlich die Möglichkeit, beide Doppelhaushälften zu erwerben – ideal für Käufer, die eine Einheit selbst nutzen und die andere als Kapitalanlage halten möchten. Die hier angebotene Haushälfte ist bereits langfristig für 1.500 € kalt vermietet. Die benachbarte Haushälfte befindet sich noch im Innenausbau – Käufer haben hier die Chance, bei der finalen Ges
Vermietete hochwertige Doppelhaushälfte im KfW 40-NH Standard – attraktive Kapitalanlage
29303 Bergen
Die vollständige Adresse der Immobilie erhalten Sie vom Anbieter.
Auf Karte anzeigen
Die vollständige Adresse der Immobilie erhalten Sie vom Anbieter.

Finanzierungszertifikat
In nur zwei Minuten zu Ihrem persönlichen Finanzierungszertifkat.
Infos
Haustyp | Doppelhaushaelfte |
---|---|
Etagenzahl | 2 |
Wohnfläche ca. | 142 m2 |
Nutzfläche | 13,06 m2 |
Grundstücksfläche | 391 m2 |
Bezugsfrei ab | sofort |
Zimmer | 4 |
Schlafzimmer | 3 |
Badezimmer | 1 |
Garage/Stellplatz | Carport |
Anzahl Garage/Stellplatz | 2 |
Kosten
Kaufpreis |
495.000 € |
---|---|
Provision |
3,57 % inkl. MwSt. |
Finanzierungsrechner:
Kaufpreis:
600.000 €
Eigenkapital:
600.000 €
Monatliche Rate
0 €
Effektiver Jahreszins
0 %
Sollzinsbindung
10 Jahre
Bausubstanz & Energieausweis
Baujahr | 2024 |
---|---|
Objektzustand | Erstbezug |
Qualität der Austattung | Gehoben |
Heizungsart | Wärmepumpe |
Energieausweis | liegt zur Besichtigung vor |
Beschreibung des Objekts
Lage
Die Immobilie befindet sich in einem ruhigen Neubaugebiet am südwestlichen Stadtrand von Bergen, im Landkreis Celle in Niedersachsen. Die Nachbarschaft ist geprägt von neu errichteten Einfamilienhäusern in moderner Bauweise und bietet eine angenehme, familienfreundliche Atmosphäre. Durch die verkehrsberuhigte Umgebung und die überschaubare Bebauung ist ein entspanntes und sicheres Wohnen gewährleistet – ideal für Familien mit Kindern, Paare oder Ruhesuchende. Das Stadtzentrum von Bergen ist nur wenige Minuten entfernt und bietet eine gute Infrastruktur mit Einkaufsmöglichkeiten, Schulen, Kindergärten, Ärzten und weiteren Dienstleistern des täglichen Bedarfs. Die Anbindung über die Bundesstraße B3 sorgt zudem für eine schnelle Erreichbarkeit der Städte Celle, Soltau und Hannover, was die Lage auch für Berufspendler attraktiv macht. Die direkte Nähe zur Lüneburger Heide und zum Naturschutzgebiet Südheide eröffnet vielfältige Möglichkeiten zur aktiven Freizeitgestaltung in der Natur. Ob Spaziergänge, Radtouren oder Ausflüge – die Umgebung bietet ein hohes Maß an Lebensqualität. Neben der attraktiven Wohnlage ist der Standort auch aus Sicht von Kapitalanlegern interessant. Durch die Beliebtheit ruhiger, naturnaher Lagen mit gleichzeitig guter Verkehrsanbindung bestehen solide Vermietungschancen, insbesondere für Familien oder Berufstätige, die ein ruhiges Umfeld schätzen. Insgesamt verbindet die Lage ruhiges Wohnen im Grünen mit guter Erreichbarkeit und moderner Infrastruktur – eine Kombination, die sowohl für Eigennutzer als auch für Investoren von Interesse ist.
Sonstige Angaben
GELDWÄSCHE: Als Immobilienmaklerunternehmen ist die Firma "Die Heide Immobilien" nach § 2 Abs. 1 Nr. 14 und § 10 Abs. 3 Geldwäschegesetz (GwG) dazu verpflichtet, beim Eingehen einer Geschäftsbeziehung, die Identität des Vertragspartners festzustellen und zu überprüfen. Dafür ist es nötig, dass wir nach § 11 GwG die relevanten Daten Ihres Personalausweises z.B. mittels einer Kopie festhalten, wenn Sie als natürliche Person handeln. Bei einer juristischen Person ist eine Kopie des Handelsregisterauszugs, aus welchem der wirtschaftlich Berechtigte hervorgeht, nötig. Das Geldwäschegesetz sieht vor, dass der Makler die Kopien bzw. Unterlagen fünf Jahre aufbewahren muss. HAFTUNG: Wir weisen darauf hin, dass sämtliche Daten in dieser Offerte auf Angaben unserer Auftraggeber basieren. Trotz sorgfältiger Prüfung können wir keine Gewähr für die Richtigkeit der Daten übernehmen. Ebenso wird keine Haftung für Vollständigkeit, Richtigkeit und Aktualität des Verkaufsobjektes übernommen. Alle Immobilienangebote sind freibleibend und vorbehaltlich Irrtümer, Zwischenverkauf und Vermietung oder sonstiger Zwischenverwertung. URHEBERRECHT: Sämtliche Bilder und grafische Darstellungen sind Eigentum von "Die Heide Immobilien" und dürfen nicht durch Dritte verwendet oder weitergegeben werden. WEITERE KOSTEN: Die weiteren Kosten, die im Zusammenhang mit dem Erwerb dieser Immobilien entstehen: 5,0 % Grunderwerbsteuer 1,5 % Notar und Gerichtskosten 3,57 % Maklerprovision
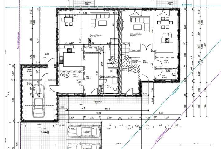
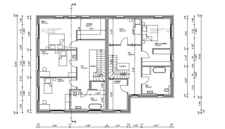
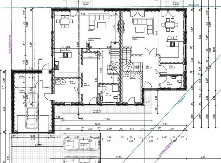
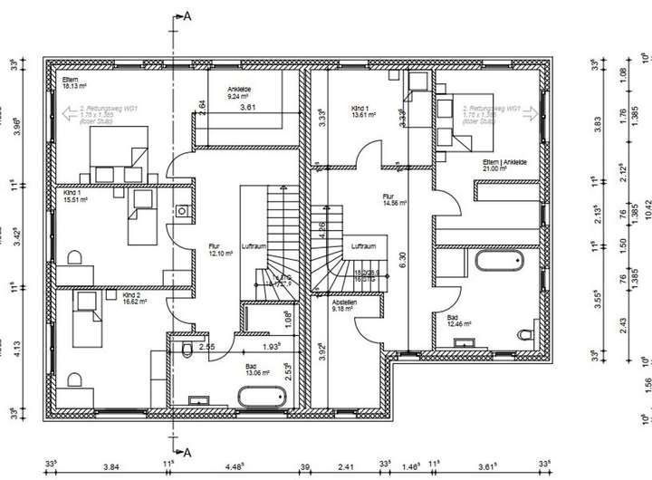
Grundriss
Rechte Haushälfte Grundriss EG
>

Rechte Haushälfte Grundriss OG
>

Adresse
29303 Bergen
Interessante Orte
Preis- und Lageinformationen
Preistrend für Bestandsimmobilien in Bergen