Sie suchen ein Wohnhighlight in Emden? Hier werden Sie fündig! Dieses Immobilienangebot präsentiert sich in zentraler Lage von Emden und lässt keine Wünsche offen. Lassen Sie sich von den zahlreichen Highlights dieser Immobilie faszinieren und erleben Sie Wohnkomfort auf hohem Niveau. Die sanierte Stadtvilla wurde 1950 in konventioneller Massivbauweise mit einem Walmdach errichtet. Das Haus besticht durch eine zeitlose Architektur und einem sanierten, modernen Zustand. 2020 sowie in den darauffolgenden Jahren wurde die Villa umfangreich liebevoll saniert (vgl. Aufstellung). Beim Betreten des Eingangsbereiches fällt sofort die harmonische Gestaltung, die Wertigkeit und die besondere Atmosphäre auf. Hohe Decken, Marmorböden und sprossenverglaste Fenster unterstreichen den besonderen Charme dieser Immobilie. Die hochwertige Einbauküche mit Markengeräten lädt Sie zu ausgedehnten Kochabende ein. Die formschönen Kunststofffenster sind mit einer Iso-/Sprossenverglasung ausgestattet. Beheizt wird das Objekt durch eine Gas-Z.-Heizung (BJ: 2020). Der über die Jahre mit viel Liebe angelegte Garten erfüllt alle Ansprüche an einen klassischen Garten und bietet zu jeder Tages- und Jahreszeit ideale Rückzugsorte und diverse Lieblingsplätze. Eine Immobilie für Menschen die Wohnqualität mit Lebensqualität verbinden und dieses besondere Immobilienangebot zu schätzen wissen. Hier können Sie Ihren Wohnraum wahr werden lassen und die Vorzüge einer gehobenen Lebensqualität in vollen Zügen genießen.
Sanierte Stadtvilla mit gehobener Ausstattung, Garage, Garten und Terrasse in zentraler Lage!
26721 Emden
Die vollständige Adresse der Immobilie erhalten Sie vom Anbieter.
Auf Karte anzeigen
Die vollständige Adresse der Immobilie erhalten Sie vom Anbieter.
Finanzierungszertifikat
In nur zwei Minuten zu Ihrem persönlichen Finanzierungszertifkat.
Infos
| Haustyp | Einfamilienhaus |
|---|---|
| Wohnfläche ca. | 230 m2 |
| Nutzfläche | 90 m2 |
| Grundstücksfläche | 735 m2 |
| Bezugsfrei ab | Nach Absprache |
| Zimmer | 7 |
| Schlafzimmer | 6 |
| Badezimmer | 2 |
Kosten
| Kaufpreis |
499.900 € |
|---|---|
| Provision |
Die Maklerprovision beträgt für den Käufer 3,57% vom Kaufpreis inkl. ges. MwSt.. |
Finanzierungsrechner:
Kaufpreis:
600.000 €
Eigenkapital:
600.000 €
Monatliche Rate
0 €
Effektiver Jahreszins
0 %
Sollzinsbindung
10 Jahre
Bausubstanz & Energieausweis
| Baujahr | 1953 |
|---|---|
| Objektzustand | Vollständig Renoviert |
| Heizungsart | Fußbodenheizung |
| Wesentliche Energieträger | Gas |
| Energieausweis | liegt vor |
| Energieausweistyp | Bedarfsausweis |
| Energieverbrauchskennwert | 162,9 kWh/(m²*a) |
| Energieeffizienzklasse | F |
162,9
kWh/(m²*a)
Energieeffizienzklasse F
- A+
- A
- B
- C
- D
- E
- F
- G
- H
- 0
- 25
- 50
- 75
- 100
- 125
- 150
- 175
- 200
- 225
- >250
Beschreibung des Objekts
Ausstattung
Besondere Ausstattungsmerkmale/Durchgeführte Renovierungsmaßnahmen:
-2003 Erneuerung Dach inkl. Dämmung
-2020 Durchführung der aufwendigen Sanierung: Erneuerung der Gas-Z.-Heizung, Einbauküche im Landhausstil, Gäste-WC, Badezimmer mit begehbarer Dusche, Kunststofffenster, Bodenbeläge
-Neue Elektrik
-Fußbodenheizung auf allen Etagen
-Infrarot-Sauna im Bad
-Elektrische Markisen (Esszimmer u. Balkon)
-Fensterläden
-PKW-Garage sowie zwei PKW-Einstellplätze
-Liebevoll angelegter Garten mit Pavillon und Rosenbogen aus Edelrost
-2023 Erneuerung folgender Küchengeräte: Miele Backofen mit Pyrolyse, Miele Dampfgarer, NEF Induktionsfeld, Miele Spülmaschine, Liebherr Kühlschrank, im Abstellraum Liebherr TK, Quooker mit 7l Tank sowie Kohlensäure
-2023 Erneuerung Bodenbelag im Balkonzimmer (Vinyl-Design Belag)
-2023/24 Maler-/Raumarbeiten durchgeführt
-Badezimmer-Ausstattung mit Villeroy&Boch Spiegelschrank, Unterschrank und Waschbecken
-Marmortreppe
-Gefliester Keller
-Biohort
Lage
26721 Emden (Zentrale Lage, Bildungseinrichtungen, Krankenhaus, Ärzte, Rewe und weitere Einkaufsmöglichkeiten in fußläufiger Entfernung, gute ÖPNV, ausgewogene Infrastruktur, gute Verkehrsanbindung zur A-31, Nähe zur Fachhochschule und zum Emder VW-Werk)
Sonstige Angaben
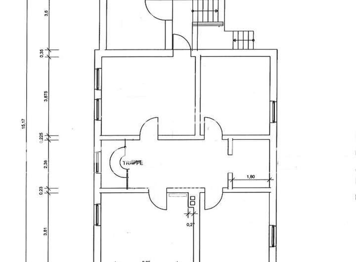
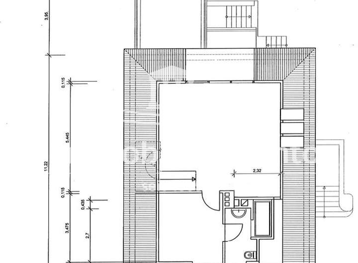
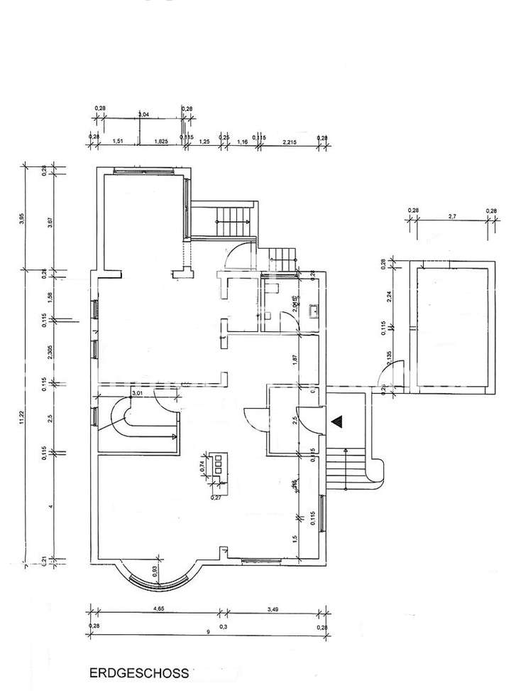
EG: Windfang, Flur, Büro, gr. Schlafzimmer, WC, Küche mit Essbereich, Arbeitszimmer
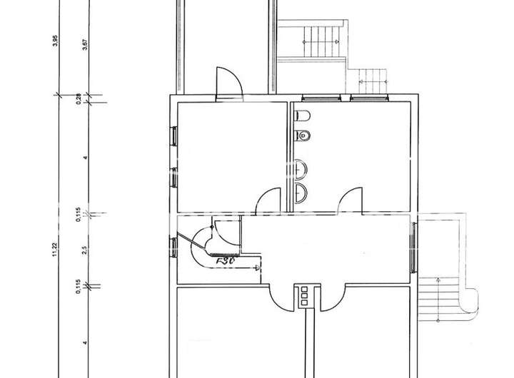
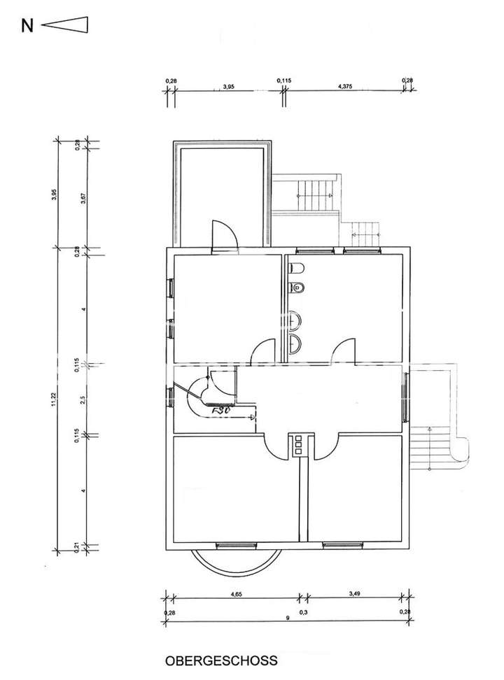
OG:Flur/Diele, 2x Kinderzimmer, Schlafzimmer mit Zugang zur Dachterrasse, Vollbad mit Infrarotsauna
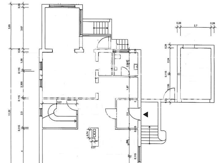
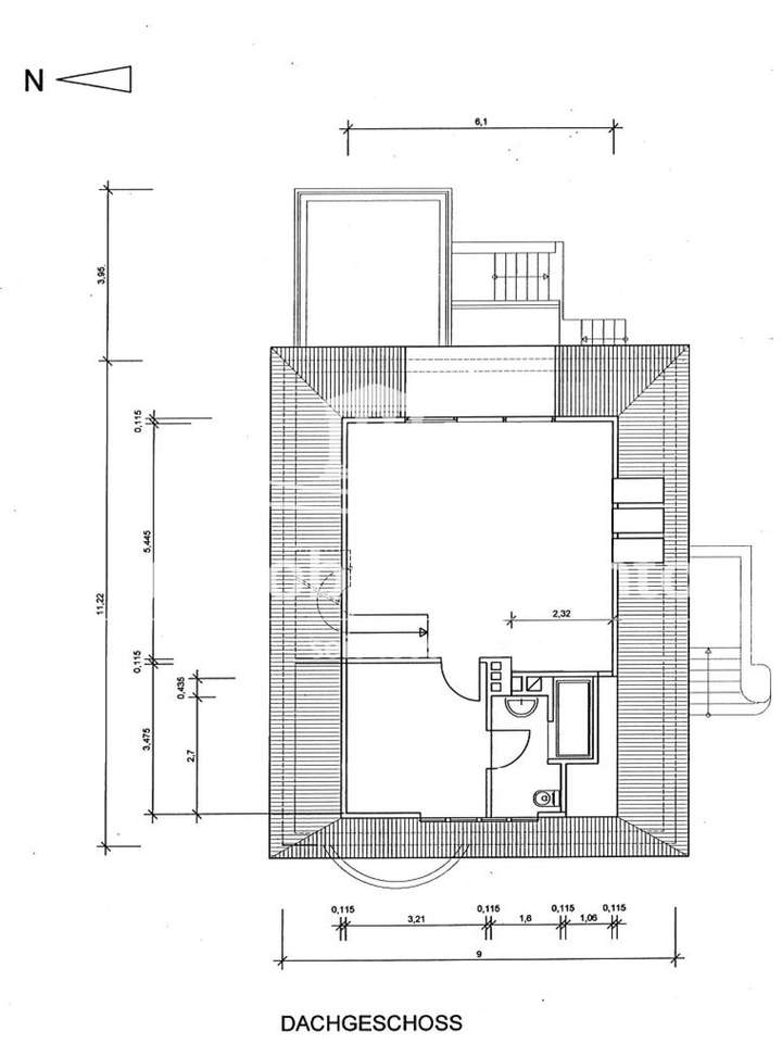
DG: Ausgebautes Studio/Wohnzimmer, Schlafzimmer, Duschbad mit WC
KG: Flur, Waschküche, 2x gr. Kellerraum, kl. Kellerraum, Heizungskeller
Gesamt: Wohn-/Nutzfläche ca. 230qm; Nutzfläche Keller ca. 90qm
Grundriss
EG
>
>
OG
>
>
DG
>
>
UG
>
>
Adresse
26721 Emden
Interessante Orte
Preis- und Lageinformationen
Preistrend für Bestandsimmobilien in Barenburg