Diese im Jahr 1961 erbaute Doppelhaushälfte liegt ruhig in einer Sackgasse im Ortsteil Dahlerbrück und bietet auf rd. 535 m² Grundstücksfläche Platz für individuelle Wohnideen.
Die Gesamtwohnfläche von rd. 120 m² verteilt sich auf zwei eigenständige Wohneinheiten, somit ist die Immobilie sowohl für Kapitalanleger interessant als auch für Familien, die ein Zuhause mit Gestaltungsspielraum suchen.
Die Aufteilung des Gebäudes ist wie folgt:
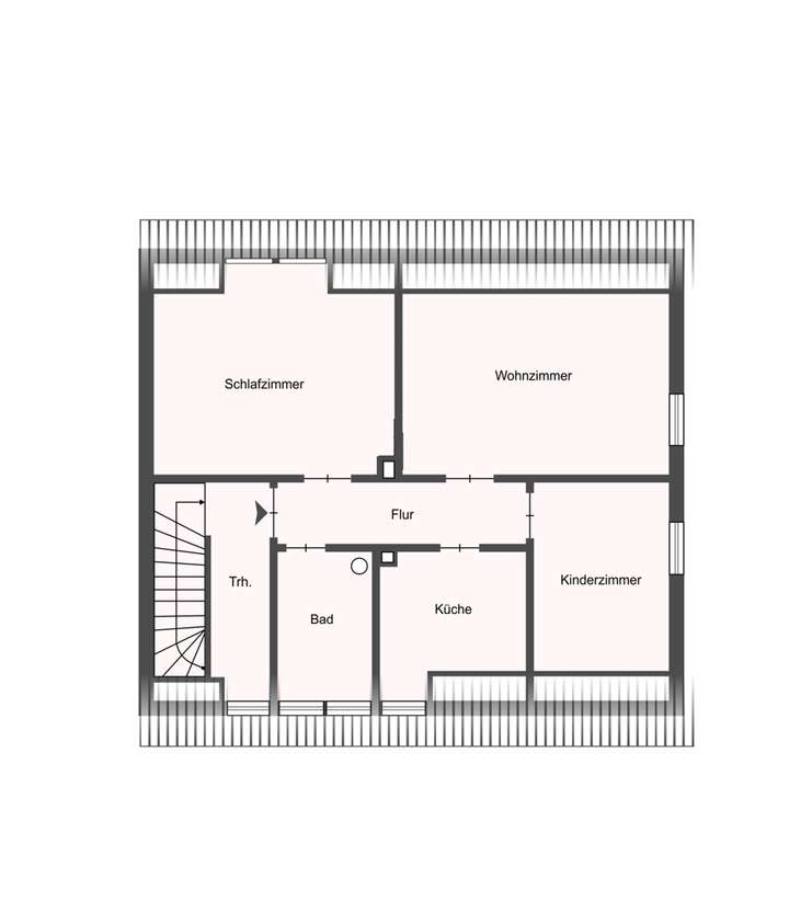
Erdgeschoss (rd. 63 m²): drei Wohnräume, Flur, Küche, Badezimmer
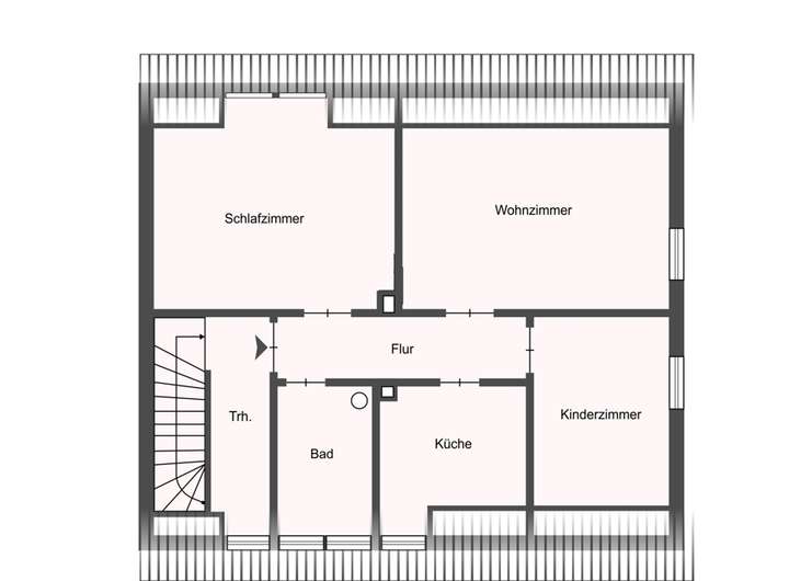
Dachgeschoss (ca. 57 m²): drei Wohnräume, Flur, Küche, Badezimmer
Kellergeschoss: Wasch-/Trockenraum, diverse Kellerräume
Beide Wohnungen befinden sich in einem gepflegten Zustand. Im Jahr 2004 erfolgte eine vollständige Erneuerung der Dacheindeckung inkl. Dämmung. 2015 wurden Keller- und Haustür ausgetauscht und im Jahr 2002 bzw. 2005 die Etagenheizungen erneuert. Die Bäder stammen aus dem Jahr 2000, die Fenster aus 1988 (doppeltverglaste Fenster mit Kunststoffrahmen).
Der Garten lädt zum Entspannen ein, bietet aber auch Raum für gärtnerische Aktivitäten. Abgerundet wird das Angebot durch einen Garagenstellplatz. Auf Wunsch kann eine weitere Garage zusätzlich erworben werden.
Insgesamt stehen hier vier Doppelhaushälften zum Verkauf, bei Interesse übersenden wir Ihnen gerne die Exposés.
Gepflegte Doppelhaushälfte - Keller - Garage im Haus - Garten -
58579 Schalksmühle
Die vollständige Adresse der Immobilie erhalten Sie vom Anbieter.
Auf Karte anzeigen
Die vollständige Adresse der Immobilie erhalten Sie vom Anbieter.
Finanzierungszertifikat
In nur zwei Minuten zu Ihrem persönlichen Finanzierungszertifkat.
Infos
| Haustyp | Doppelhaushaelfte |
|---|---|
| Etagenzahl | 1 |
| Wohnfläche ca. | 120 m2 |
| Nutzfläche | 40 m2 |
| Grundstücksfläche | 535 m2 |
| Bezugsfrei ab | nach Absprache |
| Zimmer | 6 |
| Schlafzimmer | 4 |
| Badezimmer | 2 |
| Garage/Stellplatz | Garage |
| Anzahl Garage/Stellplatz | 1 |
Kosten
| Kaufpreis |
210.000 € |
|---|---|
| Provision |
3,57 % (3 % zzgl. 19 % MwSt.) Nach Abschluss des notariellen Kaufvertrags ist eine Maklercourtage in Höhe von 3,57 % an Martin-Perez Immobilien GmbH fällig. |
| Mieteinnahmen | 545 € |
Finanzierungsrechner:
Kaufpreis:
600.000 €
Eigenkapital:
600.000 €
Monatliche Rate
0 €
Effektiver Jahreszins
0 %
Sollzinsbindung
10 Jahre
Bausubstanz & Energieausweis
| Baujahr | 1961 |
|---|---|
| Objektzustand | Gepflegt |
| Heizungsart | Etagenheizung |
| Wesentliche Energieträger | Gas |
| Energieausweis | liegt vor |
| Energieausweistyp | Bedarfsausweis |
| Energieverbrauchskennwert | 275,5 kWh/(m²*a) |
| Energieeffizienzklasse | H |
275,5
kWh/(m²*a)
Energieeffizienzklasse H
- A+
- A
- B
- C
- D
- E
- F
- G
- H
- 0
- 25
- 50
- 75
- 100
- 125
- 150
- 175
- 200
- 225
- >250
Beschreibung des Objekts
Ausstattung
Objektart: Doppelhaushälfte
Baujahr: 1961
Bauweise: massiv
Keller: vollunterkellert
Grundstücksfläche: rd. 535 m²
Wohnfläche: rd. 120 m²
Heizung: Gas-Etagenheizungen
Fenster: Kunststoff; doppeltverglast
Böden: Laminat, Fliesen,
Wände: Tapete, Fliesen
Bad EG: Badewanne, Waschbecken, WC, Fenster
Bad DG: bodengleiche Dusche, Waschbecken, WC, Fenster
Warmwasser: Durchlauferhitzer
Mieteinnahmen:
Erdgeschoss: 255,30 € mtl. Kaltmiete(Mietbeginn 01.08.1961)
Dachgeschoss: 290,00 € mtl. Kaltmiete (Mietbeginn 01.10.2024)
Modernisierungen:
2015 Haustür
2015 Kellertüren
2004 Dach
2002, 2005 Etagenheizungen
2000 Bäder
1988 Fenster
Extras: Garten, Keller, Garage im Haus
Lage
Schalksmühle, eine kleine Stadt im Märkischen Kreis mit rd. 11.000 Einwohnern, bezeichnet sich selbst als „Berg- und Tal-Gemeinde“. Das Gemeindegebiet weist teilweise Höhenunterschiede von bis zu 300 Metern auf.
Das Objekt befindet sich im Ortsteil Dahlerbrück in ruhiger Wohnlage. Das Stadtzentrum ist rd. 2 km entfernt und verfügt über alle Einrichtungen des täglichen Bedarfs, zum Beispiel Ärzte, Apotheken, eine Sparkasse sowie kleinere und größere Einzelhandelsgeschäfte. Kindergärten, eine Grundschule und eine Primusschule (bis Sek. II) sind ebenfalls im Ort vorhanden.
Mit dem Auto oder per Bus/Bahn sind die Nachbarstädte Hagen, Lüdenscheid oder Breckerfeld schnell erreichbar, auch die großen Städte des Ruhrgebiets sind nicht weit entfernt.
Sonstige Angaben
Alle in dem Exposé genannten Angaben wurden vom Eigentümer gemacht. Diese wurden mit Sorgfalt übernommen. Eine Garantie, Haftung oder Gewährleistung kann durch die Maklerfirma nicht übernommen werden und ist damit ausgeschlossen. Ihre Daten werden nur zur Bearbeitung Ihrer Anfrage gespeichert und ohne Ihre Zustimmung nicht an Dritte weitergleitet. Sie haben das Recht zu jeder Zeit Auskunft über Ihre bei uns hinterlegten Daten zu erhalten oder die Löschung dieser Daten zu verlangen, sofern dies nicht gesetzlichen Vorgaben (z. B. ordnungsgemäße Buchführung) nach Abschluss eines Kaufvertrages widerspricht. Bitte haben Sie Verständnis, dass wir Ihnen das Exposé nur nach Angabe Ihres Namens, Ihrer Adresse und Telefonnummer zusenden.
Hinweis zur Maklercourtage: Die Gesamtcourtage beträgt 6 % zzgl. 19 % MwSt., diese wird hälftig zwischen Käufer und Verkäufer geteilt. Mit Beurkundung des notariellen Kaufvertrags ist eine Käuferprovision in Höhe von 3 % zzgl. 19 % MwSt. (insgesamt 3,57 %) fällig. Mit dem Verkäufer wurde ein provisionspflichtiger Maklervertrag in gleicher Höhe abgeschlossen.
Grundriss
Erdgeschoss
>
>
Dachgeschoss
>
>
Kellergeschoss
>
>
Adresse
58579 Schalksmühle
Interessante Orte
Preis- und Lageinformationen
Preistrend für Bestandsimmobilien in Schalksmühle