Dieses kompakte, moderne Einfamilienhaus mit ca. 122 m² Wohnfläche bietet ein durchdachtes Raumkonzept auf drei Ebenen und eignet sich ideal für Familien, die urbanes Wohnen mit Privatsphäre und Garten vereinen möchten. Über die gemeinsame Tiefgarage ist das Haus bequem und direkt erschlossen – komfortabel und witterungsgeschützt.
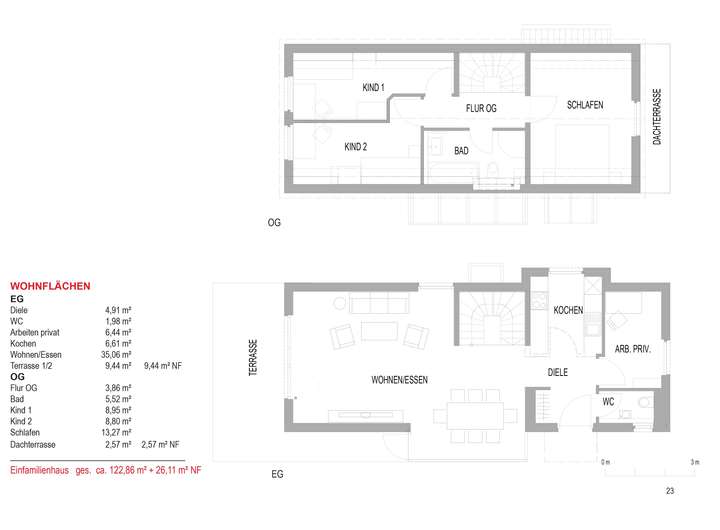
Im Erdgeschoss erwartet Sie ein großzügiger, lichtdurchfluteter Wohn- und Essbereich, der sich zur Südterrasse und dem eigenen Garten öffnet. Ein verglaster Erker zur Südseite schafft eine besonders angenehme Wohnatmosphäre. Die Küche ist separat gehalten, mit Möglichkeit zur offenen Gestaltung. Ein Arbeitszimmer nach Norden sowie ein Gäste-WC mit Fenster und Tageslicht ergänzen das Raumangebot im Erdgeschoss.
Im Obergeschoss befinden sich zwei sonnige Kinderzimmer mit Südausrichtung, ein Badezimmer mit Fenster nach Osten, ausgestattet mit Dusche, Badewanne und natürlichem Licht, sowie ein ruhiges Elternschlafzimmer zur Nordseite.
Das Untergeschoss bietet funktionale Zusatzflächen: Ein Hobbykeller zur individuellen Nutzung (z. B. Fitness, Werkstatt oder Spielbereich), ein separater Waschraum mit Dusche und Waschbecken – ideal auch als Gästebad –, ein Kellerabteil sowie der direkte Zugang zur Tiefgarage.
Kompaktes Familienidyll mit eigenem Garten und direktem Tiefgaragenzugang
Pembaurstraße 6,
81243 München
Auf Karte anzeigen
Finanzierungszertifikat
In nur zwei Minuten zu Ihrem persönlichen Finanzierungszertifkat.
Infos
| Haustyp | Einfamilienhaus |
|---|---|
| Etagenzahl | 1 |
| Wohnfläche ca. | 122 m2 |
| Nutzfläche | 26,11 m2 |
| Grundstücksfläche | 150 m2 |
| Bezugsfrei ab | 2027 |
| Zimmer | 5 |
| Schlafzimmer | 3 |
| Badezimmer | 2 |
| Garage/Stellplatz | Tiefgarage |
| Anzahl Garage/Stellplatz | 1 |
Kosten
| Kaufpreis |
1.202.300 € |
|---|---|
| Preis für Garage/Stellplatz | 37.500 € |
| Provision | Nein |
Finanzierungsrechner:
Kaufpreis:
600.000 €
Eigenkapital:
600.000 €
Monatliche Rate
0 €
Effektiver Jahreszins
0 %
Sollzinsbindung
10 Jahre
Bausubstanz & Energieausweis
| Baujahr | 2026 |
|---|---|
| Bauphase | Haus in Planung (projektiert) |
| Objektzustand | Erstbezug |
| Qualität der Austattung | Gehoben |
| Heizungsart | Wärmepumpe |
| Energieausweis | liegt zur Besichtigung vor |
Beschreibung des Objekts
Ausstattung
• Zeitlose, moderne Architektur mit klaren Linien
• Großzügige Grundrisse mit 2 bis 4 Zimmern
• Private Gärten, Balkone oder Dachterrassen je nach Einheit
• Bodentiefe Fenster für lichtdurchflutete Räume
• Hochwertiger Eichenparkettboden in Wohn- und Schlafräumen
• Fußbodenheizung mit Einzelraumsteuerung
• Edle Bäder mit Marken-Sanitärprodukten & bodengleichen Duschen
• Energieeffiziente Bauweise gemäß EnEV/GEG
• Tiefgaragenstellplätze mit E-Mobilitäts-Vorbereitung
• Personenaufzug im Mehrfamilienhaus
• Zentrale, aber ruhige Wohnlage mit hohem Freizeitwert
Lage
Die Pembaurstraße 6 befindet sich im begehrten Münchner Stadtteil Pasing, einem urbanen und dennoch ruhigen Wohnviertel im Westen der Landeshauptstadt. Die Lage überzeugt durch eine ausgezeichnete Infrastruktur sowie eine hohe Lebensqualität in grüner Umgebung.
In der Nähe finden sich zahlreiche Einkaufsmöglichkeiten, darunter die Pasing Arcaden, vielfältige Cafés, Restaurants sowie alle Einrichtungen des täglichen Bedarfs. Die fußläufig erreichbare S-Bahn-Station Westkreuz (S6, S8) ermöglicht eine schnelle und direkte Verbindung in die Münchner Innenstadt, zum Flughafen sowie zum Hauptbahnhof. Auch der Pasinger Bahnhof mit zusätzlichen Regional- und Fernverkehrsverbindungen ist in wenigen Minuten mit dem Fahrrad oder Bus erreichbar.
Besonders attraktiv ist die Nähe zum großzügigen Pasinger Stadtpark, der mit alten Baumbeständen, weitläufigen Wiesen und der idyllischen Würm perfekte Bedingungen für Erholung, Sport und Freizeitaktivitäten bietet. Familien schätzen zudem das gute Angebot an Kitas, Schulen und Freizeitmöglichkeiten in der Umgebung.
Die Pembaurstraße vereint somit ruhiges Wohnen mit urbaner Anbindung – ideal für alle, die modernes Stadtleben und naturnahe Erholung kombinieren möchten.
Sonstige Angaben
Der Verkauf erfolgt provisionsfrei direkt vom Bauträger.
Von Makler-Anfragen bitten wir abzusehen.
ÜBER UNS
Wir sind ein Familienunternehmen mit über 90-jähriger Tradition und legen sehr viel Wert auf Zuverlässigkeit, Qualitätsbewusstsein und Kundennähe.
Das spiegelt auch unser Motto „Kompetent am Bau“ wider, das für höchste Qualität, Termintreue und optimale Kundenbetreuung steht.
Unser gesamtes Leistungsspektrum umfasst den Hochbau, die Sanierung sowie Tief- und Straßenbau. Zudem sind wir in den Bereichen Projektenwicklung und Schlüsselfertigbau tätig.
Weitere Dokumente
Grundriss EFH UGGrundriss EFH EG & OG
Grundriss
EG & DG
>
>
UG
>
>
Adresse
Pembaurstraße 6, 81243 München
Interessante Orte
Preis- und Lageinformationen
Preistrend für Bestandsimmobilien in Pasing