Attraktives Baugrundstück in einer begehrten Lage Münchens, im aufstrebenden Stadtteil Trudering, ist ein modernes Mehrfamilienhaus für 9 Einheiten bereits genehmigt. Es zeichnet sich durch seine ausgeklügelte Konzeption und sein vielfältiges Nutzungspotenzial aus. Dieses Neubauprojekt bietet mit seinen 9 Wohnungen eine attraktive Kapitalanlage mit nachhaltigen Renditechancen. Die Gesamtwohnfläche von ca. 880 m² ist auf einem großzügigen 896 m² großen Grundstück geplant und bereits genehmigt.
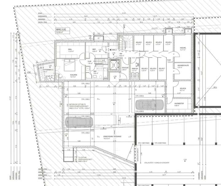
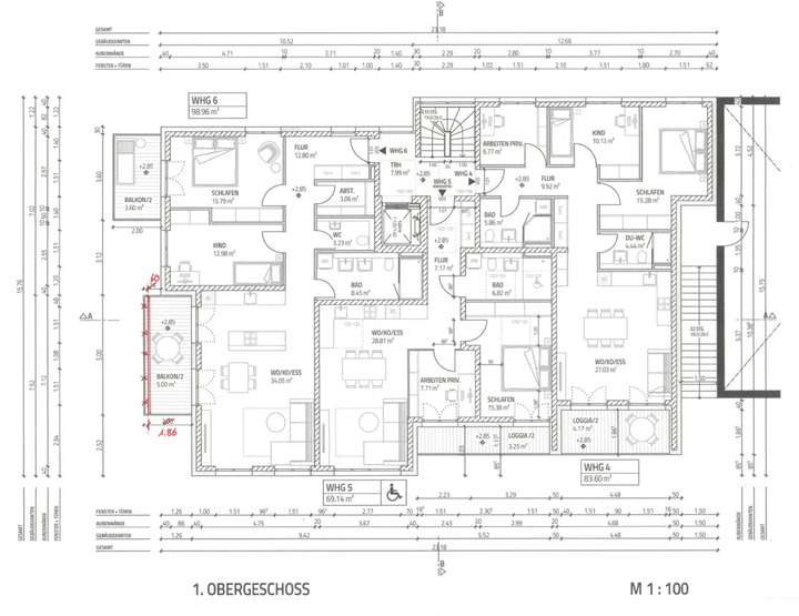
Die Planung besticht durch clevere Grundrisse und bietet Wohnungen in diversen Größen an. Diese verfügen über Balkone, Loggien oder Dachterrassen, die den Wohnkomfort zusätzlich erhöhen. Kellerabteile und Tiefgaragenstellplätze bieten zusätzlichen Stauraum und Parkmöglichkeiten.
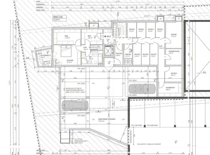
Zusätzlich existiert eine fertige Umplanung des Projekts für gefragte WG-Wohnungen mit insgesamt 40 Schlafzimmern.
Die hohe Nachfrage nach hochwertigem Wohnraum in München macht dieses Mehrfamilienhaus zu einer sicheren und rentablen Investition. Die hochwertige Ausstattung und die durchdachte Konzeption garantieren eine hohe Vermietbarkeit und langfristige Mieterbindung, sofern Sie sich für die Umsetzung der 40 WG-Zimmer Alternative entscheiden.
Für eine detaillierte Erklärung der Gesamtsituation des Projekts dürfen Sie gerne jederzeit Ihre Vertriebsprofis bei EDE-INVEST kontaktieren.
Projektgrundstück mit Genehmigung & WG-Konzept: 40 Zimmer möglich
81829 München
Die vollständige Adresse der Immobilie erhalten Sie vom Anbieter.
Auf Karte anzeigen
Die vollständige Adresse der Immobilie erhalten Sie vom Anbieter.
Finanzierungszertifikat
In nur zwei Minuten zu Ihrem persönlichen Finanzierungszertifkat.
Infos
| Vermarktungsart | Kaufen |
|---|---|
| Grundstücksfläche | 896 m2 |
| Erschließung | Erschlossen |
| Empfohlene Nutzung | Mehrfamilienhaus |
| Grundflächenzahl (GRZ) | 0.37 |
| Geschossflächenzahl (GFZ) | 1.05 |
| Bebaubar nach | wie Nachbarbebauung |
| Verfügbar ab | sofort |
Kosten
| Miete pro Jahr |
3.400.000 € |
|---|---|
| Provision |
3,57 % inkl. MwSt. (3,00 % netto) |
Finanzierungsrechner:
Kaufpreis:
600.000 €
Eigenkapital:
600.000 €
Monatliche Rate
0 €
Effektiver Jahreszins
0 %
Sollzinsbindung
10 Jahre
Beschreibung des Objekts
Lage
Erleben Sie urbanes Wohnen in einer begehrten Wohngegend Münchens! Dieses attraktive Objekt befindet sich in Trudering-Riem, einem Stadtteil im Münchner Osten. Die Lage bietet eine ideale Kombination aus urbaner Nähe und naturnahem Wohnen.
Die exzellente Anbindung an den öffentlichen Nahverkehr ermöglicht es Ihnen, die Münchner Innenstadt und das Umland schnell und bequem zu erreichen. Die S-Bahn-Linien S4 und S6 sowie die U2 sind nur etwa 1 km entfernt, was Ihnen maximale Flexibilität in Ihrer Mobilität garantiert. Eine Bushaltestelle befindet sich in unmittelbarer Nähe des Gebäudes (ca. 70 m), was den Alltag zusätzlich erleichtert.
Die Umgebung bietet eine Vielzahl an Einkaufsmöglichkeiten, die Ihren täglichen Bedarf decken. Ein Supermarkt ist nur 100 m entfernt, sodass Sie Ihre Einkäufe bequem zu Fuß erledigen können. Zahlreiche weitere Geschäfte, Restaurants und Cafés befinden sich in der näheren Umgebung.
Familien profitieren von der Nähe zu verschiedenen Bildungseinrichtungen. Ein Kindergarten (ca. 200 m), eine Grundschule (ca. 550 m) und ein Gymnasium (ca. 1,1 km) sind schnell und sicher erreichbar. Dies macht die Lage besonders attraktiv für Familien mit Kindern.
Die grüne Umgebung lädt zu erholsamen Spaziergängen und sportlichen Aktivitäten ein. Eine nahegelegene Grünanlage (ca. 150 m) bietet Raum für Entspannung im Freien. Eine Sportanlage (ca. 1,3 km) bietet zusätzliche Möglichkeiten für sportliche Aktivitäten.
Der Münchner Hauptbahnhof ist in etwa 22 Minuten erreichbar, was diese Lage auch für Berufspendler sehr attraktiv macht. Die gute Anbindung an das öffentliche Verkehrsnetz ermöglicht es Ihnen, alle wichtigen Ziele in München schnell und unkompliziert zu erreichen.
Sonstige Angaben
Alle in diesem Exposé verwendeten Angaben beruhen auf Informationen von Dritten (z.B. Eigentümer, Hausverwaltung, etc.) und daher freibleibend und ohne jegliche Gewähr. Zahlenangaben sind immer als ca-Angaben zu verstehen. Irrtum, Änderungen, Zwischenverkauf oder Zwischenvermietung bleiben vorbehalten. Die Bekanntgabe der Objektadresse und von Objektdaten geschieht unter ausdrücklichem Hinweis auf unsere Provisionsforderung im Fall des Ankaufs. Die Höhe der Käuferprovision entnehmen Sie den Eckdaten dieses Exposés. Mit Übersendung des Exposés und Bekanntgabe der Objektadresse kommt ein Maklervertrag zustande. Sie wurden hierbei auf das Recht hingewiesen, binnen vierzehn Tagen ohne Angabe von Gründen diesen Vertrag zu widerrufen. Um ein bestehendes Widerrufsrecht auszuüben, genügt eine schriftliche Erklärung an EDE-Invest GmbH & Co. KG, Bavariaring 18, 80336 München. Möglicherweise haben Sie bei Erhalt des Exposees wirksam auf das Widerrufsrecht verzichtet. Haben Sie hingegen verlangt, dass unsere Dienstleistungen während der Widerrufsfrist beginnen sollen, ohne vorher auf das Widerrufsrecht zu verzichten, so haben Sie uns im Fall des Widerrufs einen angemessenen Betrag zu zahlen, der dem Anteil der bis zu dem Zeitpunkt, zu dem Sie uns den Widerruf erklären, bereits erbrachten Dienstleistungen im Vergleich zum Gesamtumfang der im Vertrag vorgesehenen Dienstleistungen entspricht. Ihr Widerrufsrecht erlischt vorzeitig, wenn wir auf Ihren ausdrücklichen Wunsch hin tätig geworden sind und der Vertrag vollständig erfüllt ist, bevor Sie Ihr Widerrufsrecht ausgeübt haben. Verpflichtungen zur Erstattung von Zahlungen müssen innerhalb von 30 Tagen erfüllt werden. Die Frist beginnt für Sie mit der Absendung Ihrer Widerrufserklärung, für uns mit deren Empfang.
Gewerbeerlaubnis gemäß § 34c GewO erteilt durch Aufsichtsbehörde gemäß § 34c GewO: Kreisverwaltungsreferat München, Ruppertstr. 19, 80466 München
Online-Streitbeilegung: http://ec.europa.eu/consumers/odr/
Grundriss
Erdgeschoss
>
>
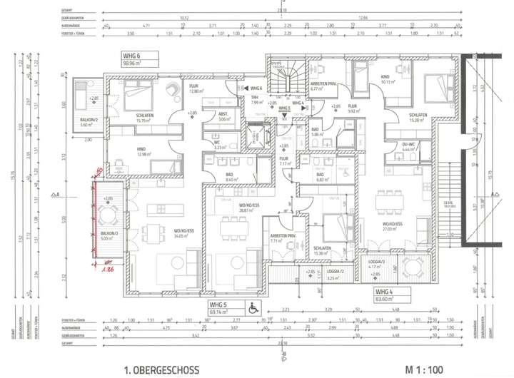
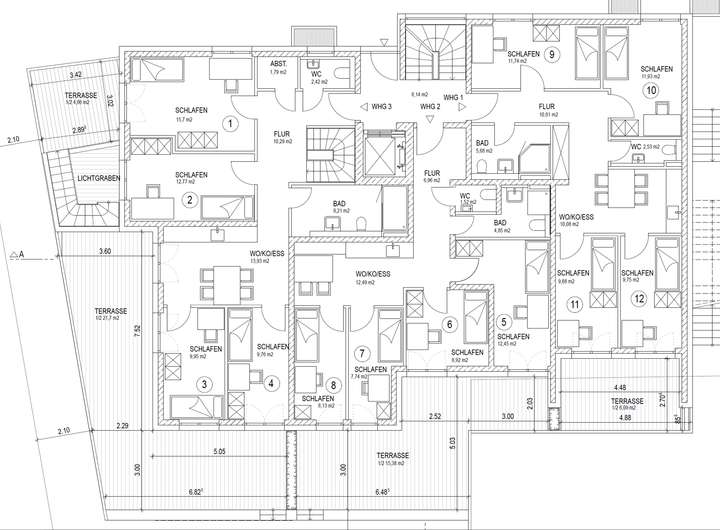
1. Obergeschoss
>
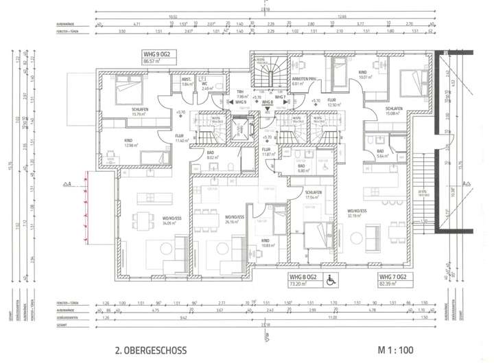
>
2. Obergeschoss
>
>
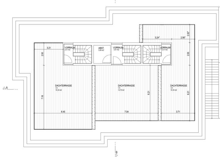
Dachterrasse
>
>
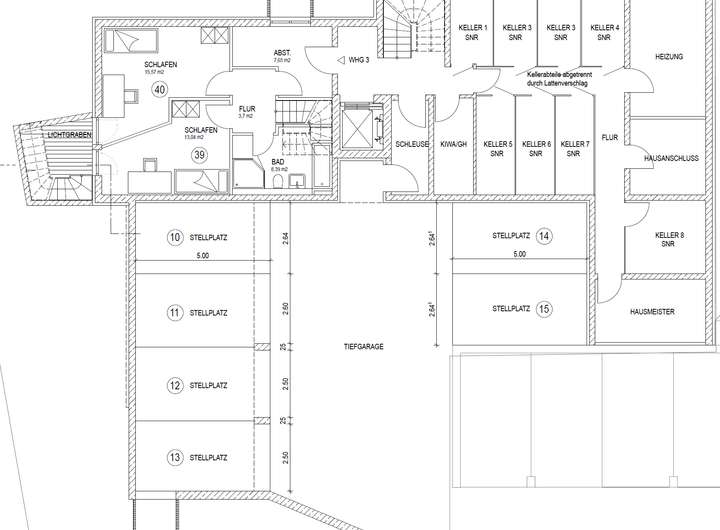
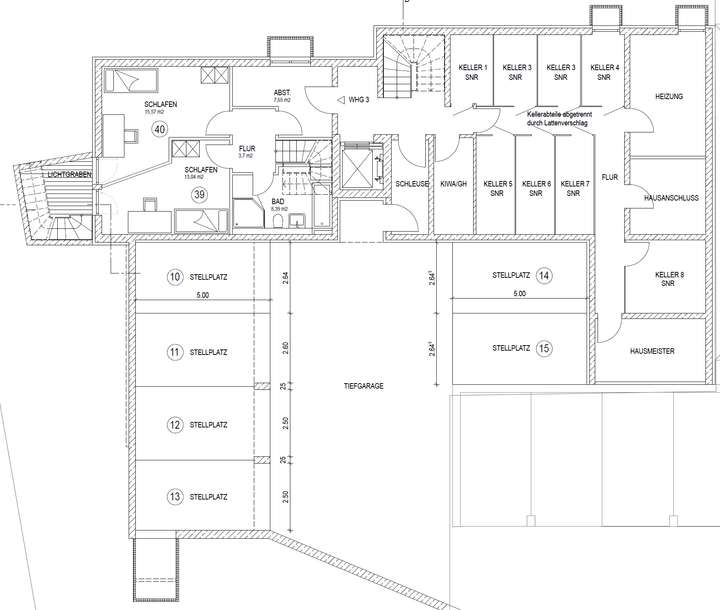
Untergeschoss
>
>
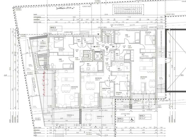
Umplanung - Erdgeschoss
>
>
Umplanung - 1. Obergeschoss
>
>
Umplanung - 2. Obergeschoss
>
>
Umplanung - Dachterrasse
>
>
Umplanung - Untergeschoss
>
>