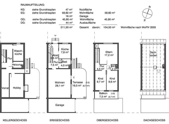
Ein großes, helles Wohnzimmer bildet den Lebensmittelpunkt des attraktiven, ruhig gelegenen Reiheneckhauses. Eine separate Küche, ein voll ausgestattetes Bad sowie eine praktische Besenkammer vervollständigen das Erdgeschoss. Vom Wohnzimmer treten Sie auf die große Terrasse und in den Garten, der durch eine Rundumbepflanzung für Privatsphäre sorgt. Von der Terrasse gehen Sie auch direkt zur Garage des Hauses.
Im ersten Stock befinden sich ein großes und zwei kleinere Zimmer. Von dort aus treten Sie auf einen Balkon mit Südwestausrichtung.
Im ersten Stock befindet sich darüber hinaus ein weiteres WC.
Der Dachboden des Hauses ist ausbaufähig.
Im praktisch gestalteten Keller befindet sich eine große Waschküche mit einer zusätzlichen Dusche und genügend Platz zum Wäschetrocknen. Neben einem Vorratsraum mit einer Werkbank liegt ein großzügiger Hobbyraum. Die Heizungsanlage im Heizungsraum wurde vor kurzem komplett erneuert.
Das Haus wird provisionsfrei von Privat angeboten.
ruhig gelegenes Einfamilen-Reihenendhaus in Rödermark - provisionsfrei
63322 Rödermark
Die vollständige Adresse der Immobilie erhalten Sie vom Anbieter.
Auf Karte anzeigen
Die vollständige Adresse der Immobilie erhalten Sie vom Anbieter.
Finanzierungszertifikat
In nur zwei Minuten zu Ihrem persönlichen Finanzierungszertifkat.
Infos
| Haustyp | Reiheneckhaus |
|---|---|
| Etagenzahl | 2 |
| Wohnfläche ca. | 104 m2 |
| Nutzfläche | 47 m2 |
| Grundstücksfläche | 255 m2 |
| Bezugsfrei ab | 1.1.2026 |
| Zimmer | 4 |
| Schlafzimmer | 3 |
| Badezimmer | 1 |
| Garage/Stellplatz | Garage |
| Anzahl Garage/Stellplatz | 1 |
Kosten
| Kaufpreis |
430.000 € |
|---|---|
| Provision | Nein |
Finanzierungsrechner:
Kaufpreis:
600.000 €
Eigenkapital:
600.000 €
Monatliche Rate
0 €
Effektiver Jahreszins
0 %
Sollzinsbindung
10 Jahre
Bausubstanz & Energieausweis
| Baujahr | 1964 |
|---|---|
| Letzte Sanierung | 2020 |
| Objektzustand | Gepflegt |
| Qualität der Austattung | Normal |
| Heizungsart | Öl-Heizung |
| Wesentliche Energieträger | Öl |
| Energieausweis | liegt vor |
| Energieausweistyp | Bedarfsausweis |
| Energieverbrauchskennwert | 221,0 kWh/(m²*a) |
| Energieeffizienzklasse | G |
221,0
kWh/(m²*a)
Energieeffizienzklasse G
- A+
- A
- B
- C
- D
- E
- F
- G
- H
- 0
- 25
- 50
- 75
- 100
- 125
- 150
- 175
- 200
- 225
- >250
Beschreibung des Objekts
Ausstattung
Massivbauweise; Außenmauerwerk Hohlblocksteine; Massivdecken; Treppen: Beton mit Marmorbelag; Satteldach mit Frankfurter Pfannen; Kunststofffenster mit Thermopaneverglasung; Rollläden, elektrisch im Erdgeschoss; Außentür Alu, Innentüren Limba; EG: Wannenbad mit Waschbecken und WC, OG: WC mit Handwaschbecken, beide Kinderzimmer mit Waschbecken, KG: Waschküche mit Dusche; Ölzentralheizung mit 5000 L Außentank, neuer moderner Heizkessel: Einbau 2020; Garage mit elektrischen Garagentor
Lage
Das Objekt befindet sich in einer wegen seiner Ruhe und Naturnähe beliebten Wohnlage in Rödermark. Der öffentliche Personennahverkehr ist über die Buslinie OF-95 und die S-Bahnhöfe in Dietzenbach und Ober-Roden angebunden. In direkter Umgebung finden Sie zwei Restaurants und eine Bäckerei mit Poststelle. Auch ein Kindergarten, ein Tierarzt und ein Fitnessstudio befinden sich in der Nähe.
Die Wohngegend zeichnet sich einerseits durch ihre Nähe zum Flughafen sowie zu Frankfurt und Darmstadt aus. Andererseits liegen die Naherholungsgebiete direkt vor der Tür und auch der schöne Odenwald ist leicht zu erreichen.
Adresse
63322 Rödermark
Interessante Orte
Preis- und Lageinformationen
Preistrend für Bestandsimmobilien in Rödermark
>