Freuen Sie sich auf unseren "Optima"(len)
Haustyp, der mit 145 qm Wohnfläche und 52 qm Keller- Nutzfläche aufwarten kann.
Optimal gebaut, optimal ausgestattet und optimale Möglichkeiten in der Gestaltung.
Wahlweise 4-6 Zimmer KDB Gäste-WC. Hochwertige deutsche Markenaustattung. Stein auf Stein gebaut nach neuester Technik. Herrliche Grundstücke von ca. 478 bis 523 m². Kaufpreise ab 699.900,- inkl. Grundstück, provisionsfrei und zahlbar in nur einer Rate bei Fertigstellung.
Ihr Wohlfühl-Haus hat natürlich einen wasserundurchlässigen Vollkeller, wird in massiver Bauweise und mit ganz viel niederrheinischem Charme erstellt. Junge und Junggebliebene Familien finden hier die Ruhe, die sie sich wünschen und die Anbindungen, die sie benötigen.
Die RSE Bau GmbH bietet eine vollumfängliche Betreuung bis zur schlüsselfertigen Übergabe und darüber hinaus. Hausanschlusskosten, Erdarbeiten und Grundstucksvermessungskosten sowie Erschließungskosten sind in den Kaufpreisen bereits enthalten. Auch individuelle Gestaltungsmöglichkeiten, im Hinblick auf besondere Ausstattungsmerkmale oder geänderte Grundrissgestaltungen, werden durch die RSE Bau GmbH im Sinne der Erwerber umgesetzt
Optima(le) Doppelhaushälfte mit großem Grundstück, Vollkeller
Oststr. 50,
40724 Hilden
Auf Karte anzeigen
Finanzierungszertifikat
In nur zwei Minuten zu Ihrem persönlichen Finanzierungszertifkat.
Infos
| Haustyp | Doppelhaushaelfte |
|---|---|
| Etagenzahl | 2 |
| Wohnfläche ca. | 145 m2 |
| Nutzfläche | 52 m2 |
| Grundstücksfläche | 478 m2 |
| Zimmer | 6 |
| Schlafzimmer | 5 |
| Badezimmer | 1 |
| Anzahl Garage/Stellplatz | 2 |
Kosten
| Kaufpreis |
699.900 € |
|---|---|
| Provision | Nein |
Finanzierungsrechner:
Kaufpreis:
600.000 €
Eigenkapital:
600.000 €
Monatliche Rate
0 €
Effektiver Jahreszins
0 %
Sollzinsbindung
10 Jahre
Bausubstanz & Energieausweis
| Baujahr | 2025 |
|---|---|
| Bauphase | Haus in Planung (projektiert) |
| Objektzustand | Erstbezug |
| Qualität der Austattung | Gehoben |
| Heizungsart | Wärmepumpe |
| Wesentliche Energieträger | Umweltwärme |
| Energieausweis | liegt zur Besichtigung vor |
Beschreibung des Objekts
Ausstattung
Ihr Haus - Ihre Vorteile.
traditionelle Massivbauweise
Stein auf Stein
erbaut nach GEG
im EH 55-Standard
voll erschlossen
einladende Gartenbereiche
Pflasterarbeiten in grau
Fassaden im Klinkerstein der Fa. Muhr
Dacheindeckung in anthrazitfarbenen Pfannen
Keller mit Haushalts-/Versorgungsräumen
Haustüranlage, farblich harmonisiert;
Marke GEALAN
Fenster-Türanlagen der Firma VEKA
anthrazit und teils bodentief
elektrische Rollläden zur Beschattung
Holz-Innentüren in Weiß mit Holzzargen. Fa. Lebo mit Edelstahl-Griffen, matt
Treppenanlage mt Holzhandlauf und
Holztrittstufen (massiv)
weitläufiger Wohn-/Essbereich
Gäste WC
tagesbelichtetes Bad
weißes Markensanitär der Fa. Geberit
edle Chromarmaturen von Grohe
30 x 60 cm Wand/Bodenfliesen
Maler & Oberböden in Eigenregie
weißes Schalterprogramm von Busch/Jäger
komfortable Fußbodenheizung mit
Einzelraumregulierung
Heizung als energieschonende Luft-Wasser-Wärmepumpe mit extrem hohem Wirkungsgrad
zentrale Warmwasserversorgung
Einzelgarage elektr. Sektionaltor
und weiterem Außenstellplatz
u.v.m.
Lage
Hilden liegt westlich der Stadt Solingen und südöstlich der Landeshauptstadt Düsseldorf und ist mit rund 58.000 Einwohnern die viertgrößte Stadt im Kreis Mettmann.
Das Stadtgebiet grenzt im Norden an Erkrath, im Nordosten an Haan, im Osten und Südosten an Solingen, im Süden an Langenfeld und im Westen an Düsseldorf. Hilden ist zusammen mit der Nachbarstadt Langenfeld von einem aus den Bundesautobahnen A 46, A 3, A 542 und A 59 gebildeten Karree umschlossen. Hilden liegt im Bereich des VRR und ist mit der Linie S1 der S-Bahn Rhein-Ruhr sowie mehreren Buslinien der Rheinbahn erreichbar.
Von besonderer Bedeutung für den innerstädtischen Personenverkehr ist die 1999 eingerichtete Ortsbuslinie O 3, die in Nord-Süd-Richtung quer durch die Stadt verläuft.
Im Schatten der Landeshauptstadt Düsseldorf entwickelt sich Hilden immer mehr zum alternativen Wohnstandort. „Ab in den Süden“ heißt das Motto bei vielen Hildenern und Zugezogenen. Hier stehen die meisten freistehenden und individuell gestalteten Einfamilienhäuser Hildens.
Die grundsätzliche Lage des Grundstücks im Hildener Osten, zeichnet sich durch tiefe, nach Osten ausgerichtete Gartengrundstücke aus. Das Grundstück liegt nahe des Hildener Stadtwalds und in der Nähe befindet sich eine Autobahnauffahrt zur A 3, die eine schnelle Pkw-Verbindung Richtung Düsseldorf oder Köln garantiert. Groß- und Einzelhändler sind fußläufig zu erreichen.
Sonstige Angaben
Optimale Gelegenheit! Nutzen Sie unser wirklich sehr gutes Angebot: Verwirklichen Sie jetzt Ihr
neues Zuhause. Toll gelegen, nach alter Väter Sitte wertbeständig gebaut, natürlich auf dem neuen Stand der Energietechnik!
Optimale Sicherheit: Kaufpreiszahlung in einer Summe erst nach mängelfreier Übergabe!
Besichtigung : JEDERZEIT nach individueller Terminabspreche. Unser externer Verkaufs- und Finanzierungsexperte Herr Roland Meier steht Ihnen unter der Telefonnummer: 0177-3491115 auch gerne am Wochenende zu Auskünften und der Beantwortung Ihrer Fragen zur Verfügung.
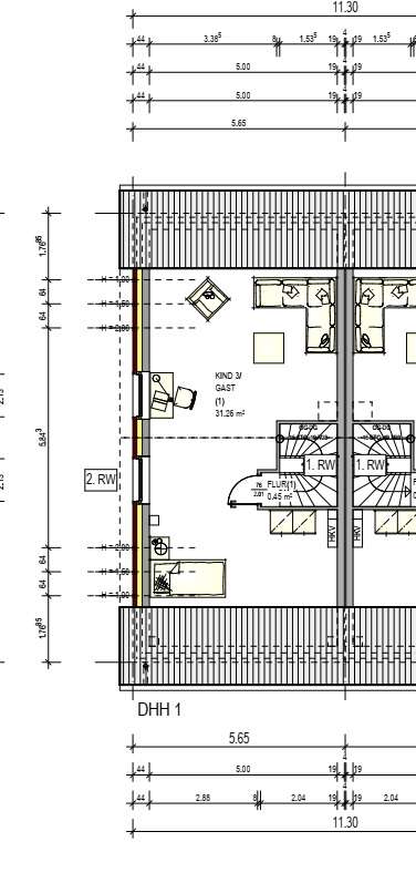
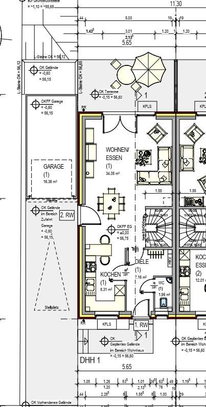
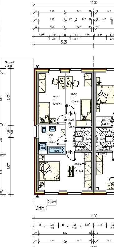
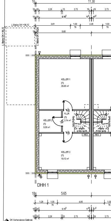
Grundriss
Kellergeschoß
>
>
Erdgeschoß
>
>
Obergeschoß
>
>
Dachgeschoß
>
>
Adresse
Oststr. 50, 40724 Hilden
Interessante Orte
Preis- und Lageinformationen
Preistrend für Bestandsimmobilien in Hilden