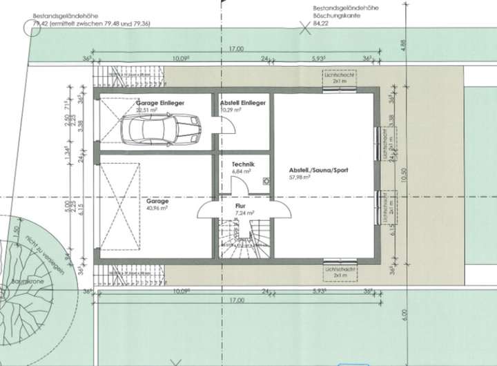
Das großzügige Einfamilienhaus verfügt über eine Nutzfläche von 259,23m² (ohne Außenanlage) mit zusätzlich konzipierter Einliegerwohnung, die häusliche 54,86m² zu bieten hat, und insgesamt 3 Stellplätze für PKWs, ist der Gebäudekomplex ein durchdachter Neubau der Gebäudeklasse des Typ 2. Die Garage für das Einfamilienhaus mit 40,96m², sowie die Garage für die Einliegerwohnung mit 22,51m², bieten genug Parkfläche für größere Autos und deren Zubehör. Im Objekt spiegelt sich, durch die 2 Wohneinheiten, mit einer Gesamtfläche von 314,09m², der Geist eines Mehrgenerationenhaus wider.
Ein solides Stahlbetonfundament bildet die Grundlage des Hauses. Diese Bauweise wird in den Treppenaufgängen, sowie in den Filigrandecken fortgesetzt. Die tragenden Wände und Außenwände bestehen aus Kalksandstein. Trennwände und Unterdecke innerhalb des Hauses sind in der Trockenbauweise gebaut. Die Wände, Trennwände und Decken besitzen die Feuerwiderstandsklasse F30. Das Dachtragwerk wird in Holzkonstruktion errichtet, welches abschließend mit Ton-Dachziegel gedeckt wird.
Das Gebäude wird über eine Gastherme beheizt, die mit Gas versorgt wird. Zur Warmwasserbereitung kommt die nachhaltige Solarthermie zum Einsatz.
Das Kellergeschoss mit den 3 PKW-Stellplätzen hat den Charakter eines Souterrain. Diese charakterliche Bauweise entsteht, durch das in die Böschung Hineinbauen. Hier bietet sich an, ein Technikraum für das Haus zu installieren, desweiteren kann die freie Fläche für eine mögliche Sauna, Wäsche-, Sportraum oder Partykeller genutzt werden. Für ausreichende Belichtung ist in diesem Multifunktionsraum durch insgesamt vier 2x1m große Lichtschächte gesorgt.
Aufgrund der Topographie führt die Treppe vom Souterrain in das Erdgeschoss. Vom Flur rechter Hand gelangt man zur Wohnküche, die in Richtung der Waldausläufer zeigt. Die Größe der Wohnküche erlaubt es die einzelnen Abschnitte Küche + Wohnen trotzdem bei Bedarf zu differenzieren. Für gemütliche Atmosphäre, in der kalten Jahreszeit, sorgt ein Kamin. Linker Hand vom Flur besteht die Chance, für Gäste, ein Zimmer einzurichten, mit eigenen Bad und WC.
Die Einliegerwohnung ist über die Treppe, welche außerhalb des Hauses angebaut ist, zu erreichen. Eine große Wohnküche vereint hier beides. Bad und WC sind über die Wohnküche begehbar, ebenfalls das Schlafzimmer.
Eine Terrasse, in der Größenordnung von 56,5m², umschließt fast vollständig das Erdgeschoss.
In der obersten Etage (1.OG) sind 2 Bäder untergebracht. Die Möglichkeit für 3 Kinderzimmer oder 2 Kinderzimmer und ein Büro ist gegeben. Das Schlafzimmer verfügt über eine eigenes Ankleidezimmer. In der Ecke der Treppe ist Platz für Stauraum im 1.OG. Eine Dachbodentreppe führt zum Dachboden, der nicht als vollwertige Etage fungiert, jedoch viel Lagerraum bietet.
Zur Begrünung der Baufläche soll eine zweireihige freiwachsende Laubholz-Hecke gepflanzt werden, sodass es vegetativ zu keinen landschaftlichen Bruch kommt. Auf dem Grundstück zur Straßenseite wächst eine Birke. Vereinzelt wachsen weitere Birken entlang der Straße.
Das Gebäude passt im äußeren Erscheinungsbild in den Ort hinein und überragt nicht das gegenüberliegende Nachbargebäude.
Das Grundstück ist mit Trink- und Abwasser erschlossen. Langhagen besitzt eine Kläranlage. Löschwasser wird über den Tiefspiegelbrunnen gewährleistet. Die Energieversorgung übernimmt die WEMAG Netz GmbH. Es befinden sich auf den Grundstück keine Anlagen der WEMAG. Die fernmeldetechnische Versorgung übernimmt die TELEKOM, entsprechende Anschlüsse sind vorhanden.
NEUER PREIS: Baugrundstücke: Einfam.haus mit Einliegerwoh. im idyllisch mecklenburg. Luftkurort
Brunnenstraße 11,
18279 Lalendorf
Auf Karte anzeigen
Finanzierungszertifikat
In nur zwei Minuten zu Ihrem persönlichen Finanzierungszertifkat.
Infos
| Vermarktungsart | Kaufen |
|---|---|
| Grundstücksfläche | 870 m2 |
| Erschließung | Erschlossen |
| Empfohlene Nutzung | Einfamilienhaus |
| Bebaubar nach | Bebauungsplan |
| Verfügbar ab | 18.07.2025 |
Kosten
| Miete pro Jahr |
39.500 € |
|---|---|
| Provision | Nein |
Finanzierungsrechner:
Kaufpreis:
600.000 €
Eigenkapital:
600.000 €
Monatliche Rate
0 €
Effektiver Jahreszins
0 %
Sollzinsbindung
10 Jahre
Beschreibung des Objekts
Lage
In der norddeutschen Tiefebene, im Herzen Mecklenburg-Vorpommerns, eingebettet in die größte Seenplatte Deutschlands, zwischen dichten Wäldern, innerhalb der westlichen Ausläufer des Naturparks Mecklenburgische Schweiz und Kummerower See, liegt der Naherholungsort - mit dem staatlich anerkannten Titel: Luftkurort – Krakow am See, Ortsteil Langhagen. Das Grundstück befindet sich am östlichen Ortsrand, in ruhiger Hanglage, an einer kleinen Nebenstraße, seitlich gegenüber linker Hand des Reihenhaus Brunnenstraße 12, mit ruheausstrahlenden Blick auf Feld und Wald. Geplant ist ein großzügiges Einfamilienhaus mit Einliegerwohnung, inklusive Garage, die Stellplätze für 3 PKWs bietet. Trotz der ortsgegebenen ruhigen Lage befindet sich Ihr zukünftiges Haus in einer infrastrukturellen, touristisch erschlossenen Gegend, die auf all Ihre Bedürfnisse eingeht. Die für Mecklenburg beispielhaften typischen Städtchen Krakow am See und Teterow befinden sich in einem Radius von rund 10km. Innerhalb dieses Umkreises gibt es die Autobahnanschlüsse (A19) in Richtung Rostock, sprich Sie haben die Ostsee in greifbarer Nähe, sowie nach Berlin. Langhagen selber ist auch über die
S-Bahn gut zu erreichen.
Sonstige Angaben
Einfamilienhaus mit Einliegerwohnung