Dieses gepflegte Zweifamilienhaus in zentraler Lage von Kleinheubach richtet sich ideal an Familien, die ein Zuhause für mehrere Generationen suchen. Mit insgesamt ca. 144 m² Wohnfläche, aufgeteilt auf zwei separat zugängliche Wohnungen, sowie zusätzlichen ca. 75 m² Nutzfläche im Keller und Dachboden bietet die Immobilie zahlreiche Nutzungsmöglichkeiten – vom klassischen Vermietungsobjekt bis hin zum Eigenbedarf mit Erweiterungspotenzial.
Im Erdgeschoss befindet sich eine rund 76 m² große 3-Zimmer-Wohnung mit zwei Schlafzimmern, einem großzügigen Wohnbereich, einem separaten Gäste-WC sowie direktem Zugang zur sonnigen Terrasse und zum Garten. Die Wohnung im Dachgeschoss verfügt über etwa 68 m², ebenfalls zwei Schlafzimmer, einen offenen Wohn-/Essbereich, ein Tageslichtbad sowie einen eigenen Balkon mit Blick ins Grüne. Beide Einheiten teilen sich einen schön angelegten, gemeinschaftlich nutzbaren Garten mit bepflanzter Wiese, kleinem Gartenschuppen und zwei Stellplätzen direkt vor dem Haus.
Das Haus wurde 1996 erbaut und laufend instand gehalten. Die Fenster und die Dämmung wurden bereits erneuert, ebenso ist eine moderne Ölheizung vorhanden. Der große Dachboden ist aktuell unausgebaut, bietet jedoch weiteres Potenzial für zusätzlichen Wohnraum. Hier wurden bereits zwei neue Dachfenster eingebaut. Die gute Anbindung an den Nahverkehr sowie die fußläufig erreichbare Infrastruktur mit Einkaufsmöglichkeiten, Schulen und Freizeitangeboten unterstreichen die Attraktivität dieser Immobilie zusätzlich.
Die Highlights im Überblick:
- Zweifamilienhaus mit insgesamt ca. 144 m² Wohnfläche
- Zwei separat zugängliche Wohneinheiten (EG ca. 76 m², DG ca. 68 m²)
- EG mit Gäste-WC, Terrasse & zwei Schlafzimmern
- DG mit Balkon & zwei Schlafzimmern
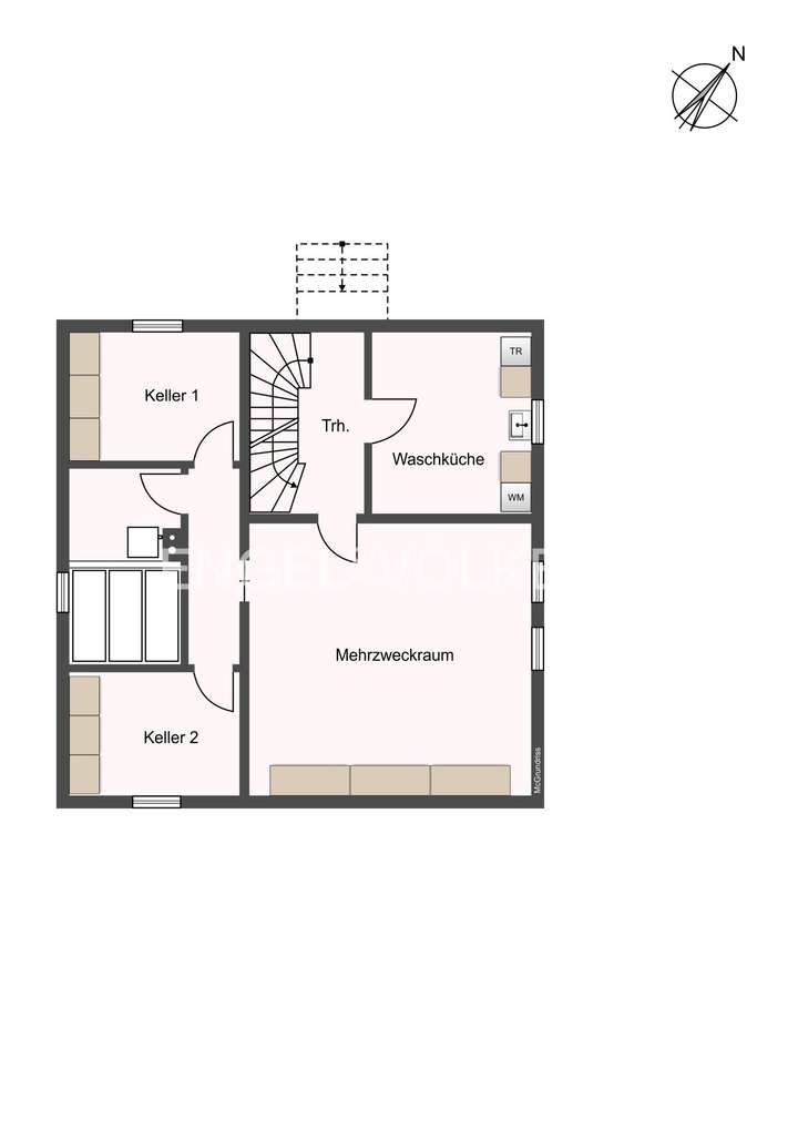
- Ca. 75 m² Nutzfläche inkl. Keller & großem Dachboden (ausbaufähig)
- Erneuerte Fenster & moderne Dämmung
- Erneuerte Ölheizung
- Ruhige Lage mit guter Anbindung & Infrastruktur
Wir haben Ihr Interesse geweckt? Dann treten Sie mit uns in Kontakt! Wir von Engel & Völkers Miltenberg freuen uns auf Ihre Kontaktaufnahme!
Gepflegtes Zweifamilienhaus mit Ausbaupotential
63924 Kleinheubach
Die vollständige Adresse der Immobilie erhalten Sie vom Anbieter.
Auf Karte anzeigen
Die vollständige Adresse der Immobilie erhalten Sie vom Anbieter.
Finanzierungszertifikat
In nur zwei Minuten zu Ihrem persönlichen Finanzierungszertifkat.
Infos
| Haustyp | Mehrfamilienhaus |
|---|---|
| Etagenzahl | 3 |
| Wohnfläche ca. | 144 m2 |
| Nutzfläche | 75 m2 |
| Grundstücksfläche | 452 m2 |
| Bezugsfrei ab | nach Rücksprache |
| Zimmer | 6 |
| Schlafzimmer | 4 |
| Badezimmer | 2 |
| Anzahl Garage/Stellplatz | 2 |
Kosten
| Kaufpreis |
485.000 € |
|---|---|
| Provision |
3.57 % inkl. gesetzl. MwSt. |
Finanzierungsrechner:
Kaufpreis:
600.000 €
Eigenkapital:
600.000 €
Monatliche Rate
0 €
Effektiver Jahreszins
0 %
Sollzinsbindung
10 Jahre
Bausubstanz & Energieausweis
| Baujahr | 1996 |
|---|---|
| Heizungsart | Zentralheizung |
| Wesentliche Energieträger | Öl |
| Energieausweis | liegt vor |
| Energieausweistyp | Verbrauchsausweis |
| Energieeffizienzklasse | D |
Energieeffizienzklasse D
- A+
- A
- B
- C
- D
- E
- F
- G
- H
- 0
- 25
- 50
- 75
- 100
- 125
- 150
- 175
- 200
- 225
- >250
Beschreibung des Objekts
Ausstattung
Abstellkammer
Fliesen
Laminat
Vollunterkellert
Kamin
Lage
Diese Immobilie befindet sich in einer der bevorzugten Wohnlagen von Kleinheubach – ruhig gelegen und dennoch optimal angebunden. Das direkte Umfeld ist geprägt von gepflegten Wohnhäusern, begrünten Vorgärten und einer angenehmen, gewachsenen Nachbarschaft. Hier leben Familien, Paare und Ruhesuchende gleichermaßen – in einem Umfeld, das für seine hohe Lebensqualität und sein harmonisches Miteinander bekannt ist.
Die Wohnstraßen sind verkehrsberuhigt, was insbesondere für Familien mit Kindern einen echten Mehrwert darstellt. In unmittelbarer Nähe laden Felder, Wiesen und der Mainuferbereich zu ausgedehnten Spaziergängen, Joggingrunden oder Fahrradtouren ein. Die naturnahe Umgebung ermöglicht Entschleunigung und Erholung im Alltag – und das direkt vor der eigenen Haustür.
Kleinheubach bietet als lebenswerte Gemeinde im Landkreis Miltenberg eine hervorragende Infrastruktur. Einkaufsmöglichkeiten für den täglichen Bedarf, Bäcker, Metzger, Apotheken und Ärzte befinden sich ebenso im Ort wie Cafés, Restaurants und kleinere Geschäfte. Auch das Vereinsleben ist hier sehr aktiv und bietet vielfältige Möglichkeiten zur Freizeitgestaltung – sei es im sportlichen, musikalischen oder kulturellen Bereich.
Familien profitieren von einer guten Betreuung und Bildung: Kindergärten sowie eine Grundschule befinden sich direkt in Kleinheubach. Weiterführende Schulen sind in den Nachbarstädten Miltenberg und Amorbach schnell erreichbar. Die medizinische Versorgung ist durch niedergelassene Ärzte und die Nähe zum Klinikum in Erlenbach ebenfalls sichergestellt.
Dank der verkehrsgünstigen Lage ist Kleinheubach bestens angebunden. Die Bundesstraße B469 sorgt für schnelle Verbindungen nach Aschaffenburg, Miltenberg oder zur Autobahn A3. Der Bahnhof vor Ort bietet zudem regelmäßige Zugverbindungen, etwa in Richtung Aschaffenburg oder Wertheim – ideal für Pendler oder Ausflügler.
Insgesamt bietet dieser Standort die perfekte Balance zwischen ländlicher Idylle und urbaner Nähe. Wer eine ruhige Wohnlage mit gewachsenem Charakter und gutem Anschluss an das Rhein-Main-Gebiet sucht, wird sich hier schnell zuhause fühlen.
Sonstige Angaben
Die Höhe der Courtage richtet sich nach den ab dem 23.12.2020 in Kraft getretenen gesetzlichen Regelungen zur Teilung der Maklercourtage. Hiernach wird die Courtage regelmäßig für beide Parteien (Eigentümer und Käufer) in Höhe von 3 % zuzüglich Umsatzsteuer in jeweils geltender Höhe, derzeit also insgesamt 3,57 % des Kaufpreises einschließlich Umsatzsteuer bei notariellem Vertragsabschluss verdient und fällig. Die Höhe der Bruttocourtage unterliegt einer Anpassung bei Steuersatzänderung. Die Vermittelnden und/oder Nachweisenden, Dr. Ahner & Freyler Immobilien GmbH (Lizenznehmer der Engel & Völkers Residential GmbH) und ggf. deren Beauftragter, erhalten einen unmittelbaren Zahlungsanspruch gegenüber dem Käufer (Vertrag zugunsten Dritter, § 328 BGB). Grunderwerbsteuer, Notar- und Grundbuchkosten sind vom Käufer zu tragen.
Grundriss
Kellergeschoss
>
>
Erdgeschoss
>
>
Dachgeschoss
>
>
Adresse
63924 Kleinheubach
Interessante Orte
Preis- und Lageinformationen
Preistrend für Bestandsimmobilien in Kleinheubach