Bei dem Verkaufsobjekt handelt es sich um eine genehmigte Baumaßnahme für einen entkernten Rohbau auf einer Lichtung im Gemeindebereich Schöfberg im Bayerischen Wald.
Früher wurde das Objekt als Pension genutzt. Später begann der Vorbesitzer mit Umbaumaßnahmen, in dem er den Gebäudebestand weitgehend entkernt hat. Den Umfang der Maßnahmen erkennt man auf den beigefügten Fotos.
Das Objekt ist komplett erschlossen mit eigener Quelle auf dem Hausgrundstück. Eine geteerte Zufahrt und Kanalanschluss sind vorhanden.
Mit den Baumaßnahmen im Aussenbereich wurde ebenfalls begonnen; diese wurden aber nicht weitergeführt.
Auf den beigefügten Fotos kann man den Charme und die Möglichkeiten des Objektes erkennen.
Renovierungsobjekt in Traumlage im Bayerischen Wald
Brotjacklriegelweg 25,
94572 Schöfweg
Auf Karte anzeigen
Finanzierungszertifikat
In nur zwei Minuten zu Ihrem persönlichen Finanzierungszertifkat.
Infos
| Vermarktungsart | Kaufen |
|---|---|
| Grundstücksfläche | 5.900 m2 |
| Erschließung | Erschlossen |
| Empfohlene Nutzung | Einfamilienhaus |
| Bebaubar nach | Aussengebiet |
| Verfügbar ab | 01.08.2025 |
Kosten
| Miete pro Jahr |
0 € |
|---|---|
| Provision |
4,76 |
Finanzierungsrechner:
Kaufpreis:
600.000 €
Eigenkapital:
600.000 €
Monatliche Rate
0 €
Effektiver Jahreszins
0 %
Sollzinsbindung
10 Jahre
Beschreibung des Objekts
Lage
Das Objekt liegt im Aussenbereich von Schöfweg/Langfurt im Bayerischen Wald. Dies stellt eine Besonderheit dar, da für derartige Vorhaben für einen Neubau keine Chance auf eine Baugenehmigung besteht. Bekanntlich sind im Aussenbereich nur sogenannte privilegierte Vorhaben zulässig. Ein Wohnhaus für private Zwecke zählt nicht dazu.
Die Zufahrt ist öffentlich und die Kommune verrichtet den Winterdienst.
Sonstige Angaben
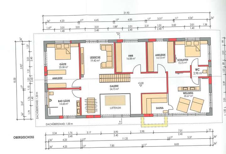
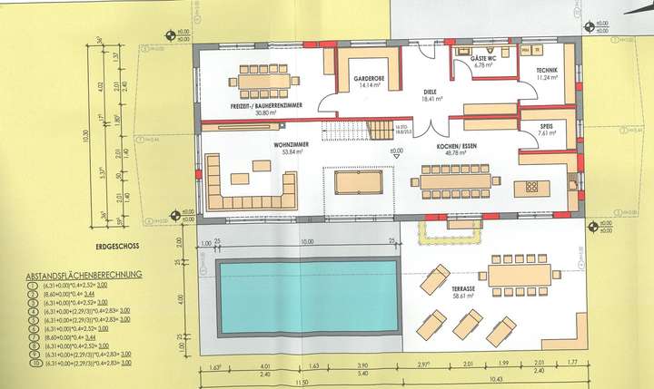
Der vorhandene Plan kann optional übernommen werden.
Durch die für ca. 2 Jahre unterbrochenen Abbrucharbeiten macht das Grundstück einen leicht verwilderten Eindruck. Die ursprünglichen Fotos lassen die Möglichkeiten auf der Lichtung im Bayerischen Wald erahnen.
Anfragen ohne vollständige Adresse, Telefonnummer und Email können leider nicht bearbeitet oder beantwortet werden.
Grundriss
Ansicht Norden
>
>
Ansicht Osten
>
>
Ansicht Süden
>
>
Ansicht Westen
>
>
Grundriss EG mit Aussenanlagen
>
>
Grundriss EG
>
>
Grundriss OG
>
>
Schnitt
>
>
Lageplan
>
>