Zum Verkauf steht dieses solide und großzügig geschnittene Einfamilienhaus aus dem Jahr 1967. Auf rund 200 m² Wohnfläche verteilen sich zwei separate Wohneinheiten, eingebettet in ein 681 m² großes Grundstück mit ebenem Garten. Ideal als Mehr-generationenhaus, für eine Kombination aus Wohnen und Arbeiten oder zur Kapitalanlage. Zum Haus gehört ein sehr großzügiger Keller mit viel Raum für
Hobbies und Tüfteleien. Des weiteren können Sie Ihr Fahrzeug in einer Fertiggarage parken.
Gebäudedaten
Baujahr: 1967
Massivbauweise
Grundstücksfläche: ca. 681 m²
Wohnfläche: ca. 200 m² (zwei Einheiten)
Bezugsfrei und kurzfristig übergabefähig
ESW - Niederdünzebach: Geräumiges Einfamilienhaus mit 2 Wohneinheiten & neuwertigem Dach!
37269 Eschwege
Die vollständige Adresse der Immobilie erhalten Sie vom Anbieter.
Auf Karte anzeigen
Die vollständige Adresse der Immobilie erhalten Sie vom Anbieter.
Finanzierungszertifikat
In nur zwei Minuten zu Ihrem persönlichen Finanzierungszertifkat.
Infos
| Haustyp | Einfamilienhaus |
|---|---|
| Etagenzahl | 1 |
| Wohnfläche ca. | 200 m2 |
| Grundstücksfläche | 682 m2 |
| Bezugsfrei ab | sofort |
| Zimmer | 8 |
| Schlafzimmer | 4 |
| Badezimmer | 2 |
| Anzahl Garage/Stellplatz | 1 |
Kosten
| Kaufpreis |
199.000 € |
|---|---|
| Provision |
2,98 2,98% Käuferprovision inkl. gesetzl. Mehrwertsteuer. Die Gesamtprovision beträgt 5,96%. Der andere Teil in Höhe von 2,98% ist vom Verkäufer zu tragen. |
Finanzierungsrechner:
Kaufpreis:
600.000 €
Eigenkapital:
600.000 €
Monatliche Rate
0 €
Effektiver Jahreszins
0 %
Sollzinsbindung
10 Jahre
Bausubstanz & Energieausweis
| Baujahr | 1967 |
|---|---|
| Letzte Sanierung | 2005 |
| Bauphase | Haus fertig gestellt |
| Objektzustand | Renovierungsbedürftig |
| Qualität der Austattung | Normal |
| Heizungsart | Zentralheizung |
| Wesentliche Energieträger | Öl |
| Energieausweis | liegt vor |
| Energieausweistyp | Bedarfsausweis |
| Energieverbrauchskennwert | 236,4 kWh/(m²*a) |
| Energieeffizienzklasse | G |
236,4
kWh/(m²*a)
Energieeffizienzklasse G
- A+
- A
- B
- C
- D
- E
- F
- G
- H
- 0
- 25
- 50
- 75
- 100
- 125
- 150
- 175
- 200
- 225
- >250
Beschreibung des Objekts
Ausstattung
Obere Wohneinheit
Großzügiger Wohnbereich mit direktem Zugang zum nachträglich errichteten Balkon
Hell und freundlich durch bodentiefe Fenster
Separate Küche und Tageslichtbad
Untere Wohneinheit
Ebenengleicher Zugang zur Terrasse.
Direkter Gartenzugang – perfekt für Kinder oder Hobbygärtner.
Eigenes Duschbad und Pantry-Küche.
Modernisierungen & Technik
Komplett neues Dach (2003) mit lasierten Ziegeln und Geschossdeckendämmung.
Öl-Niedertemperaturbrennwertheizung (1999) inkl. neuer Heizungsleitungen und Dämmung im Untergeschoss.
Schornstein für Brennwerttechnik umgebaut (1999).
Erneuerte Fensterbänke (2003).
Außenputz, Innenanstrich und Tapezierarbeiten umfassend erneuert (2005).
Garten & Außenbereich
Sonniger, eingewachsener Garten auf einer Ebene.
Terrasse an der unteren Einheit, ideal für Grillabende oder entspanntes Frühstück im Freien.
Platz für Kinderspielgeräte, Hochbeete oder einen kleinen Pool.
Vereinbaren Sie noch heute einen Besichtigungstermin und überzeugen Sie sich selbst von den vielseitigen Nutzungsmöglichkeiten dieses charmanten Hauses in Niederdünzebach.
Lage
Ruhige Wohnstraße in Niederdünzebach (ESW)
Gute Anbindung an den ÖPNV und B27 in wenigen Minuten erreichbar
Einkaufsmöglichkeiten, Kitas und Schulen im Umkreis von 5 Autominuten
Viel Grün und Spielplätze direkt vor der Haustür
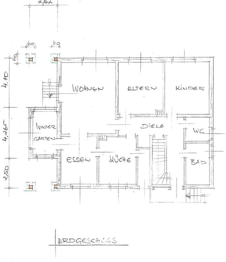
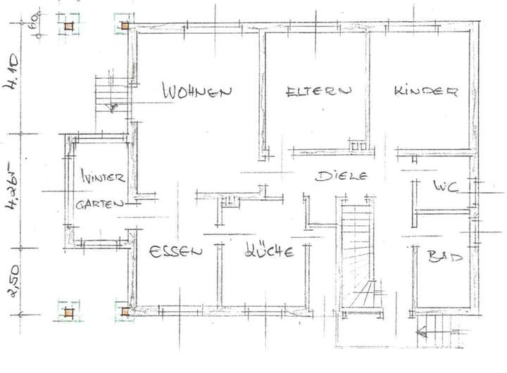
Grundriss
Grundriss DG
>
>
Grundriss EG
>
>
Adresse
37269 Eschwege
Interessante Orte
Preis- und Lageinformationen
Preistrend für Bestandsimmobilien in Eschwege