Exklusives Einfamilienhaus in Top-Lage nahe Naturschutzgebiet und Ostseestrand
Dieses imposante Einfamilienhaus in absoluter Bestlage am Naturschutzgebiet lässt die Herzen von Kennern höherschlagen. Erbaut im Jahr 1986 und 1999 aufwendig komplett umgebaut, besticht es durch eine Kombination aus hochwertiger Ausstattung und großzügigem Raumangebot.
Das Erdgeschoss dieser exzellenten Immobilie bietet auf rund 200 m² zzgl. ca 30 m² im Wintergarten, großzügige Räume, die durch ihre hochwertige Bauweise und durchdachte Gestaltung bestechen. Besonders hervorzuheben ist der über 70 m² große Wohn-Essbereich mit einem bezaubernden Kachelofen. Durch die bodentiefen Fenster ist der Bereich lichtdurchflutet und offen gestaltet. Hier haben Sie auch direkten Zugang zum eleganten Wintergarten, der das ganze Jahr über eine besondere Wohlfühlatmosphäre bietet und den Ausgang zur sonnigen Süd-West-Terrasse freigibt – der perfekte Ort, um den Tag zu genießen.
Die großzügige Einbauküche (EBK) lässt keine Wünsche offen und bietet Raum für kreative Kochabende. Ein geräumiges Badezimmer mit Wanne sowie ein praktisches Gäste-WC mit Dusche runden das Raumangebot auf dieser Wohnebene ab.
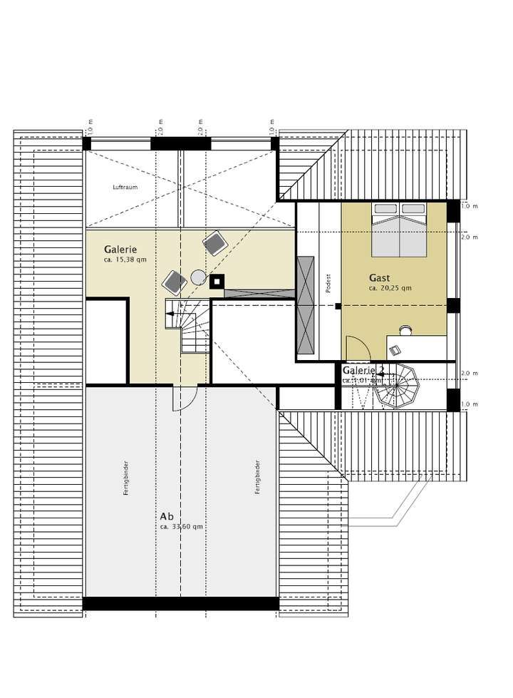
Im galerieartigen Dachgeschoss stehen Ihnen ca. 35 m² weitere Fläche zur Verfügung, die vielfältige Nutzungsmöglichkeiten bietet – ideal als Büro, Gästezimmer oder Hobbyraum.
Zwei geschlossene Carports stehen für die sichere Unterbringung Ihrer Fahrzeuge zur Verfügung.
Diese Immobilie bietet Ihnen nicht nur ein Zuhause in einer der begehrtesten Lagen an der Ostsee, sondern auch ein Leben in Exklusivität und Ruhe. Der perfekte Ort für Menschen, die das Besondere suchen und eine Immobilie mit Charakter und Stil zu schätzen wissen.
Nutzen Sie die Gelegenheit und überzeugen Sie sich persönlich von dieser einzigartigen Immobilie.
Gerne vereinbaren wir mit Ihnen einen unverbindlichen Besichtigungstermin.
Ansprechpartner für dieses Objekt:
Energieausweis: Verbrauchsausweis 99,1 kWh(m²a)Gas, Bj. Haus 1986, Umbau 1999, Baujahr Wärmeerzeuger: 2011, C
Frank Hill / Katja-A. Kewitz
04531 / 508-75791 oder -75792
Mobil 0151 / 122 122 06
Top-Lage nahe Naturschutzgebiet
23669 Timmendorfer Strand
Die vollständige Adresse der Immobilie erhalten Sie vom Anbieter.
Auf Karte anzeigen
Die vollständige Adresse der Immobilie erhalten Sie vom Anbieter.
Finanzierungszertifikat
In nur zwei Minuten zu Ihrem persönlichen Finanzierungszertifkat.
Infos
| Haustyp | Einfamilienhaus |
|---|---|
| Wohnfläche ca. | 260 m2 |
| Grundstücksfläche | 1.335 m2 |
| Bezugsfrei ab | nach Absprache |
| Zimmer | 4 |
| Garage/Stellplatz | Carport |
| Anzahl Garage/Stellplatz | 2 |
Kosten
| Kaufpreis |
1.090.000 € |
|---|---|
| Provision |
3,57 % inkl. ges. MwSt. |
Finanzierungsrechner:
Kaufpreis:
600.000 €
Eigenkapital:
600.000 €
Monatliche Rate
0 €
Effektiver Jahreszins
0 %
Sollzinsbindung
10 Jahre
Bausubstanz & Energieausweis
| Baujahr | 1986 |
|---|---|
| Letzte Sanierung | 1999 |
| Bauphase | Haus fertig gestellt |
| Objektzustand | Modernisiert |
| Qualität der Austattung | Gehoben |
| Wesentliche Energieträger | Gas |
| Energieausweis | liegt vor |
| Energieausweistyp | Verbrauchsausweis |
| Energieverbrauchskennwert | 99,1 kWh/(m²*a) |
| Energieeffizienzklasse | C |
99,1
kWh/(m²*a)
Energieeffizienzklasse C
- A+
- A
- B
- C
- D
- E
- F
- G
- H
- 0
- 25
- 50
- 75
- 100
- 125
- 150
- 175
- 200
- 225
- >250
Beschreibung des Objekts
Ausstattung
Baujahr: 1986, Umbau und Modernisierung : 1999
Naturnahe Lage am Naturschutzgebiet
Über 70 m² Wohn-/Essbereich mit Kachelofen und direktem Zugang zum Wintergarten
Süd-West-Terrasse, Gartenhaus, Gerätehaus
Hochwertige Einbauküche (EBK) mit modernsten Geräten
Galerieartiges Dachgeschoss mit ca. 35 m² zusätzlicher Fläche
Großes Badezimmer mit Wanne und Tageslicht
Gäste WC mit Dusche
Zwei geschlossene Carports
Lage
Die Immobilie befindet sich in der malerischen Ortschaft Niendorf, einem charmanten Fischerdorf an der Lübecker Bucht. Der feinsandige Ostseestrand liegt nur etwa 600 m entfernt und lädt zu ausgedehnten Spaziergängen und Erholung ein. Niendorf besticht durch seinen traditionellen Hafen und das authentische Flair, das es zu einem der beliebtesten Ziele an der Lübecker Bucht macht.
Die umliegende Natur bietet zahlreiche Wander- und Radwege – ein besonders attraktiver Weg führt Sie entlang des Brodtener Steilufers, von dem aus Sie einen einzigartigen Blick auf die gesamte Lübecker Bucht genießen können.
Nur ca. 3 km entfernt liegt Timmendorfer Strand, bekannt für seine exklusiven Strandbäder und erstklassigen Freizeitmöglichkeiten. Hier finden Sie auch sehr gute Einkaufsmöglichkeiten sowie eine hervorragende Gastronomie, die keine Wünsche offenlässt.
Grundriss
Grundriss EG
>
>
Grundriss DG
>
>
Adresse
23669 Timmendorfer Strand
Interessante Orte
Preis- und Lageinformationen
Preistrend für Bestandsimmobilien in Timmendorfer Strand