Dieses attraktive Grundstück bietet eine einmalige Gelegenheit für Investoren und Bauträger, die ein bereits vorgenehmigtes Projekt zur Errichtung einer Seniorenresidenz realisieren möchten. Die Pläne umfassen ein modernes und komfortables Konzept für eine Seniorenresidenz, dass sich durch eine durchdachte Gestaltung und Grünflächen auszeichnet. Dies garantiert eine hohe Lebensqualität für die zukünftigen Bewohner.
Auch junge Familien die sich endlich den Traum eines Eigenheims verwirklichen wollen, finden hier das passende Grundstück.
Kontaktieren Sie uns gerne für weitere Informationen.
Webseite:
https://www.loft21.de/
Instagram:
https://www.instagram.com/loft21.de/
** Grundstück mit genehmigtem Bauprojekt in zentraler Lage von Gaimersheim **
85080 Gaimersheim
Die vollständige Adresse der Immobilie erhalten Sie vom Anbieter.
Auf Karte anzeigen
Die vollständige Adresse der Immobilie erhalten Sie vom Anbieter.
Finanzierungszertifikat
In nur zwei Minuten zu Ihrem persönlichen Finanzierungszertifkat.
Infos
| Vermarktungsart | Kaufen |
|---|---|
| Grundstücksfläche | 1.172 m2 |
| Erschließung | Erschlossen |
| Grundflächenzahl (GRZ) | 0.6 |
| Geschossflächenzahl (GFZ) | 0.5 |
| Bebaubar nach | wie Nachbarbebauung |
Kosten
| Miete pro Jahr |
784.900 € |
|---|---|
| Provision |
3,57 % inkl. MwSt. |
Finanzierungsrechner:
Kaufpreis:
600.000 €
Eigenkapital:
600.000 €
Monatliche Rate
0 €
Effektiver Jahreszins
0 %
Sollzinsbindung
10 Jahre
Beschreibung des Objekts
Lage
Gaimersheim überzeugt durch seine idyllische Lage und die direkte Nähe zu Ingolstadt, nur wenige Kilometer entfernt. Die Gemeinde bietet eine hervorragende Anbindung an das Verkehrsnetz über die nahegelegene Autobahn A9 sowie gut ausgebaute Bundesstraßen, wodurch Städte wie Ingolstadt, München und Nürnberg schnell erreichbar sind. Dies macht Gaimersheim sowohl für Pendler als auch für Unternehmen interessant. Zudem verfügt die Gemeinde über eine ausgezeichnete Infrastruktur mit Kindergärten, Schulen, Einkaufsmöglichkeiten und medizinischer Versorgung direkt vor Ort. Die Umgebung und die Nähe zur Natur verleihen Gaimersheim zusätzlich einen hohen Wohn- und Lebenswert.
Entfernungen:
* 02 min / ca. 0,9 km Lebensmittel
* 04 min / ca. 1,3 km Restaurante
* 02 min / ca. 0,3 km Kindergarten
* 03 min / ca. 1,3 km Mittelschule
* 04 min / ca. 2,3 km Gymnasium
* 05 min / ca. 2,8 km Ingolstadt
* 55 min / ca. 80 km München
Sonstige Angaben
Wir möchten Sie darauf hinweisen, dass alle von uns bereitgestellten Objektinformationen, Pläne und Unterlagen vom Eigentümer stammen. Eine Haftung für die Richtigkeit oder Vollständigkeit der Angaben übernehmen wir daher nicht. Es obliegt daher unseren Kunden, die darin enthaltenen Objektinformationen und Angaben auf ihre Richtigkeit hin zu überprüfen. Alle Immobilienangebote sind freibleibend und vorbehaltlich Irrtümer, Zwischenverkauf- und Vermietung.
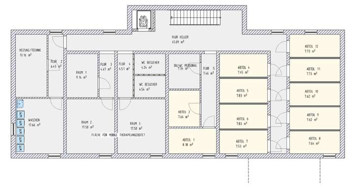
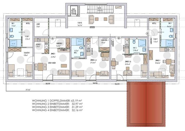
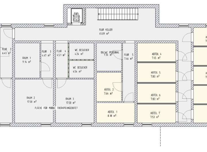
Grundriss
Untergeschoss
>
>
Erdgeschoss
>
>
Obergeschoss
>
>
Dachgeschoss
>
>