Dieses charmante Einfamilienhaus aus dem Jahr 1944 befindet sich in idyllischer Hanglage von Thallwitz und bietet ein außergewöhnliches Potenzial für kreative Köpfe. Auf einem großzügigen Grundstück von rund 1.925 Quadratmetern eröffnet sich eine reizvolle Gelegenheit zur individuellen Gestaltung – ob Renovierung des bestehenden Gebäudes oder Verwirklichung eines Neubaus (Baugenehmigung liegt vor).
Das Haus wurde bereits entkernt und bietet somit eine hervorragende Grundlage für eine umfassende Modernisierung. Über den Eingangsflur gelangt man im Erdgeschoss in zwei separat nutzbare Räume, in denen sich auch die Möglichkeit zum Anschluss eines Ofens bietet – ideal für ein behagliches Wohnambiente.
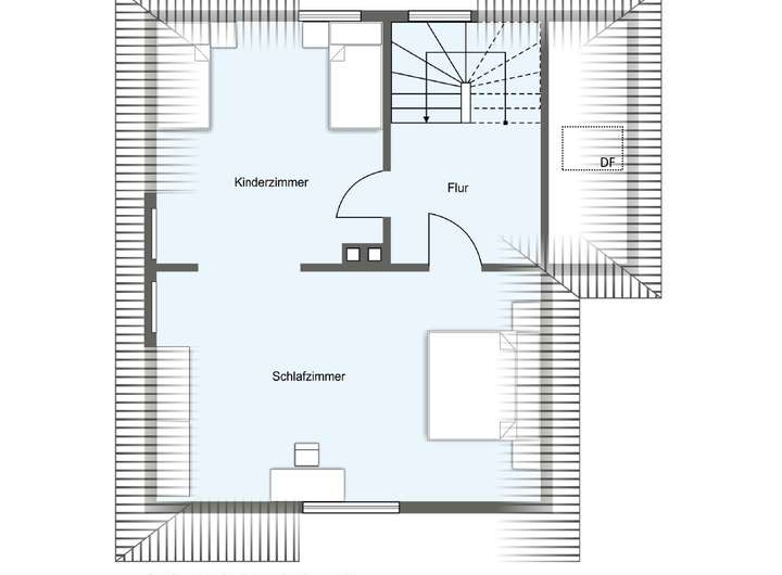
Im Obergeschoss stehen zwei weitere Zimmer zur Verfügung, die vielfältig genutzt werden können. Das absolute Highlight ist der beeindruckende Ausblick, der sich von hier über das grüne Thallwitz bis hin nach Wurzen erstreckt – ein Panorama, das jeden Tag aufs Neue begeistert.
Im Kellergeschoss befinden sich die Küche, ein Badezimmer sowie ein praktischer Abstellraum. Zusätzlich sind auf dem Grundstück mehrere Nebengebäude vorhanden, die sich als Werkstatt, Lagerfläche oder für andere Zwecke nutzen lassen.
Über eine offizielle Einfahrt erreichen Sie das Grundstück und haben ausreichend Platz für Stellflächen oder weitere Nutzungen.
Diese Immobilie verbindet ländliche Ruhe mit attraktiven Entwicklungsmöglichkeiten – perfekt für alle, die ihre Wohnideen in naturnaher Umgebung verwirklichen möchten.
Renovierungsprojekt mit Potenzial – einzigartiges Hanggrundstück mit Baugenehmigung
04808 Thallwitz
Die vollständige Adresse der Immobilie erhalten Sie vom Anbieter.
Auf Karte anzeigen
Die vollständige Adresse der Immobilie erhalten Sie vom Anbieter.
Finanzierungszertifikat
In nur zwei Minuten zu Ihrem persönlichen Finanzierungszertifkat.
Infos
| Haustyp | Einfamilienhaus |
|---|---|
| Etagenzahl | 2 |
| Wohnfläche ca. | 131 m2 |
| Grundstücksfläche | 1.925 m2 |
| Zimmer | 4 |
| Anzahl Garage/Stellplatz | 1 |
Kosten
| Kaufpreis |
185.000 € |
|---|---|
| Provision |
3.57 % inkl. gesetzl. MwSt. |
Finanzierungsrechner:
Kaufpreis:
600.000 €
Eigenkapital:
600.000 €
Monatliche Rate
0 €
Effektiver Jahreszins
0 %
Sollzinsbindung
10 Jahre
Bausubstanz & Energieausweis
| Baujahr | 1944 |
|---|---|
| Objektzustand | Renovierungsbedürftig |
| Wesentliche Energieträger | Gas |
| Energieausweis | liegt vor |
| Energieausweistyp | Bedarfsausweis |
| Energieverbrauchskennwert | 252,7 kWh/(m²*a) |
| Energieeffizienzklasse | H |
252,7
kWh/(m²*a)
Energieeffizienzklasse H
- A+
- A
- B
- C
- D
- E
- F
- G
- H
- 0
- 25
- 50
- 75
- 100
- 125
- 150
- 175
- 200
- 225
- >250
Beschreibung des Objekts
Ausstattung
Fliesen
Vollunterkellert
Lage
Das idyllisch und ruhig gelegene Dorf liegt genau zwischen Eilenburg und Wurzen und ist an beide Städte bestens angebunden.
Die Große Kreisstadt Eilenburg vereint die Vorzüge einer städtischen Infrastruktur mit der freundlichen Atmosphäre des ländlichen Raumes. Die „Muldestadt mit grünem Herzen“ zählt knapp 16.000 Einwohner und gehört dem Landkreis Nordsachsen an. Sie liegt im Nordwesten des Freistaates Sachsens, am Rand der Dübener Heide und rund 20 Kilometer nordöstlich der Universitäts- und Messestadt Leipzig. Mit zwei Bundesstraßen und einigen Bahnstrecken ist Eilenburg sehr gut in das Straßen- und Schienennetz Sachsens und Mitteldeutschlands integriert.
Die große Kreis- und Domstadt Wurzen liegt am östlichen Hochufer der Mulde und ist ca. 30 Kilometer von Leipzig entfernt. Die Stadt Wurzen weist eine gute Infrastruktur auf. Über die Anbindung an die B6 sowie das S-Bahn-Netz erreichen Sie das Leipziger Stadtzentrum in ca. 30 Minuten. Das Autobahnkreuz der Autobahn A9 und A14 liegt unweit von Wurzen entfernt. Als wichtiger Wirtschaftsstandort besitzt Wurzen im Landkreis Leipzig große regionale Bedeutung. Der historische Stadtkern mit seinen malerischen Gassen, Gebäuden und Plätzen lädt zum Erkunden und Verweilen ein. Zahlreiche Einkaufsmöglichkeiten erreichen Sie zu Fuß. Kindergärten, Schulen, Gymnasium, Krankenhaus und Freizeiteinrichtungen befinden sich in einem Umkreis von wenigen Kilometern.
Sonstige Angaben
Der Makler-Vertrag mit uns kommt durch die Beauftragung der Maklertätigkeit in Textform (z.B. E-Mail mit Bestätigung der gewollten Inanspruchnahme) zustande. Die Höhe der Courtage richtet sich nach den ab dem 23.12.2020 in Kraft getretenen gesetzlichen Regelungen zur Teilung der Maklercourtage. Hiernach wird die Courtage regelmäßig für beide Parteien (Eigentümer und Käufer) jeweils in Höhe von 3 % zuzüglich Umsatzsteuer in jeweils geltender Höhe, derzeit also insgesamt 3,57 % des Kaufpreises einschließlich Umsatzsteuer bei notariellem Vertragsabschluss verdient und fällig. Die Höhe der Bruttocourtage unterliegt einer Anpassung bei Steuersatzänderung. Grunderwerbssteuer, Notar- und Gerichtskosten trägt der Käufer. Alle Angaben sind ohne Gewähr und basieren ausschließlich auf Informationen, die uns von unserem Auftraggeber übermittelt wurden. Wir übernehmen keine Gewähr für die Vollständigkeit, Richtigkeit und Aktualität dieser Angaben. Zwischenverkauf bleibt vorbehalten. Sollte das von uns nachgewiesene Objekt bereits bekannt sein, teilen Sie uns dieses bitte unverzüglich mit. Die Weitergabe dieses Exposees an Dritte ohne unsere Zustimmung löst gegebenenfalls Courtage- bzw. Schadensersatzansprüche aus. Im Übrigen gelten die beigefügten allgemeinen Geschäftsbedingungen für die Rechtsbeziehung zwischen Ihnen und der Saxonia Metropol GmbH (Lizenznehmer der Engel & Völkers Residential GmbH).
Grundriss
Erdgeschoss
>
>
Dachgeschoss
>
>
Keller
>
>
Adresse
04808 Thallwitz
Interessante Orte
Preis- und Lageinformationen
Preistrend für Bestandsimmobilien in Thallwitz