Willkommen in diesem Einfamilienhaus mit zusätzlicher Scheune – ein echtes Juwel für alle, die Raum für Kreativität und individuelle Gestaltung suchen!
Im Erdgeschoss erwartet Sie eine großzügige Küche mit anschließendem Esszimmer, ideal für gesellige Abende und Familienmahlzeiten. Das helle Wohnzimmer lädt zum Verweilen ein, während ein Schlafzimmer im Erdgeschoss zusätzlichen Komfort bietet. Das Tageslichtbad mit Wanne und Dusche ist praktisch gestaltet. Die Waschküche befindet sich direkt dahinter. Unter der Treppe befindet sich ein nützlicher Abstellraum, der zusätzlichen Stauraum schafft.
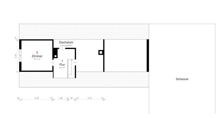
Im Obergeschoss stehen Ihnen ein weiteres Schlafzimmer/ Büro oder Kinder- bzw. Gästezimmer zur Verfügung. Ein kleiner, ungenutzter Raum bietet die Möglichkeit, den Wohnraum nach Ihren Wünschen zu erweitern. Die angebaute Scheune bietet zudem Potenzial für Ausbau und kreative Nutzung – perfekt für Handwerker und Hobbyisten.
Das große Grundstück beherbergt eine geräumige Scheune, die vielfältige Nutzungsmöglichkeiten bietet. Hinter der Scheune erstreckt sich ein wunderschöner Garten, der durch seine Weite und die nur an weitere Gärten grenzende Lage ein echtes Naturparadies darstellt – ideal für entspannte Stunden im Freien oder den Anbau eigener Pflanzen.
Dieses Anwesen verbindet ländliche Idylle mit Potenzial zur individuellen Gestaltung. Lassen Sie Ihrer Kreativität freien Lauf und verwirklichen Sie hier Ihren Traum vom eigenen Zuhause
Renovierungsbedürftiges Einfamilienhaus mit großzügiger Scheune und idyllischem Garten
75242 Neuhausen
Die vollständige Adresse der Immobilie erhalten Sie vom Anbieter.
Auf Karte anzeigen
Die vollständige Adresse der Immobilie erhalten Sie vom Anbieter.
Finanzierungszertifikat
In nur zwei Minuten zu Ihrem persönlichen Finanzierungszertifkat.
Infos
| Haustyp | Einfamilienhaus |
|---|---|
| Etagenzahl | 2 |
| Wohnfläche ca. | 106 m2 |
| Grundstücksfläche | 788 m2 |
| Bezugsfrei ab | sofort |
| Zimmer | 4 |
| Badezimmer | 1 |
| Garage/Stellplatz | Außenstellplatz |
| Anzahl Garage/Stellplatz | 4 |
Kosten
| Kaufpreis |
314.000 € |
|---|---|
| Provision |
3,57% inkl. MwSt. |
Finanzierungsrechner:
Kaufpreis:
600.000 €
Eigenkapital:
600.000 €
Monatliche Rate
0 €
Effektiver Jahreszins
0 %
Sollzinsbindung
10 Jahre
Bausubstanz & Energieausweis
| Baujahr | 1849 |
|---|---|
| Bauphase | Haus fertig gestellt |
| Objektzustand | Renovierungsbedürftig |
| Qualität der Austattung | Einfach |
| Heizungsart | Zentralheizung |
| Wesentliche Energieträger | Öl |
| Energieausweis | liegt vor |
| Energieausweistyp | Bedarfsausweis |
| Energieverbrauchskennwert | 453,1 kWh/(m²*a) |
| Energieeffizienzklasse | H |
453,1
kWh/(m²*a)
Energieeffizienzklasse H
- A+
- A
- B
- C
- D
- E
- F
- G
- H
- 0
- 25
- 50
- 75
- 100
- 125
- 150
- 175
- 200
- 225
- >250
Beschreibung des Objekts
Ausstattung
Die große Scheune auf dem Grundstück kann voraussichtlich abgerissen und durch ein Einfamilienhaus ersetzt werden, oder es besteht die Möglichkeit des Ausbaus. Hier gäbe es natürlich noch Details zu klären. (Keine verbindliche Zusage. Dies muss mit dem Bauamt geklärt werden) Grundsätzlich lässt sich sagen, das Grundstück unterliegt in der Bebaubarkeit der §34 also Nachbarschaftsbebauung.
Somit bietet dieses großzügige Grundstück jede Menge Potenzial - gerne können Sie sich bei einer Besichtigung persönlich davon überzeugen.
Lage
Dieses Haus befindet sich in Neuhausen, einer lebendigen und familienfreundlichen Gemeinde im Landkreis Pforzheim. Die Lage bietet eine angenehme Mischung aus ruhigem Wohnen und guter Erreichbarkeit der wichtigsten Einrichtungen.
In unmittelbarer Nähe finden Sie eine Vielzahl von Einkaufsmöglichkeiten, darunter Supermärkte und Bäckereien, die den täglichen Bedarf bequem abdecken. Für größere Einkäufe oder spezielle Wünsche sind die Einkaufsmärkte in Pforzheim schnell erreichbar.
Schulen und Kindergärten sind ebenfalls in der Umgebung vorhanden, sodass Familien hier eine optimale Infrastruktur vorfinden. Die Grundschule sowie weiterführende Schulen sind gut erreichbar, was den Schulweg angenehm gestaltet.
Die Anbindung an den öffentlichen Nahverkehr ist hervorragend, sodass Sie bequem in die umliegenden Städte und nach Pforzheim gelangen. Die Autobahnen A8 und A5 sind ebenfalls in kurzer Fahrzeit erreichbar, was die Mobilität zusätzlich erhöht.
Genießen Sie die ruhige, aber dennoch zentrale Lage in Neuhausen – perfekt für Familien, die das Beste aus Natur, Gemeinschaft und Infrastruktur verbinden möchten.
Sonstige Angaben
Wir freuen uns auf ihre (schriftliche) Kontaktaufnahme
Grundriss
EG
>
>
DG
>
>
Adresse
75242 Neuhausen
Interessante Orte
Preis- und Lageinformationen
Preistrend für Bestandsimmobilien in Neuhausen