Östlich von München entsteht mit der GRÜNEN MITTE KIRCHHEIM ein neues Wohnquartier in attraktiver Lage zwischen Kirchheim und Heimstetten.
Der Bauabschnitt "See & Park" liegt direkt am Gelände der letztjährigen Landesgartenschau – heute eine großzügige, offen gestaltete Parklandschaft mit hoher Aufenthaltsqualität. Hier verbinden sich Natur, Ruhe und Lebensqualität auf ideale Weise.
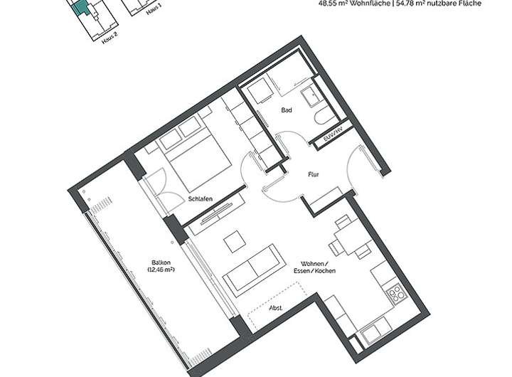
2-Zi.-Whg. mit Duschbad u. extra großem Balkon in Süd-West-Ausrichtung
Schmetterlingsstraße 1,
85551 Kirchheim bei München
Auf Karte anzeigen
Finanzierungszertifikat
In nur zwei Minuten zu Ihrem persönlichen Finanzierungszertifkat.
Infos
| Wohnungskategorie | Etagenwohnung |
|---|---|
| Etage | 1 von 2 |
| Wohnfläche ca. | 48 m2 |
| Nutzfläche | 54,78 m2 |
| Zimmer | 2 |
| Schlafzimmer | 1 |
| Badezimmer | 1 |
Kosten
| Kaufpreis |
462.000 € |
|---|---|
| Provision | Nein |
Finanzierungsrechner:
Kaufpreis:
600.000 €
Eigenkapital:
600.000 €
Monatliche Rate
0 €
Effektiver Jahreszins
0 %
Sollzinsbindung
10 Jahre
Bausubstanz & Energieausweis
| Heizungsart | Zentralheizung |
|---|
Beschreibung des Objekts
Ausstattung
Die Eckdaten der Eigentumswohnungen in „GRÜNE MITTE KIRCHHEIM – See & Park“
- 1- bis 4-Zimmer-Eigentumswohnungen
- Wohnflächen von ca. 31 m ² bis ca. 123 m²
- Mit Terrasse, Balkon oder Dachterrasse
- Vielfältige Grundrisse
- Moderne Architektur
- Tiefgarage mit Einzelstellplätzen
- Hochwertige Ausstattung mit Wahlmöglichkeiten
- Energieeffizienzklasse A
- Pumpen-Warmwasserheizungsanlage mit Anschluss an das Fernwärmenetz
- Dezentrales Be- und Entlüftungssystem mit Wärmerückgewinnung
- Optionale E-Ladelösung in der Tiefgarage über einen Betreiber möglich
- GRÜNE MITTE KIRCHHEIM wurde von der Deutschen Gesellschaft für Nachhaltiges Bauen (DGNB) geprüft und mit dem DGNB Zertifikat in Gold ausgezeichnet
- Ausstattungsdetails:
- Parkett in allen Wohnräumen
- Fußbodenheizung
- Elektrische Raffstores
- Handtuchheizkörper in Bad und Duschbad
- Video-Gegensprechanlage
- Gehobene Standardausstattung mit Wahlmöglichkeiten, z. B.
- Parkettboden
- Waschtisch / WC von Laufen
- Fliesen (Boden und Wand) von Villeroy & Boch
- Armaturen von Hansgrohe
Angaben des vorläufigen Energieausweises für Wohngebäude gemäß den §§ 79 ff. Gebäudeenergiegesetz (GEG) vom 16.10.2023:
- Art des Energieausweis: Energiebedarfsausweis - Entwurf
- Endenergiebedarf: 42,5 kWh / (m²*a)
- Wesentliche Energieträger für Heizung und Warmwasser: Fernwärme AFK Geothermie
- Baujahr Gebäude, Wärmeerzeuger gemäß Energieausweis: 2025
- Energieeffizienzklasse: A
Lage
STADT, LAND, PARK, GRÜNE MITTE
Das Münchner Umland ist heiß begehrt – und das nicht ohne Grund. Denn hier trifft eine hervorragende Infrastruktur mit sehr guten Anbindungen sowie einem großen Angebot an Schulen und Einkaufsmöglichkeiten auf eine traditionsreiche Landschaft, die viele Freizeit- und Erholungsmöglichkeiten in der Natur bietet. Insbesondere mit seiner Nähe zur lebendigen Großstadtmetropole und zum idyllischen Alpenvorland zieht es all jene an, die das Beste aus beiden Welten suchen..
EIN UMFELD MIT VIELEN VORZÜGEN
Der Freizeitwert rund um GRÜNE MITTE KIRCHHEIM ist riesig. Hier profitieren Sie nicht nur von den außergewöhnlichen Erholungsflächen der Landesgartenschau, sondern auch von den vielfältigen Freizeiteinrichtungen, der Nähe zu den Bergen sowie den Angeboten der Landeshauptstadt selbst.
Ob Sie sich für Ihre Familie mehr Platz und Grün wünschen – vielleicht sogar mit eigenem Garten – oder ob Sie Ihre Arbeit mit den vielen Freizeitmöglichkeiten rund um München und dem Alpenvorland verbinden möchten: GRÜNE MITTE KIRCHHEIM schafft den Spagat zwischen Urbanität und ländlichem Charme.
Sonstige Angaben
BERATUNG VOR ORT
Unsere Musterwohnung befindet sich in der Hauptstraße 45c in 85551 Kirchheim b. München.
Persönliche Beratung durch Ihre Verkaufsberater im Auftrag der DEMOS Wohnbau GmbH:
Freitag von 16:00 bis 19:00 Uhr
Samstag und Sonntag von 14:00 bis 18:00 Uhr
oder im Rahmen eines individuell vereinbarten Beratungstermins.
Sie erreichen Ihre Verkaufsberater jederzeit persönlich unter der Telefonnummer: 089 / 231 73 200.
Sehr geehrte Interessentinnen, sehr geehrte Interessenten,
am zweiten Weihnachtsfeiertag, Freitag, den 26.12.2025, findet ausnahmsweise keine reguläre Besetzung der Musterwohnung statt.
An diesem Tag beraten Sie Ihre Verkaufsberater, im Auftrag der DEMOS Wohnbau GmbH, gerne im Rahmen eines individuell vereinbarten Beratungstermins.
Wir wünschen Ihnen ein gesegnetes Weihnachtsfest, besinnliche Feiertage und ein gutes neues Jahr 2026.
Ihre DEMOS
Adresse
Schmetterlingsstraße 1, 85551 Kirchheim bei München
Interessante Orte
Preis- und Lageinformationen
Preistrend für Bestandsimmobilien in Kirchheim bei München