Wer zuerst kommt, kauft zuerst!
Dieses attraktive Mehrfamilienhaus in Erzingen bietet durch die laufenden Instandhaltungs- und Modernisierungsmaßnahmen, die solide Bausubstanz und langfristig bestehenden Mietverhältnisse eine hervorragende Anlagechance für Investoren.
Das Haus ist auch für Aufteiler eine lukrative Gelegenheit!
Es wurde im Jahr 1972 in Massivbauweise errichtet, es erstreckt sich über drei Geschosse und ist voll unterkellert.
Die Immobilie ist in gepflegtem Zustand. Sie wurde laufend modernisiert, um wertstabil zu bleiben.
Das Gebäude wird mit einer Öl-Zentralheizung beheizt, der Brenner wurde im Jahr 2001 erneuert, der Warmwasserspeicher im Jahr 2024.
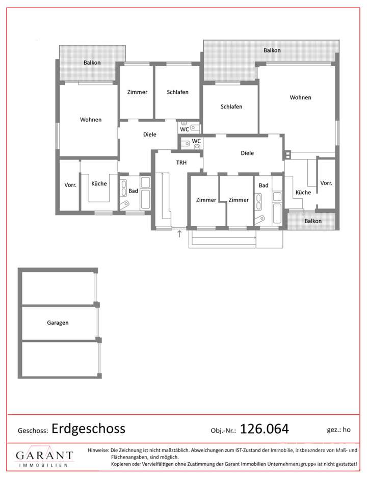
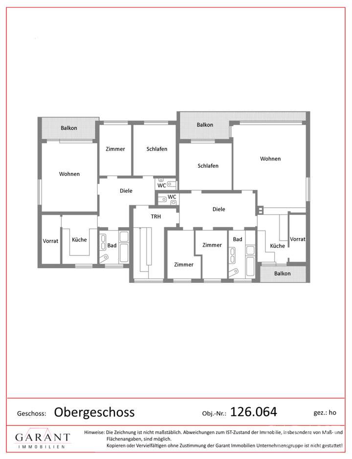
Das Haus beinhaltet sechs Wohnungen, die sich wie folgt gestalten:
* Wohnung Nr. 1 im Erdgeschoss: vier Zimmer, ca. 120 qm, Balkon und Terrasse
* Wohnung Nr. 2 im Erdgeschoss: drei Zimmer, ca. 95 qm, Terrasse
* Wohnung Nr. 3 im 1. Obergeschoss: vier Zimmer, ca. 120 qm, Balkon
* Wohnung Nr. 4 im 1. Obergeschoss: drei Zimmer, ca. 95 qm, Balkon
* Wohnung Nr. 5 im Dachgeschoss: drei Zimmer, ca. 95 qm
* Wohnung Nr. 6 im Dachgeschoss: drei Zimmer, ca. 75 qm
Der Garten hinter dem Haus und auch der Grünstreifen vor dem Haus können von allen Bewohnern genutzt werden. Ebenso der gemeinschaftliche Wasch-, Trocken- und Fahrradraum im Untergeschoss.
Die Garage sowie sechs PKW-Stellplätze direkt vor dem Haus runden dieses Angebot perfekt ab.
Seltene Gelegenheit für Kapitalanleger, Aufteiler oder alle, die clever investieren möchten!
79771 Klettgau
Die vollständige Adresse der Immobilie erhalten Sie vom Anbieter.
Auf Karte anzeigen
Die vollständige Adresse der Immobilie erhalten Sie vom Anbieter.
Finanzierungszertifikat
In nur zwei Minuten zu Ihrem persönlichen Finanzierungszertifkat.
Infos
| Haustyp | Mehrfamilienhaus |
|---|---|
| Etagenzahl | 3 |
| Wohnfläche ca. | 582 m2 |
| Grundstücksfläche | 716 m2 |
| Bezugsfrei ab | vermietet |
| Zimmer | 20 |
| Schlafzimmer | 15 |
| Badezimmer | 6 |
| Garage/Stellplatz | Garage |
| Anzahl Garage/Stellplatz | 1 |
Kosten
| Kaufpreis |
1.149.000 € |
|---|---|
| Provision |
4,76 % inkl. ges. MwSt. Die Maklercourtage für den Käufer beträgt 4 % aus dem Kaufpreis zuzüglich der gesetzlichen MwSt., somit gesamt 4,76 %. |
Finanzierungsrechner:
Kaufpreis:
600.000 €
Eigenkapital:
600.000 €
Monatliche Rate
0 €
Effektiver Jahreszins
0 %
Sollzinsbindung
10 Jahre
Bausubstanz & Energieausweis
| Baujahr | 1973 |
|---|---|
| Letzte Sanierung | 2024 |
| Bauphase | Haus fertig gestellt |
| Objektzustand | Gepflegt |
| Qualität der Austattung | Normal |
| Heizungsart | Öl-Heizung |
| Wesentliche Energieträger | Öl |
| Energieausweis | liegt vor |
| Energieausweistyp | Verbrauchsausweis |
| Energieverbrauchskennwert | 101,0 kWh/(m²*a) |
| Energieeffizienzklasse | D |
101,0
kWh/(m²*a)
Energieeffizienzklasse D
- A+
- A
- B
- C
- D
- E
- F
- G
- H
- 0
- 25
- 50
- 75
- 100
- 125
- 150
- 175
- 200
- 225
- >250
Beschreibung des Objekts
Ausstattung
* Einbauküchen
* Balkone
* Garage sowie sechs Stellplätze
* private Kellerabteile
* Gemeinschaftswasch- und Trockenraum
* Gemeinschaftsfahrradraum
* Gemeinschaftsgarten
Lage
Erzingen ist ein beliebter Ortsteil der Gemeinde Klettgau, der eine ruhige und naturnahe Wohnlage bietet und gleichzeitig von einer sehr guten Infrastruktur profitiert. Der Ort verfügt über einen eigenen Bahnhof, mit unter anderem direkter Anbindung in die nur wenige Kilometer entfernte Schweiz. Eine Buslinie ist zu Fuß erreichbar.
In größere, nahegelegene Städte kommt man schnell per PKW über die Autobahn B34, die durch Erzingen führt und über die A98, was für Berufspendler in die Schweiz besonders interessant ist.
Im Ort selbst finden Sie in wenigen Autominuten und teils sogar fußläufig alle Einkaufsmöglichkeiten des täglichen Bedarfs wie Supermärkte, Drogerien, Tankstellen, medizinische Versorgung, Apotheken oder Banken. In unmittelbarer Nähe sind Kindergärten, eine Grundschule, weiterführende Schulen sowie vielfältige Arbeitsmöglichkeiten vorhanden. Die Umgebung ist geprägt von dem bekannten Weinbau, weitläufigen Wäldern, Wiesen und Naherholungsgebieten mit ihren vielfältigen Rad- und Wanderwegen, die jeden Wunsch auf unterschiedlichste Freizeitaktivitäten erfüllen.
Sonstige Angaben
Energieverbrauchsausweis Energiekennwert: 101,00 kWh/(qm*a) Energieeffizienz: Klasse D (kl.130) Heizung: Öl-Heizung mit Öl Baujahr laut Energieausweis: 1972
1 x Garage, 6 x Stellplatz außen
Das Haus ist nicht aufgeteilt worden und kann deshalb auch für Aufteiler interessant sein!
Alle sechs Wohnungen sind vermietet, u. a. an langjährige, zuverlässige Mieter.
Die monatlichen Gesamtmieten belaufen sich auf ca. 6.312 Euro, davon betragen die monatlichen Nebenkosten ca. 1.160 Euro.
Das Haus wurde seit 2020 laufend und umfangreich renoviert:
Fassadenanstrich, teilweise Bäder und Küche, Dachreparaturen, Heizungsanlage, Haustüranlage, Warmwasserspeicher, Heizkreislaufpumpe, Neuverlegung diverser Wasserrohre bis Verteiler.
Grundriss
Kellergeschoss
>
>
Erdgeschoss
>
>
Obergeschoss
>
>
Dachgeschoss
>
>
Adresse
79771 Klettgau
Interessante Orte
Preis- und Lageinformationen
Preistrend für Bestandsimmobilien in Klettgau