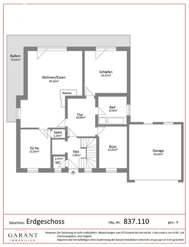
Effizient, geräumig und gepflegt - dieses freistehende Einfamilienhaus vereint moderne Energielösungen mit außergewöhnlich viel Wohnfläche und einem weitläufigen, liebevoll angelegten Garten. Auf rund 299 qm Wohnfläche, verteilt auf drei Etagen (KG, EG, DG), erwarten Sie insgesamt acht Zimmer, drei Bäder, drei Küchen und ein vielfältig nutzbares Raumkonzept - perfekt für Familien, Wohnen mit mehreren Generationen oder eine Kombination aus Leben und Arbeiten.
Das ca. 1991 erbaute Haus wurde fortlaufend instand gehalten und modernisiert. Die massive Ziegelbauweise mit Betondecken sorgt für Wertstabilität, während technische Updates das Objekt energetisch auf den aktuellen Stand bringen: Eine Photovoltaikanlage mit 12,32 kWp (Bj. 2010) erzielt eine Einspeisevergütung von ca. 300,-- EUR monatlich. Ergänzt wird das System durch eine thermische Solaranlage mit ca. 15,48 qm Kollektorfläche (Sechs Module) zur Heizungsunterstützung. Die Heizungsanlage selbst wurde 2019 vollständig erneuert und ist mit effizienter Fußbodenheizung ausgestattet.
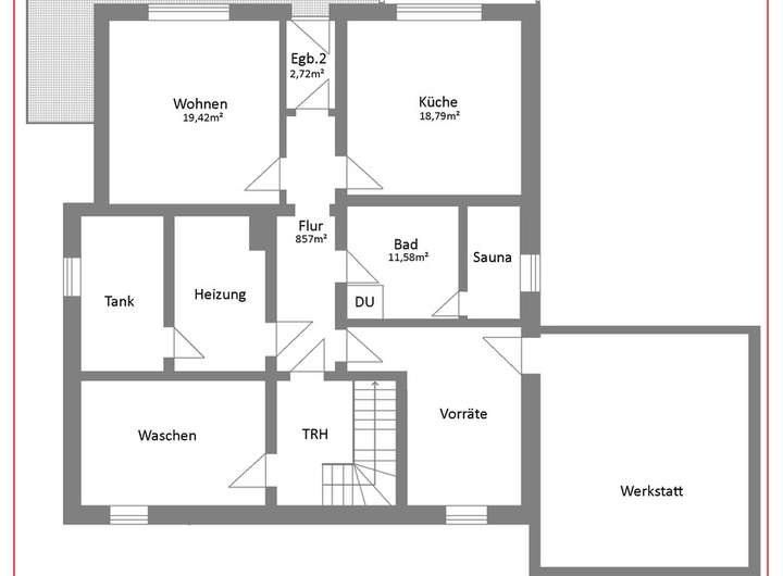
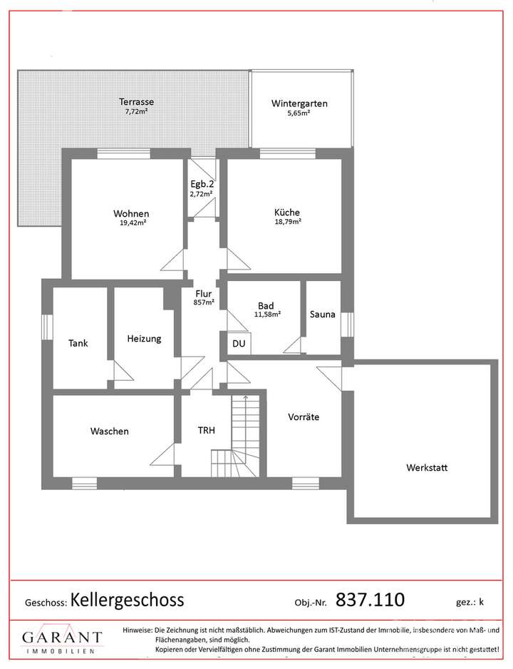
Für zusätzlichen Komfort sorgen ein Wintergarten, eine große Terrasse mit elektrischer Markise und Sichtschutz, ein wohnlicher Kachelofen im Erdgeschoss, ein Schwedenofen im Dachgeschoss sowie eine Sauna mit eigenem Bad im Untergeschoss. Eine Garage mit Platz für zwei Fahrzeuge, ein Werkstattraum und ein separater Waschraum im Keller runden das funktionale Raumangebot mit weiteren 113 m² Nutzfläche ab.
Das ca. 960 m² große Grundstück ist ein echtes Highlight für Gartenliebhaber: Der Garten wurde 2023/2024 neu angelegt, mit Zier- und Nutzflächen, Teich, zwei Brunnen, Gartenhütte sowie automatischer Bewässerung für den Gemüsegarten - eine grüne Oase in ruhiger Wohnlage.
Bernried im Landkreis Deggendorf steht für naturnahes Leben mit hohem Freizeitwert und guter Erreichbarkeit. Ob wandern, entspannen oder nachhaltig wohnen - dieses Haus vereint Lebensqualität mit Weitblick.
Fast 300 qm Wohnfläche, PV-Einnahmen & Solartechnik - großzügiges Wohnhaus in guter Lage
94505 Bernried
Die vollständige Adresse der Immobilie erhalten Sie vom Anbieter.
Auf Karte anzeigen
Die vollständige Adresse der Immobilie erhalten Sie vom Anbieter.
Finanzierungszertifikat
In nur zwei Minuten zu Ihrem persönlichen Finanzierungszertifkat.
Infos
| Haustyp | Einfamilienhaus |
|---|---|
| Etagenzahl | 3 |
| Wohnfläche ca. | 299 m2 |
| Nutzfläche | 113 m2 |
| Grundstücksfläche | 960 m2 |
| Bezugsfrei ab | nach Absprache |
| Zimmer | 8 |
| Schlafzimmer | 3 |
| Badezimmer | 2 |
| Garage/Stellplatz | Garage |
| Anzahl Garage/Stellplatz | 1 |
Kosten
| Kaufpreis |
569.000 € |
|---|---|
| Provision |
2,97 % inkl. ges. MwSt. Die Maklercourtage für den Käufer beträgt 2,5 % aus dem Kaufpreis zuzüglich der gesetzlichen MwSt., somit gesamt 2,97 %. |
Finanzierungsrechner:
Kaufpreis:
600.000 €
Eigenkapital:
600.000 €
Monatliche Rate
0 €
Effektiver Jahreszins
0 %
Sollzinsbindung
10 Jahre
Bausubstanz & Energieausweis
| Baujahr | 1991 |
|---|---|
| Letzte Sanierung | 2019 |
| Bauphase | Haus fertig gestellt |
| Objektzustand | Gepflegt |
| Qualität der Austattung | Normal |
| Heizungsart | Zentralheizung |
| Wesentliche Energieträger | Öl |
| Energieausweis | liegt vor |
| Energieausweistyp | Bedarfsausweis |
| Energieverbrauchskennwert | 107,6 kWh/(m²*a) |
| Energieeffizienzklasse | D |
107,6
kWh/(m²*a)
Energieeffizienzklasse D
- A+
- A
- B
- C
- D
- E
- F
- G
- H
- 0
- 25
- 50
- 75
- 100
- 125
- 150
- 175
- 200
- 225
- >250
Beschreibung des Objekts
Ausstattung
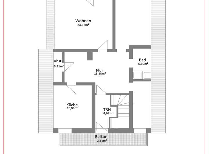
* Ca. 299 qm Wohnfläche auf drei Etagen (Kellergeschoss,
Erdgeschoss, Dachgeschoss)
* acht Zimmer, drei Bäder, zwei Küchen (EG & DG)
* Massive Ziegelbauweise, Betondecken
* Kachelofen im Erdgeschoss, Schwedenofen im Dachgeschoss
* Fußbodenheizung (neue Heizungsanlage 2019)
* PV-Anlage (12,32 kWp, Baujahr 2010, ca. 300EUR/Monat
Einspeisung)
* Solaranlage zur Heizungsunterstützung (Baujahr 2012,
ca. 15,48 qm Kollektorfläche, 6 Module)
* Sauna mit Bad im Keller
* Wintergarten und große Terrasse mit elektrischer Markise und
Sichtschutz
* Ca. 113 qm zusätzliche Nutzfläche bestehend aus Waschraum,
Werkstattraum, Abstellmöglichkeiten und großer Garage
mit Vordach (Platz für zwei Fahrzeuge)
* Liebevoll angelegter Garten (Neugestaltung 2023/2024)
* Teich, Gartenhütte, Brunnen im vorderen und hinteren Bereich
* Bewässerungssystem für Gemüsegarten
Lage
* Idyllische Gemeinde im Landkreis Deggendorf, Niederbayern
* Eingebettet in die sanften Hügel des Bayerischen Waldes
* Lage im malerischen Perlbachtal mit waldreicher Umgebung
* Attraktive Wohnlage mit hohem Erholungswert
* Vielfältige Freizeitmöglichkeiten: Wandern, Radfahren, Natur
erleben
* Sehenswürdigkeiten wie Schloss Egg, Wildpark Buchet und
Museumsstadl
* Gute Verkehrsanbindung an die B11 und nahe gelegene Städte wie
Deggendorf
* Familienfreundliche Infrastruktur mit Kindergarten und Grundschule
* Aktives Vereinsleben und lebendige Dorfgemeinschaft
* Ruhiges Wohnen mit gleichzeitig guter Erreichbarkeit urbaner
Zentren
Sonstige Angaben
Energiebedarfsausweis Energiekennwert: 107,60 kWh/(qm*a) Energieeffizienz: Klasse D (kl.130) Heizung: Zentralheizung mit Öl Baujahr laut Energieausweis: 1991
Ausschluss von Beratungsleistungen:
Hiermit wird festgehalten, dass die Rolle des Immobilienmaklers der GARANT im Rahmen des Verkaufsprozesses dieser Immobilie ausschließlich auf die Vermittlung zwischen dem Eigentümer/Verkäufer und potenziellen Käufern beschränkt ist. Zu keinem Zeitpunkt wurden durch den Immobilienmakler steuerliche oder rechtliche Beratungen bezüglich des Verkaufs der Immobilie oder damit verbundener Vorgänge angeboten, durchgeführt oder impliziert. Potenzielle Käufer werden aufgefordert, alle relevanten Aspekte der Immobilie durch eigene Prüfungen oder durch Beauftragung geeigneter Fachberater zu verifizieren, um sicherzustellen, dass alle Informationen ihren Anforderungen und Erwartungen entsprechen.
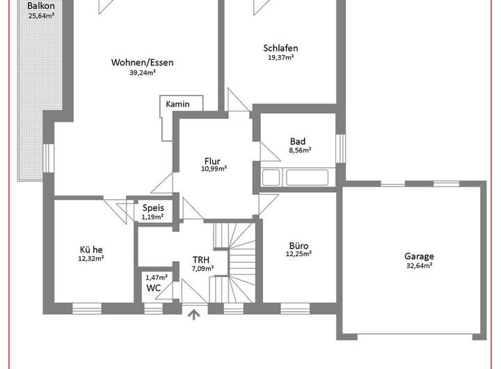
Grundriss
Kellergeschoss
>
>
Erdgeschoss
>
>
Obergeschoss
>
>
Adresse
94505 Bernried
Interessante Orte
Preis- und Lageinformationen
Preistrend für Bestandsimmobilien in Bernried