In einer sonnigen Lage von St. Johann in Tirol befindet sich dieses 800 m2 große Grundstück mit Baugenehmigung für ein Einfamilienhaus, das eine Einliegerwohnung umfasst und eine beeindruckende Aussicht auf die umliegenden Berge bietet.
Planung:
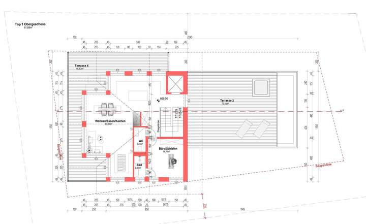
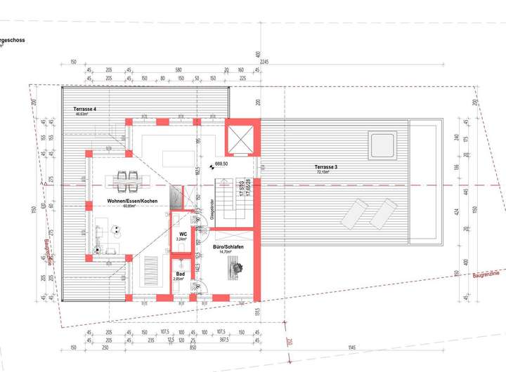
Der großzügige Wohnbereich mit Küche und Esszimmer ist im Dachgeschoss vorgesehen. Die weitläufigen Terrassen bieten Platz, um die Sonne und den atemberaubenden Blick auf den Wilden Kaiser und das Kitzbüheler Horn zu genießen. Zudem ist auf dieser Ebene ein Büro oder Schlafzimmer mit eigenem Bad geplant.
Im Erdgeschoss befindet sich der Eingangsbereich mit geräumiger Garderobe. Auf dieser Etage liegen der Masterbereich mit Bad en Suite, zwei weitere Schlafzimmer, ein zusätzliches Badezimmer sowie ein Gästebad.
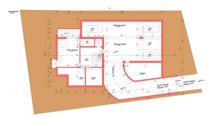
Das Untergeschoss beinhaltet neben Technik- und Lagerräumen auch einen Fitnessraum mit Bad und einen Lichthof.
Die Einliegerwohnung von etwa 58 m2 ist im Erdgeschoss geplant und bietet eine Wohnküche, ein Schlafzimmer mit Bad en Suite sowie ein Gäste-WC.
Die Tiefgarage bietet Platz für bis zu vier Fahrzeuge, und ein separater Abstellraum ermöglicht die Unterbringung von Sportgeräten wie Skiern und Fahrrädern.
Wohnfläche ca. 296 m2
Nutzfläche ca. 63 m2
Tiefgarage ca. 133 m2
Terrassen ca. 166 m2
Grundstück mit fertiger Projektierung
6380 Sankt Johann in Tirol
Die vollständige Adresse der Immobilie erhalten Sie vom Anbieter.
Auf Karte anzeigen
Die vollständige Adresse der Immobilie erhalten Sie vom Anbieter.
Finanzierungszertifikat
In nur zwei Minuten zu Ihrem persönlichen Finanzierungszertifkat.
Infos
| Vermarktungsart | Kaufen |
|---|---|
| Grundstücksfläche | 800 m2 |
Kosten
| Miete pro Jahr |
2.150.000 € |
|---|
Finanzierungsrechner:
Kaufpreis:
600.000 €
Eigenkapital:
600.000 €
Monatliche Rate
0 €
Effektiver Jahreszins
0 %
Sollzinsbindung
10 Jahre
Beschreibung des Objekts
Lage
In sonniger Lage, nahe dem Zentrum von St. Johann in Tirol, liegt dieses Grundstück mit atemberaubendem Bergblick.
Dank des breiten Talkessels gilt St. Johann in Tirol als echtes Sonnental. Die Region bietet 50 Pistenkilometer am Kitzbüheler Horn, 17 Liftanlagen, über 250 Kilometer Langlaufloipen, eine Eislaufbahn, mehr als 200 km Wanderwege zwischen Kitzbüheler Horn und Wilder Kaiser sowie über 200 km Rad- und Mountainbikewege. Zudem locken die Panorama Badewelt, Tennisplätze, ein Hochseilgarten, eine Boulderhalle und vieles mehr.
Viele Menschen bezeichnen St. Johann in Tirol als Ort mit der besten Infrastruktur für den täglichen Bedarf in der Region, einschließlich Geschäften, Ärzten, Schulen, einem Krankenhaus und vielem mehr.
Grundriss
Dachgeschoss
>
>
Erdgeschoss
>
>
Untergeschoss
>
>