ttraktives Baugrundstück mit genehmigtem Mehrfamilienhaus-Projekt in Jaderberg (26349) – Investitionsmöglichkeit mit Zukunftspotenzial!
In zentraler Lage von Jaderberg, einer infrastrukturell aufstrebenden Gemeinde in der Wesermarsch, bieten wir ein 3849 m² großes Baugrundstück zum Verkauf an. Das Grundstück liegt in unmittelbarer Nähe zur neuen Bahnhaltestation der Nordwestbahn, was für Pendler und zukünftige Bewohner eine enorme Attraktivitätssteigerung bedeutet. Ergänzt wird die exzellente Anbindung durch die Nähe zur A29 sowie durch gute Einkaufs- und Versorgungsmöglichkeiten vor Ort.
Highlights für Investoren und Bauträger:
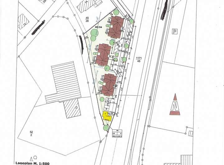
Genehmigtes Bauprojekt: Es liegt eine Baugenehmigung für drei moderne Mehrfamilienhäuser mit jeweils 6 Wohneinheiten vor – insgesamt 18 Wohneinheiten.
Geplante Infrastruktur: Inklusive sind 18 PKW-Stellplätze sowie eine gut durchdachte Zufahrt.
Umfassende Unterlagen: Eine vollständige Bauplanung für das Projekt liegt vor und kann als Grundlage für die Umsetzung übernommen werden. Auszüge aus der Baugenehmigung sind dem Exposé beigefügt.
Attraktive Lage: Die Kombination aus Bahnanschluss, Autobahnnähe und gewachsener Infrastruktur macht das Projekt besonders interessant für Familien, Pendler und Senioren.
Steigende Nachfrage: Die Region verzeichnet ein wachsendes Interesse an Wohnraum – ideal für Kapitalanleger und Projektentwickler, die in langfristige Wohnprojekte investieren wollen.
Wichtiger Hinweis: Die Baugenehmigung enthält einige bauliche Auflagen, die vor Planung und Umsetzung beachtet werden müssen. Genauere Informationen erhalten Sie auf Anfrage oder durch Einsicht in die Genehmigungsunterlagen.
Fazit: Dieses Baugrundstück bietet eine einmalige Gelegenheit, in einem aufstrebenden Gebiet ein schlüsselfertiges Wohnprojekt zu realisieren. Nutzen Sie diese Chance, in einen prosperierenden Standort zu investieren!
3849m² Grundstück in Jaderberg mit Baugenehmigung für 3 Mehrfamilienhäuser mit je 6 WE
26349 Jade
Die vollständige Adresse der Immobilie erhalten Sie vom Anbieter.
Auf Karte anzeigen
Die vollständige Adresse der Immobilie erhalten Sie vom Anbieter.
Finanzierungszertifikat
In nur zwei Minuten zu Ihrem persönlichen Finanzierungszertifkat.
Infos
| Vermarktungsart | Kaufen |
|---|---|
| Grundstücksfläche | 3.849 m2 |
| Erschließung | Unerschlossen |
Kosten
| Miete pro Jahr |
180.000 € |
|---|---|
| Provision |
3,57% Käuferprovision inkl. gesetzl. MwSt. |
Finanzierungsrechner:
Kaufpreis:
600.000 €
Eigenkapital:
600.000 €
Monatliche Rate
0 €
Effektiver Jahreszins
0 %
Sollzinsbindung
10 Jahre