Ein Unikat - 1951 in massiver Rotklinker Bauweise errichtet, 1986/1987 vom Architekten aufwendig umgebaut und erweitert. 2005 und 2024 modernisiert. Das Haus verfügt über ein besondere Atmosphäre und sehr hochwertige Ausstattung - isolierverglaste Holzsprossenfenster - größtenteils bodentief außen anthrazit und innen weiß, Fußbodenheizung, voll unterkellert mit einer Doppelgarage und Außenstellplatz.
Außergewöhnliches Einfamilienhaus auf großzügigem Grundstück
Ilenwisch 24,
22393 Hamburg
Auf Karte anzeigen
Finanzierungszertifikat
In nur zwei Minuten zu Ihrem persönlichen Finanzierungszertifkat.
Infos
| Haustyp | Einfamilienhaus |
|---|---|
| Etagenzahl | 2 |
| Wohnfläche ca. | 195 m2 |
| Grundstücksfläche | 1.487 m2 |
| Bezugsfrei ab | nach Absprache |
| Zimmer | 6 |
| Schlafzimmer | 4 |
| Badezimmer | 3 |
| Garage/Stellplatz | Garage |
| Anzahl Garage/Stellplatz | 2 |
Kosten
| Kaufpreis |
1.595.000 € |
|---|---|
| Provision | Nein |
Finanzierungsrechner:
Kaufpreis:
600.000 €
Eigenkapital:
600.000 €
Monatliche Rate
0 €
Effektiver Jahreszins
0 %
Sollzinsbindung
10 Jahre
Bausubstanz & Energieausweis
| Baujahr | 1951 |
|---|---|
| Bauphase | Haus fertig gestellt |
| Objektzustand | Gepflegt |
| Wesentliche Energieträger | Gas |
| Energieausweis | liegt zur Besichtigung vor |
Beschreibung des Objekts
Ausstattung
Balkon, Wintergarten, Garten, Keller, Vollbad, Duschbad, Einbauküche, Gäste-WC, Kamin
Bemerkungen:
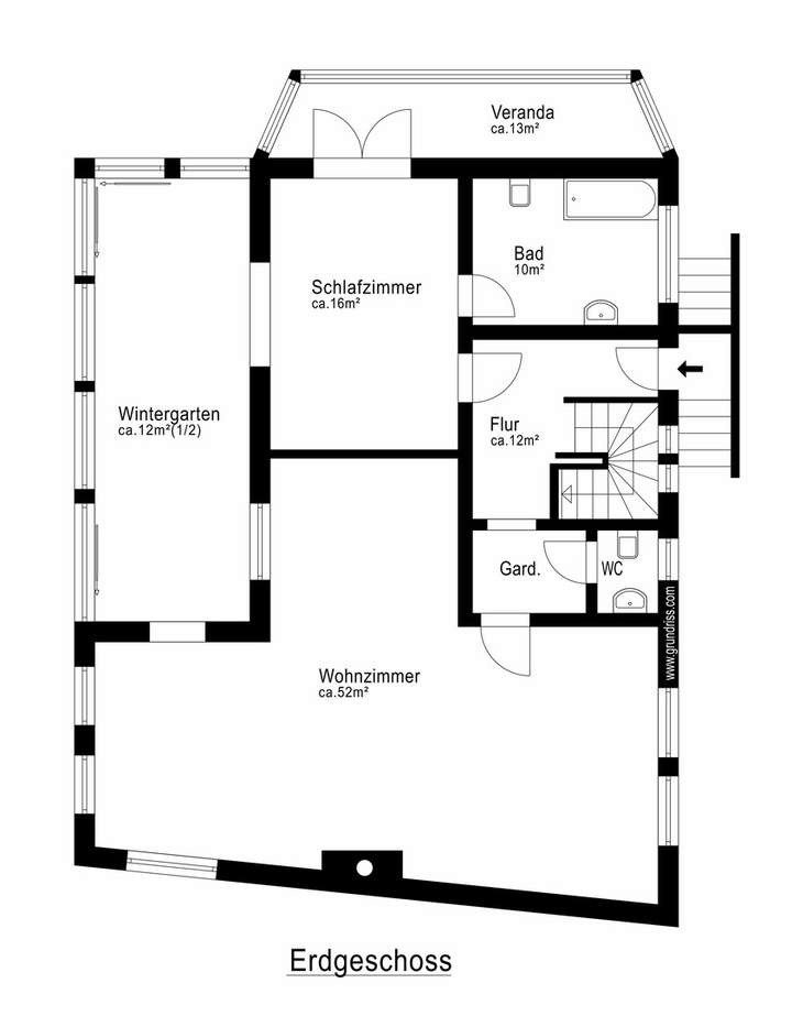
Das Entrée im Hochparterre mit Garderobe und Gäste WC führt in den lichtdurchfluteten Wohn- Esszimmer- und Kochbereich - hier eine maßgefertigte Einbauküche mit Natursteinplatte, technische Geräte namhafter Hersteller, ein offener Kamin aus Travertin und Zugang in den großzügigen Wintergarten. Auf dieser Ebene befindet sich ein Schlafzimmer mit Vollbad en Suite und eine nach Westen ausgerichtete Veranda. Im Obergeschoss - zwei helle Zimmer, eines mit eigenem Duschbad und Zugang zum Westbalkon. Über eine separate Ankleide erschließt sich der Masterbereich - hier befindet sich ein weiterer Kamin, ein Vollbad en Suite sowie ein Zugang auf den Südbalkon. Im Untergeschoss stehen neben der Waschküche, ein Hobbyraum, mehrere Abstellräume ein Technik und Heizungsräume zur Verfügung. Durch diese Räume führt der Zugang zur Garage. Ein Energiepass ist beantragt und wird zur Besichtigung vorgelegt. Grundstück: Schön und weitläufig nach Südwesten ausgerichtet. gärtnerisch liebevoll angelegt.
Lage
Das Objekt befindet sich in absolut ruhiger Lage von Sasel unweit der Grenze zu Volksdorf in einer Sackgasse, bebaut mit Einfamilienhäusern auf großzügigen Grundstücken und angenehmer Nachbarschaft. Sehr gute Einkaufsmöglichkeiten und Wochenmärkte in Sasel und Volksdorf, zahlreiche Schulen, U-Bahn, Bus und Naturschutzgebiete in der Nähe.
Infrastruktur (im Umkreis von 5 km):
Apotheke, Lebensmittel-Discount, Allgemeinmediziner, Kindergarten, Grundschule, Hauptschule, Realschule, Gymnasium, Gesamtschule, Öffentliche Verkehrsmittel
Sonstige Angaben
Heizungsart: Fußbodenheizung
Energieträger: Gas
Energieausweis nicht vorhanden
Makleranfragen nicht erwünscht. Nach § 7 UWG sind unaufgeforderte Kontaktaufnahmen durch Makler ohne ausdrückliche Einwilligung des Empfängers verboten!
ohne-makler (OM) ist weder Anbieter noch Vermittler der Immobilie. OM betreibt eine Plattform für Immobilieneigentümer, die unter anderem die gleichzeitige Veröffentlichung einzelner Inserate auf mehreren Immobilienportalen ermöglicht. Die Inhalte dieser Inserate werden ausschließlich von Dritten verantwortet. Für die Richtigkeit, Vollständigkeit oder Rechtmäßigkeit der Angaben übernimmt OM keine Haftung. Hinweise auf mögliche Rechtsverstöße können jederzeit gemeldet werden und werden nach Prüfung umgehend bearbeitet.
Grundriss
Erdgeschoss
>
>
Obergeschoss
>
>
Untergeschoss
>
>
Adresse
Ilenwisch 24, 22393 Hamburg
Interessante Orte
Preis- und Lageinformationen
Preistrend für Bestandsimmobilien in Sasel