Das ansprechende Haus bietet 181 m² Wohnfläche und somit viel Raum für entspanntes Wohnen und individuelle Gestaltung.
Hohe Decken, Original-Türen, das charmante Treppenhaus sowie die Küche im Souterrain verleihen dem lichtdurchfluten Haus den unverwechselbaren Altbaucharakter. Zwei Balkone gehören ebenso zum Haus wie ein kleiner Hofgarten in Südwest-Ausrichtung.
Das Haus ist teilweise renovierungsbedürftig – insbesondere die Fußböden, die Elektrik und die Bäder sind nicht mehr auf neuestem Stand und sollten überabeitet werden.
Gerne stehen wir Ihnen mit unserer Erfahrung und unserem Netzwerk bei der Planung und Umsetzung von Renovierungs- und Modernisierungsmaßnahmen zur Seite. Sprechen Sie uns an.
Haus aus der Jahrhundertwende im beliebten Bremer Viertel
Ritterstraße 3,
28203 Bremen
Auf Karte anzeigen
Finanzierungszertifikat
In nur zwei Minuten zu Ihrem persönlichen Finanzierungszertifkat.
Infos
| Haustyp | Reihenmittelhaus |
|---|---|
| Etagenzahl | 3 |
| Wohnfläche ca. | 181 m2 |
| Nutzfläche | 15 m2 |
| Grundstücksfläche | 104 m2 |
| Zimmer | 7 |
Kosten
| Kaufpreis |
419.000 € |
|---|---|
| Provision | Nein |
Finanzierungsrechner:
Kaufpreis:
600.000 €
Eigenkapital:
600.000 €
Monatliche Rate
0 €
Effektiver Jahreszins
0 %
Sollzinsbindung
10 Jahre
Bausubstanz & Energieausweis
| Qualität der Austattung | Normal |
|---|---|
| Heizungsart | Zentralheizung |
| Wesentliche Energieträger | Gas |
| Energieausweis | liegt vor |
| Energieausweistyp | Bedarfsausweis |
| Energieverbrauchskennwert | 277,6 kWh/(m²*a) |
| Energieeffizienzklasse | H |
277,6
kWh/(m²*a)
Energieeffizienzklasse H
- A+
- A
- B
- C
- D
- E
- F
- G
- H
- 0
- 25
- 50
- 75
- 100
- 125
- 150
- 175
- 200
- 225
- >250
Beschreibung des Objekts
Ausstattung
- Hohe Decken
- Zwei Balkone
- Zwei Bäder
- Hofgarten
Lage
Dieses Haus befindet sich in einem der beliebtesten Stadtteile Bremens – dem lebendigen Viertel. Die Lage besticht durch ihre unmittelbare Nähe zur Weser und ihre zentrale, hervorragend angebundene Position mitten in der Stadt.
In direkter Umgebung erwarten Sie vielfältige Einkaufsmöglichkeiten, charmante Cafés, Restaurants, Boutiquen sowie Schulen und Kindergärten. Alles, was man für den täglichen Bedarf und ein urbanes Lebensgefühl benötigt, liegt nur wenige Schritte entfernt.
Dank der optimalen Anbindung erreichen Sie die Bremer Innenstadt, den Hauptbahnhof, die Universität sowie den Flughafen in kürzester Zeit – und genießen gleichzeitig die einzigartige Atmosphäre dieses urbanen und zugleich charmanten Wohnviertels.
Sonstige Angaben
Wir begleiten Sie gerne kompetent und persönlich – auch bei Ihrer Immobilienfinanzierung. Dank unseres bankenunabhängigen Finanzdienstleisters können wir Ihnen attraktive Sonderkonditionen anbieten. Sprechen Sie uns an.
Weitere Dokumente
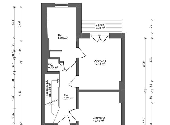
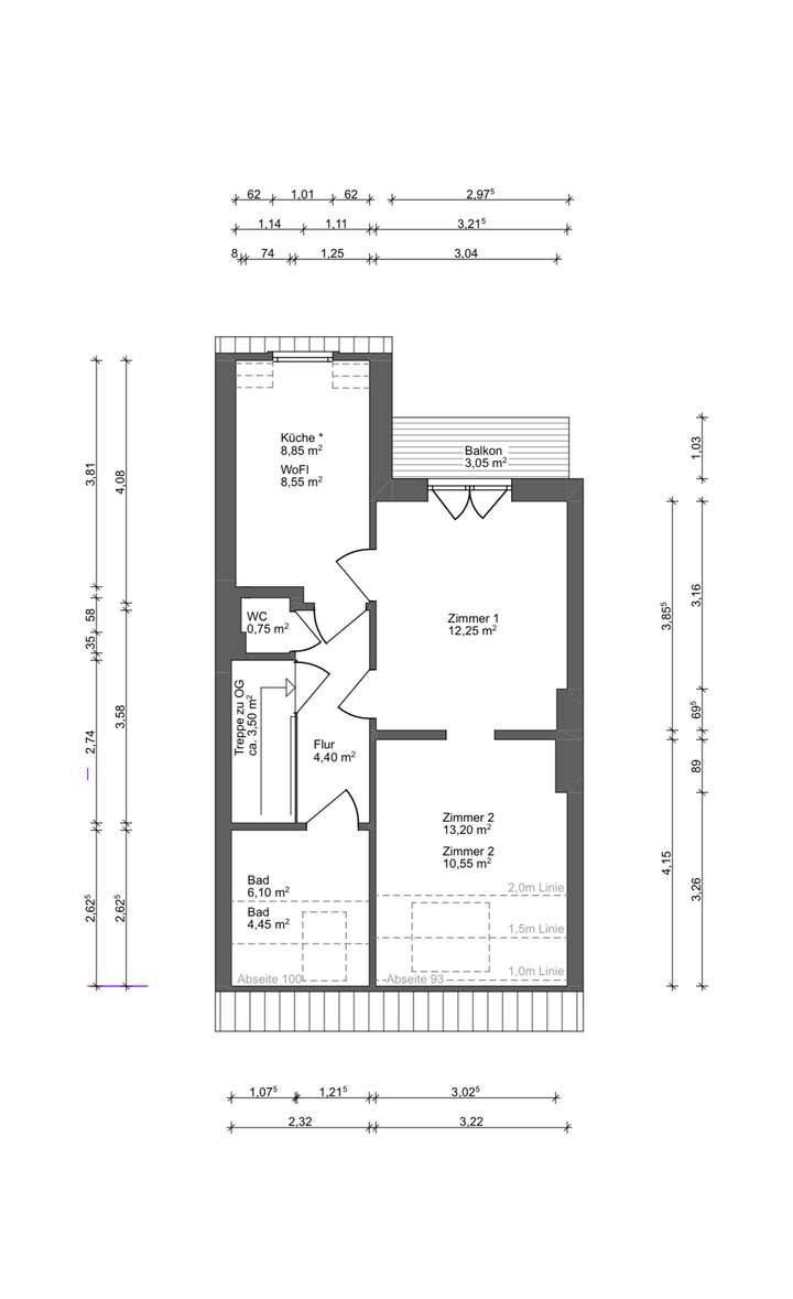
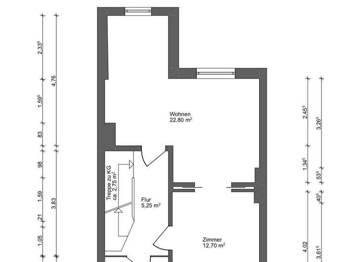
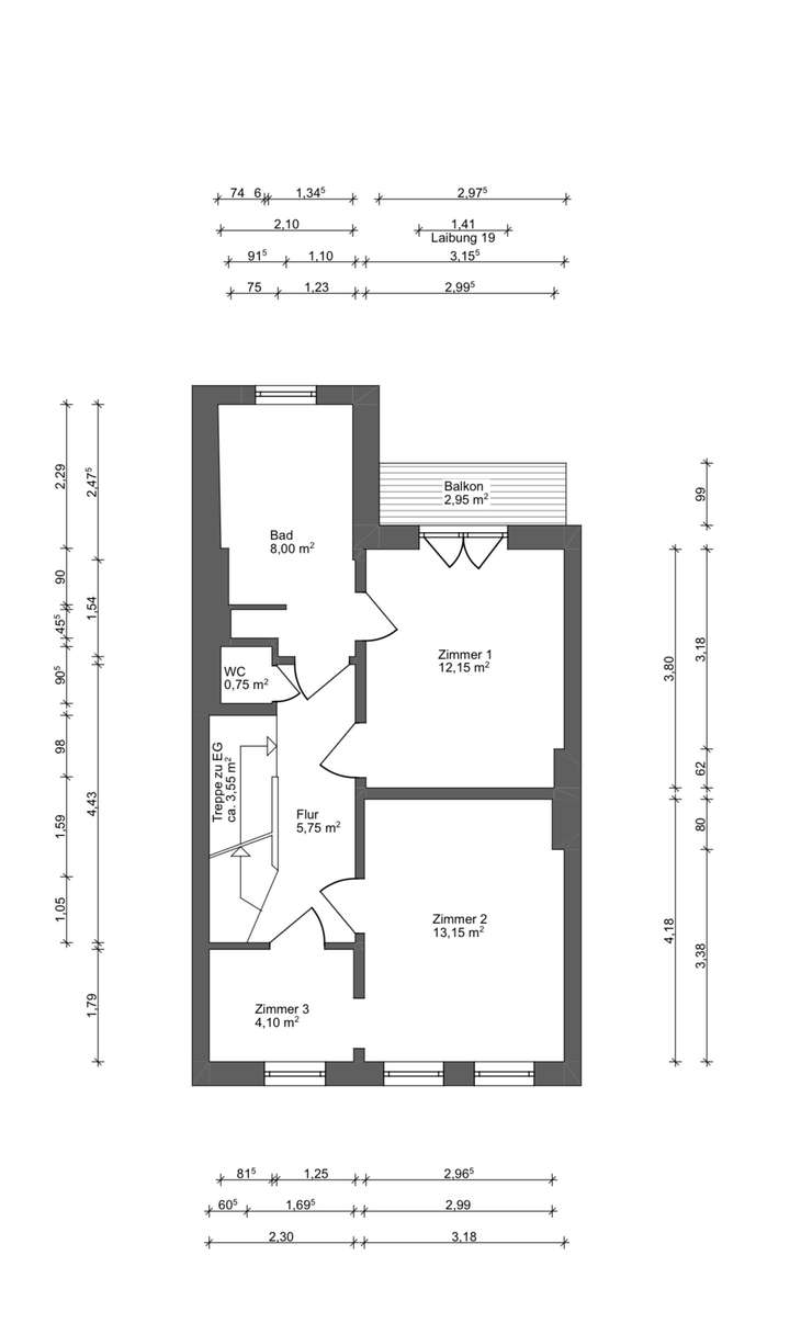
Energieausweis Ritterstraße 3Grundriss
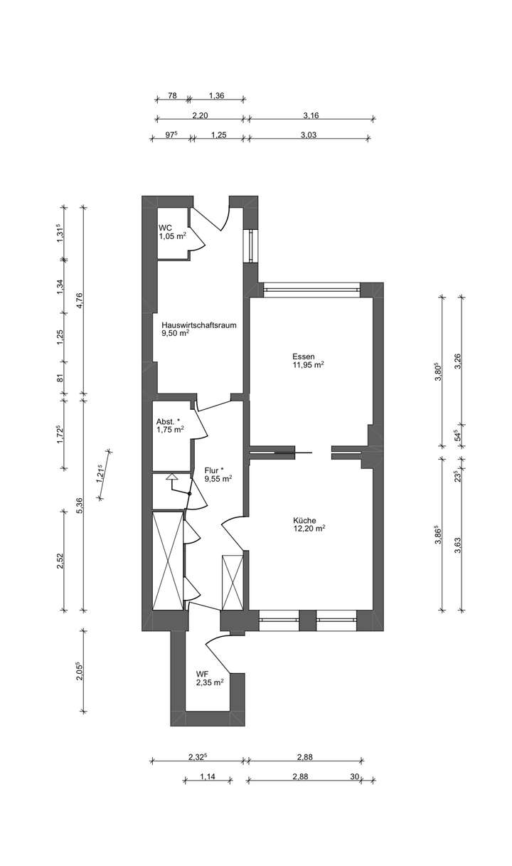
Souterrain
>
>
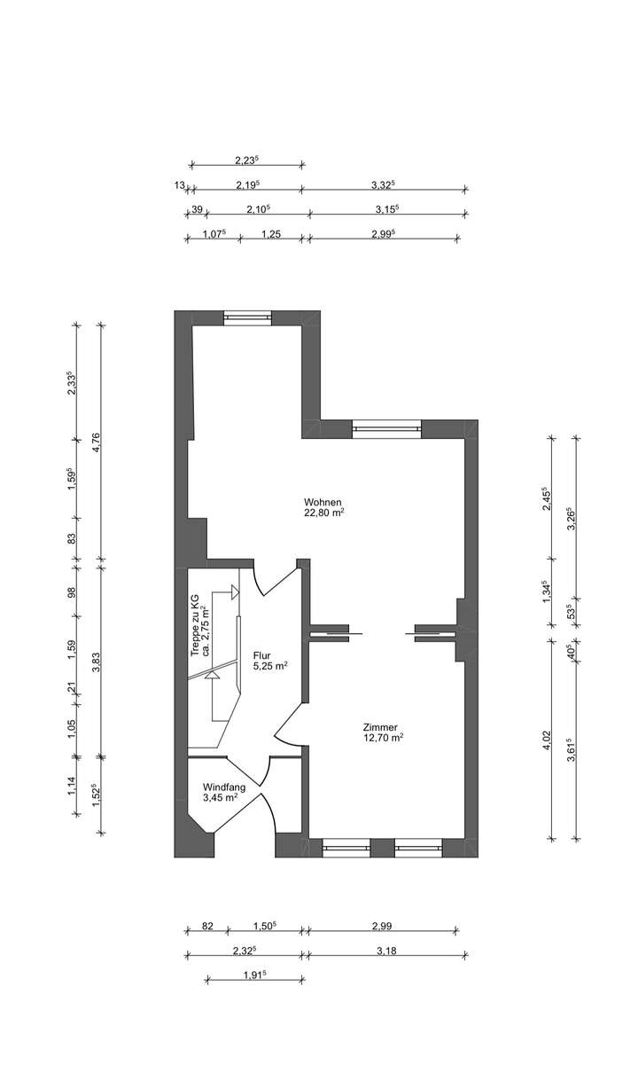
Hochparterre
>
>
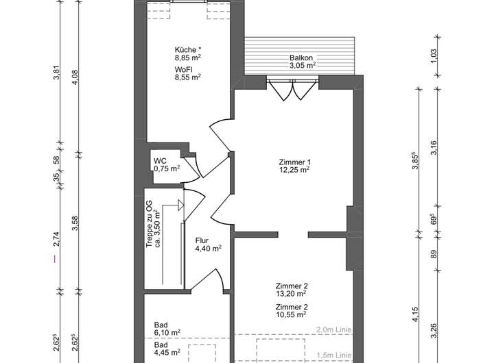
1.Obergeschoss
>
>
Dachgeschoss
>
>
Adresse
Ritterstraße 3, 28203 Bremen
Interessante Orte
Preis- und Lageinformationen
Preistrend für Bestandsimmobilien in Steintor