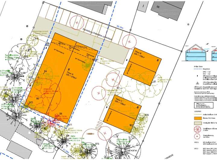
Das großzügige Grundstück ist gemäß Rücksprache beim Stadtplanungsamt entsprechend des Bebauungsplans und der genehmigten Nachbarschaftsbebauung großzügig in 1. und 2. Reihe bebaubar. Derzeit befindet sich noch eine Villa auf dem Grundstück. Eine verbindliche Aussage über die Bebaubarkeit kann erst über eine Bauvoranfrage erreicht werden.
Wohnen mit Blick in die Natur
90427 Nürnberg
Die vollständige Adresse der Immobilie erhalten Sie vom Anbieter.
Auf Karte anzeigen
Die vollständige Adresse der Immobilie erhalten Sie vom Anbieter.
Finanzierungszertifikat
In nur zwei Minuten zu Ihrem persönlichen Finanzierungszertifkat.
Infos
| Vermarktungsart | Kaufen |
|---|---|
| Grundstücksfläche | 2.284 m2 |
| Erschließung | Erschlossen |
| Empfohlene Nutzung | Mehrfamilienhaus |
| Grundflächenzahl (GRZ) | 0.4 |
| Geschossflächenzahl (GFZ) | 0.8 |
| Bebaubar nach | wie Nachbarbebauung |
| Verfügbar ab | sofort |
Kosten
| Miete pro Jahr |
1.500.000 € |
|---|---|
| Provision |
3,57% inkl. MwSt. Bei Abschluss eines notariellen Kaufvertrages hat der Käufer uns ein Honorar in Höhe von 3,57 % des Kaufpreises inkl. Mehrwertsteuer zu zahlen. |
Finanzierungsrechner:
Kaufpreis:
600.000 €
Eigenkapital:
600.000 €
Monatliche Rate
0 €
Effektiver Jahreszins
0 %
Sollzinsbindung
10 Jahre
Beschreibung des Objekts
Lage
Das Grundstück befindet sich im östlichen Fürther Stadtteil Poppenreuth an der Stadtgrenze zu Nürnberg.
Sämtliche Einkaufsmöglichkeiten sind fußläufig bequem in der Hans-Böckler-Straße bzw. Brettergartenstraße erreichbar. Die Anbindung an die Autobahn A 73 über den Frankenschnellweg ist optimal.
Sonstige Angaben
Alle in diesem Angebot enthaltenen Angaben stammen ausschließlich vom Eigentümer (oder eines Dritten). Eine Haftung unseres Unternehmens hierfür ist ausgeschlossen. Irrtum und Zwischenverkauf vorbehalten. Dieses Exposé ist eine Vorabinformation, als Rechtsgrundlage gilt allein der notariell abgeschlossene Kaufvertrag.
Laut dem Geldwäschegesetz (GwG) müssen wir Ihre Identität feststellen und prüfen. Bitte geben Sie bei Ihrer Anfrage den vollständigen Namen und Ihre Anschrift an, damit wir Ihnen das Exposé schnellstmöglich zukommen lassen können. Bei juristischen Personen benötigen wir zusätzlich den Namen des wirtschaftlichen Berechtigten.