Verkaufe grundstük
Geplant,projektiert getrilt alle 10 WE. genehmigt
Verkaufe
Weil möchte neue investition tätigen
Haben in dettingen bereits 10 WE.
Insgesamt 12 WE.
Bitte um kontakt aufnahme
Bei intresse
Wir sind seit
1987 in Dettingen
Dad ist unser referenz
Wer bei und zu miete wohnt komt
Ohne eigentum gekauft nicht raus.
Emtweder
Kauft eine wohnung ider haus und zieht dan aus die mieter
Haus
Geht in eigentum
Deswegen es ist zu ihre. Gunsten wen sie
Mich wählen
Den wir sind
Zuverlässig
Vertrauenswürdig
Korrekt
Vermieten gut
Auch für renovierungen
haben wir exagte
Gute
Freunde die
Unsere immo
Renoviren
auf laufenden halten
Und uns gegenseitig
helfen
Ich kan raten
Kaufen sie von uns
Mieten sie unsere räume
Kurz gesagt
Bri uns kommnen
Als ieter
Nach paar jahre
Sind sie eigentümer/rin
Auch bei kauf helfe ich ihnen
Ich bin
dettingenli Cemil
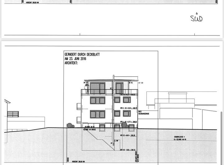
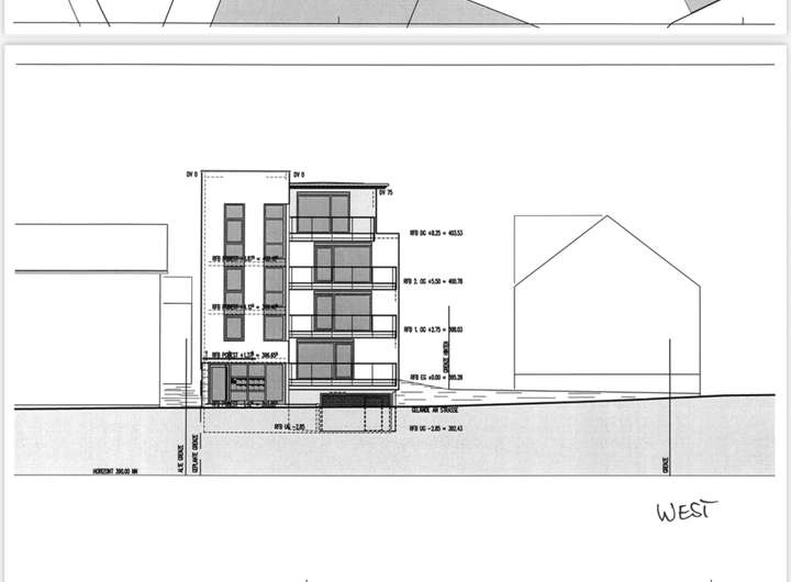
Grundstük in dettingen mit mfh. Geplant projektiert getrilt. Baubegin kann innerhalb 4 monate kan vo
Sägmühlengasse 4,
72581 Dettingen an der Erms
Auf Karte anzeigen
Finanzierungszertifikat
In nur zwei Minuten zu Ihrem persönlichen Finanzierungszertifkat.
Infos
| Vermarktungsart | Kaufen |
|---|---|
| Grundstücksfläche | 590 m2 |
| Verfügbar ab | 25.10.2025 |
Kosten
| Miete pro Jahr |
695.000 € |
|---|---|
| Provision | Nein |
Finanzierungsrechner:
Kaufpreis:
600.000 €
Eigenkapital:
600.000 €
Monatliche Rate
0 €
Effektiver Jahreszins
0 %
Sollzinsbindung
10 Jahre