Sie sind auf der Suche nach einem modernen und energieeffizienten Neubau-Einfamilienhaus?
Dann könnte diese in ruhiger hinter Bebauung geplante Immobilie Ihr neues Familiendomizil werden.
In attraktiver und ruhiger Umgebung von Lage-Waddenhausen, wird auf dem ca. 540 m² großen Grundstück ein Einfamilienhaus mit ca. 135 m² Wohnfläche errichtet.
Bei der Planung des Einfamilienhauses in konventionell massiver Bauweise, wurde besonders viel Wert auf die energetische Optimierung (KfW-40-Standard) sowie auf eine moderne Aufteilung der Räumlichkeiten gelegt.
Geplant sind Kunststofffenster mit 3-fach Isolierverglasung, elektrische Rollläden an allen Fenstern, sowie eine Luftwärmepumpe in Kombination mit einer Photovoltaikanlage. Eine Fußbodenheizung sorgt für eine angenehme Wärme in allen Räumen.
Im EG befindet sich der Hauswirtschaftsraum, das Büro und ein Gäste - WC. Zudem bietet der helle und großzügige Wohn- Essbereich mit der offenen Küche ein Highlight, wo die ganze Familie zusammenkommen kann. Von hier aus erreichen Sie auch die nach Süd-West ausgerichtete Terrasse und den Garten.
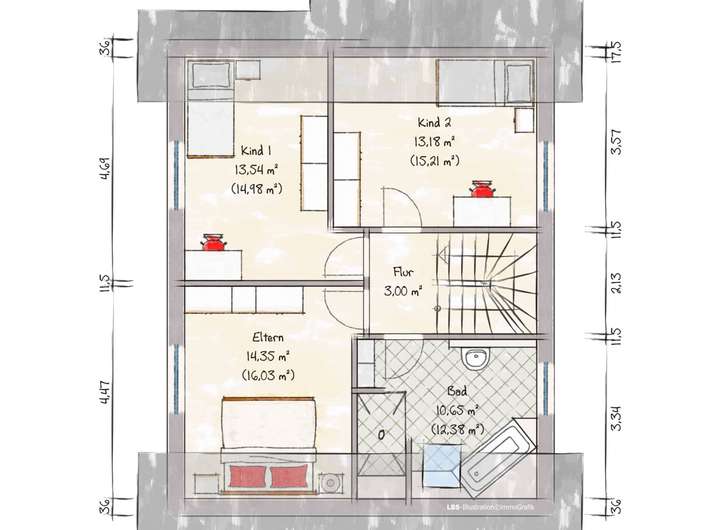
Im OG befinden sich zwei nahezu gleichgroße Kinderzimmer, ein Elternschlafzimmer, das große moderne Badezimmer und ein Abstellraum.
Zu dem Haus werden zwei PKW-Stellplätze angelegt.
Bei dem hier angebotenen Objekt, handelt es sich um ein schlüsselfertiges Einfamilienhaus inkl. Grundstück und Erschließungskosten. Die Kosten für Maler- und Bodenverlegung variieren nach Ihrer Planung. Ihre individuellen Planungs- und Ausstattungswünsche berücksichtigen wir gerne in Abstimmung mit unserem Vertriebspartner.
Das Objekt ist bereits baurechtlich genehmigt.
Für weitere Informationen sprechen Sie uns gerne persönlich an.
KfW 40 Neubau: Einfamilienhaus mit ca. 135 m² in moderner Bauweise
32791 Lage
Die vollständige Adresse der Immobilie erhalten Sie vom Anbieter.
Auf Karte anzeigen
Die vollständige Adresse der Immobilie erhalten Sie vom Anbieter.
Finanzierungszertifikat
In nur zwei Minuten zu Ihrem persönlichen Finanzierungszertifkat.
Infos
| Haustyp | Einfamilienhaus |
|---|---|
| Wohnfläche ca. | 135 m2 |
| Grundstücksfläche | 540 m2 |
| Zimmer | 4 |
| Garage/Stellplatz | Außenstellplatz |
| Anzahl Garage/Stellplatz | 2 |
Kosten
| Kaufpreis |
497.900 € |
|---|---|
| Provision | Nein |
Finanzierungsrechner:
Kaufpreis:
600.000 €
Eigenkapital:
600.000 €
Monatliche Rate
0 €
Effektiver Jahreszins
0 %
Sollzinsbindung
10 Jahre
Bausubstanz & Energieausweis
| Baujahr | unbekannt |
|---|---|
| Bauphase | Haus in Planung (projektiert) |
| Heizungsart | Fußbodenheizung |
| Energieausweis | laut Gesetz nicht erforderlich |
Beschreibung des Objekts
Ausstattung
Individuelle Ausstattungsmerkmale:
- Rollläden elektrisch
- Photovoltaik
- Lüftungsanlage
Neubau EFH nach KfW-40-Standard
- ca. 135 m² Wohnfläche
- ca. 540 m² Grundstück
- Massivbauweise ohne Keller
- Fußbodenheizung mit Luftwärmepumpe
- Dezentrale Lüftungsanlage
- Photovoltaik
- Kunststofffenster mit 3-fach Isolierverglasung
- elektrische Rollläden an allen Fenstern
- ebenerdige Dusche mit Duschabtrennung aus Glas
- im Bad / WC halbhohe Wandverfliesung
- eine individuelle ist Planung ist möglich
Lage
Lage, die "Zieglerstadt", "Zuckerstadt" und "Stadt des Sports" in Nordrhein-Westfalen, bietet eine ideale Umgebung für Familien. Unser Einfamilienhaus, gelegen in einer idyllischen, ländlichen Gegend, nur 4,1 km nordwestlich vom Stadtzentrum, bietet die perfekte Kombination aus Ruhe und Anbindung an die Stadt.
Für Ihre Kinder finden Sie in der Nähe eine Grundschule, eine Schule und drei Kindergärten, die alle leicht mit dem Fahrrad erreichbar sind. Die Stadt bietet auch eine gute medizinische Versorgung mit einer Allgemeinmedizin, einer Pädiatrie und einer Apotheke, die fußläufig erreichbar ist.
Wenn Sie nach Freizeitaktivitäten suchen, gibt es in der Nähe ein Museum, das mit dem Fahrrad erreichbar ist. Sportbegeisterte Familien können den Sportplatz Waddenhausen, die Sporthalle Waddenhausen oder das Freibad "Pfütze" mit seinem Babybecken nutzen, alles leicht mit dem Fahrrad erreichbar.
Für den täglichen Bedarf finden Sie in der Nähe mehrere Supermärkte wie Markant, Netto Marken-Discount und Edeka Siekmann, sowie eine Bäckerei, Brinkmann's Backstube, die fußläufig erreichbar ist. Drogeriemärkte wie dm und Rossmann sind ebenfalls in der Nähe.
Die Verkehrsanbindung ist hervorragend, mit der Zugstation Bad Salzuflen-Sylbach nur 400 m entfernt, die fußläufig erreichbar ist, und der Bushaltestelle Nordheider Weg direkt vor der Haustür. Die Autobahnauffahrt Ostwestfalen / Lippe A 2 ist in weniger als 20 Minuten mit dem Auto erreichbar.
Unser Einfamilienhaus in Lage bietet die perfekte Kombination aus Bildung, Freizeit und Anbindung, ideal für Familien, die nach einer ruhigen, aber doch zentralen Wohnlage suchen.
Sonstige Angaben
Finanzierung mit Auszeichnung:
Mit der LBS NordWest haben Sie einen ausgezeichneten Finanzierungspartner an Ihrer Seite – persönlich, regional und mehrfach prämiert:
2025 wurde die LBS NordWest mit dem renommierten Finanz-Award für exzellente Kundenberatung und maßgeschneiderte Finanzierungskonzepte ausgezeichnet.
Über eine professionelle Baufinanzierungsplattform greifen wir auf eine Vielzahl führender Anbieter zu – und erarbeiten gemeinsam mit Ihnen die beste Lösung für Kauf, Bau oder Modernisierung.
Zusätzlich unterstützen wir Sie bei der Beantragung von Fördermitteln – insbesondere bei energetischen Sanierungen – und vermitteln auf Wunsch den Kontakt zu unserem Energieberaternetzwerk.
VERBRAUCHERINFO
1. Maklerleistung ist der Nachweis der Gelegenheit zum Abschluss eines Vertrages bzw. Vermittlung eines Vertrages über eine Immobilie gegen die Courtagezahlungspflicht des Kunden
2. Unternehmer,Anschrift,Beschwerdeadressat
LBSi NordWest, Himmelreichallee 40, 48149 Münster, Tel:0251/973233-997, eMail:info@lbsi-nw.de
GF:Martin Englert, Volker Goldbeck
3. Es besteht ein Widerrufsrecht
4. Weitere Infos: verbraucherinfo.lbsi-nordwest.de
Grundriss
Erdgeschoss
>
>
Dachgeschoss
>
>
Spitzboden
>
>
Gebäudeschnitt
>
>
Lageplan
>
>
Flurkarte
>
>
Adresse
32791 Lage
Interessante Orte
Preis- und Lageinformationen
Preistrend für Bestandsimmobilien in Lage