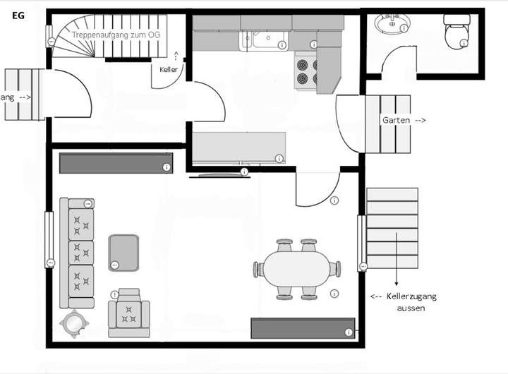
Das schöne, zweistöckige Reihenendhaus, befindet sich in beliebter und ruhiger Lage von Wiesbaden-Biebrich. Erbaut wurde dieses im Jahre 1936 und selbstverständlich immer wieder modernisiert. Zuletzt (2019) wurde eine hochwertige Buderus Heizung verbaut. Das ca. 480 qm große und gut geschnittene Sonnengrundstück, bietet ausreichend Möglichkeiten für familiäre und freizeitliche Gestaltungen. Die Außenstellplätze, sowie die vorhandene Einbauküche, ergänzen dieses Angebot.
Reihenendhaus in beliebter Lage von Wiesbaden Biebrich
65203 Wiesbaden
Die vollständige Adresse der Immobilie erhalten Sie vom Anbieter.
Auf Karte anzeigen
Die vollständige Adresse der Immobilie erhalten Sie vom Anbieter.

Finanzierungszertifikat
In nur zwei Minuten zu Ihrem persönlichen Finanzierungszertifkat.
Infos
Haustyp | Reiheneckhaus |
---|---|
Etagenzahl | 2 |
Wohnfläche ca. | 93 m2 |
Nutzfläche | 70 m2 |
Grundstücksfläche | 480 m2 |
Bezugsfrei ab | 30.8.2025 |
Zimmer | 4 |
Schlafzimmer | 3 |
Badezimmer | 1 |
Garage/Stellplatz | Außenstellplatz |
Anzahl Garage/Stellplatz | 2 |
Kosten
Kaufpreis |
529.500 € |
---|---|
Provision |
18.903,15 Euro 3,57% Käuferprovision inklusive 19% Mehrwertsteuer vom notariell beurkundeten Kaufpreis, verdient und fällig mit Beurkundung des notariellen Kaufvertrages. Der Immobilienmakler hat einen provisionspflichtigen Maklervertrag mit dem Verkäufer in gleicher Höhe abgeschlossen. |
Finanzierungsrechner:
Kaufpreis:
600.000 €
Eigenkapital:
600.000 €
Monatliche Rate
0 €
Effektiver Jahreszins
0 %
Sollzinsbindung
10 Jahre
Bausubstanz & Energieausweis
Baujahr | 1936 |
---|---|
Letzte Sanierung | 2019 |
Qualität der Austattung | Normal |
Heizungsart | Gas-Heizung |
Wesentliche Energieträger | Erdgas schwer |
Energieausweis | liegt vor |
Energieausweistyp | Bedarfsausweis |
Energieverbrauchskennwert | 336,5 kWh/(m²*a) |
Energieeffizienzklasse | H |
336,5
kWh/(m²*a)
Energieeffizienzklasse H
- A+
- A
- B
- C
- D
- E
- F
- G
- H
- 0
- 25
- 50
- 75
- 100
- 125
- 150
- 175
- 200
- 225
- >250
Beschreibung des Objekts
Ausstattung
- Einbauküche mit arbeitsfreundlicher Anordnung - Fußbodenheizung im Wohn- Essbereich - Elektrische Rollläden - Gäste-WC - Tageslichtbad - Doppelverglaste Fenster - Buderus Gas-Heizung (2019) - Vollunterkellerung - 2 PKW-Stellplätze
Lage
Das Haus liegt in ruhiger und dennoch zentraler Gegend in Wiesbaden Biebrich. Fußläufig sind auf der nahegelegenen Äppelallee mehrere Buslinien zu erreichen. In direkter Umgebung finden Sie Supermärkte (Lidl, Aldi, Norma), Bäckereien und ein Einkaufszentrum. Kindergarten und Schule sind ebenfalls fußläufig erreichbar. Der nahegelegene Autobahnanschluss, bietet eine schnelle Anbindung Richtung Frankfurt, Mainz, Bingen, sowie den Rheingau.
Sonstige Angaben
Besichtigungen sind nach Terminabsprache möglich, auch an Feiertagen und Wochenenden. Bitte geben Sie bei Ihrer Anfrage eine Rufnummer an, unter der wir Sie tagsüber erreichen können. Vielen Dank.
Adresse
65203 Wiesbaden
Interessante Orte
Preis- und Lageinformationen
Preistrend für Bestandsimmobilien in Biebrich