Heller Wohnraum auf zwei Vollgeschossen.
Der Essplatz wird oft zum Mittelpunkt des gemeinsamen Familienlebens. Auch in den Doppelhäusern erhält er deshalb einen besonders schönen, hellen Platz – inmitten des offenen Wohn-, Ess- und Kochbereichs, umgeben von Fensterflächen und mit direktem Zugang zum Garten.
Ebenso lichtdurchflutet ist auch das Obergeschoss des Doppelhauses 138. Durch die Planung mit zwei Vollgeschossen können die beiden Haushälften auf drei Seiten mit großen Fenstern ausgestattet werden, sodass viel Tageslicht in das Elternschlafzimmer, die beiden gleich großen Kinderzimmer und das alltagstaugliche Familienbad gelangt. Die großzügigen Räume ohne Dachschrägen lassen sich flexibel einrichten und bieten viele Freiheiten für Ihre Ideen.
Neubau DH-Hälfte, schlüsselfertig, energie Effizient
83308 Trostberg
Die vollständige Adresse der Immobilie erhalten Sie vom Anbieter.
Auf Karte anzeigen
Die vollständige Adresse der Immobilie erhalten Sie vom Anbieter.
Finanzierungszertifikat
In nur zwei Minuten zu Ihrem persönlichen Finanzierungszertifkat.
Infos
| Haustyp | Doppelhaushaelfte |
|---|---|
| Etagenzahl | 2 |
| Wohnfläche ca. | 130 m2 |
| Nutzfläche | 138 m2 |
| Grundstücksfläche | 303 m2 |
| Zimmer | 4 |
| Schlafzimmer | 3 |
| Badezimmer | 1 |
| Garage/Stellplatz | Außenstellplatz |
| Anzahl Garage/Stellplatz | 2 |
Kosten
| Kaufpreis |
598.500 € |
|---|---|
| Provision | Nein |
Finanzierungsrechner:
Kaufpreis:
600.000 €
Eigenkapital:
600.000 €
Monatliche Rate
0 €
Effektiver Jahreszins
0 %
Sollzinsbindung
10 Jahre
Bausubstanz & Energieausweis
| Baujahr | unbekannt |
|---|---|
| Bauphase | Haus in Planung (projektiert) |
| Objektzustand | Erstbezug |
| Qualität der Austattung | Gehoben |
| Heizungsart | Wärmepumpe |
| Wesentliche Energieträger | Umweltwärme |
| Energieausweis | laut Gesetz nicht erforderlich |
Beschreibung des Objekts
Ausstattung
Inklusive KfW-Effizienzhaus 40 Gebäudehülle
Inklusive Luft Wärmepumpe
Inklusive ThermoEffizienz-Wand
Inklusive 3-Scheiben - Thermoverglasung
Fenster u. Haustür nach Sicherheitsstandard RC2 aus eigener Produktion
Inklusive Frischluft im ganzen Haus mit der Kontrollierten Entlüftung
Inklusive Fußbodenheizung
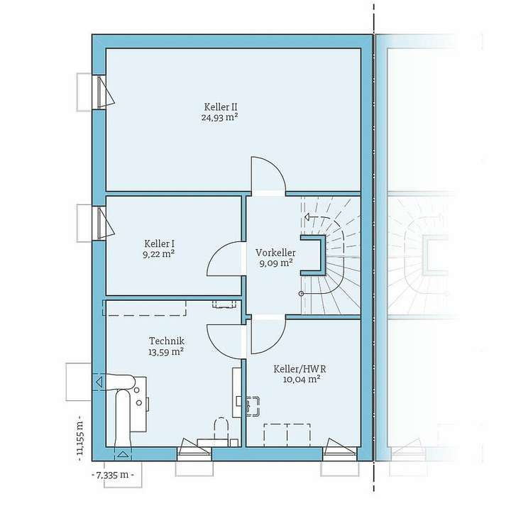
Inklusive Keller
Lage
Die Doppelhaushälfte befindet sich in einer ruhigen und familienfreundlichen Wohngegend von Trostberg, einer charmanten Kleinstadt im oberbayerischen Landkreis Traunstein. Die Nachbarschaft ist geprägt von gepflegten Wohnhäusern und viel Grün, was für eine angenehme und entspannte Atmosphäre sorgt.
Dank der zentralen Lage sind Einkaufsmöglichkeiten, Ärzte, Schulen und Kindergärten in wenigen Minuten erreichbar. Auch das Stadtzentrum mit Cafés, Restaurants und kulturellen Angeboten ist gut zu Fuß oder mit dem Fahrrad erreichbar. Die Anbindung an den öffentlichen Nahverkehr ist hervorragend, sodass auch Pendler bequem in Richtung Traunstein oder Altötting gelangen.
Naturfreunde profitieren von der Nähe zur Alz sowie zahlreichen Spazier- und Radwegen in der Umgebung. Die Region bietet zudem vielfältige Freizeitmöglichkeiten – von Wandern und Radfahren bis hin zu Ausflügen an den Chiemsee oder in die Alpen, die in weniger als einer Stunde mit dem Auto erreichbar sind.
Insgesamt eine sehr attraktive Wohnlage für Familien, Paare oder Ruhesuchende, die eine gute Infrastruktur mit naturnahem Wohnen verbinden möchten.
Sonstige Angaben
Die o.g. Preisangabe bezieht sich auf das Schlüsselfertige HAUS, ohne evtl. dargestellte Anbauten und Sonderausstattungen!
Inkl. Baunebenkosten
Vertrauen Sie auf einen verlässlichen Baupartner:
HANSE HAUS ist einer der führenden Hersteller der Branche.
Weitere Informationen erhalten Sie noch viel besser bei einem unverbindlichen Beratungsgespräch.
Wir bauen auch auf Ihrem vorhandenen Grundstück.
Die Vorteile dieses HANSE-HAUSES haben schon viele Bauherren hier in unserer Region überzeugt.
Rufen Sie einfach an, wir freuen uns auf Sie!
„Bei dem dargestellten Objekt handelt es sich um eine Projektierung, die in Hinblick auf Kubatur, architektonische Gestaltung und
Energieeffizienzklasse an individuelle Anforderungen und Bedürfnisse unserer Bauherren angepasst werden kann. Ein bedarfsbasierter Energieausweis wird nach endgültiger Planung und unter Berücksichtigung regionaler baurechtlicher Bestimmungen erstellt und an die Bauherren nach Fertigstellung übergeben.“
Zwischenverkauf, Änderungen, Irrtümer sind ausdrücklich vorbehalten. Allein maßgebend für alle Bauleistungen sind die aktuellen Baubeschreibungen.
Weitere Dokumente
3283_Focus_Money_2020Grundriss
Grundriss EG
>
>
Grundriss OG
>
>
Keller
>
>
Adresse
83308 Trostberg
Interessante Orte
Preis- und Lageinformationen
Preistrend für Bestandsimmobilien in Trostberg