Zum Verkauf steht eine vermietete Doppelhaushälfte aus dem Jahr 2016 in der Osterholzer Heerstraße in Bremen. Das Haus bietet ca. 111 m² Wohnfläche, verteilt auf drei Etagen und vier Zimmer.
Im Erdgeschoss befinden sich der Wohn- und Essbereich mit Zugang zur Terrasse, die Küche sowie ein Gäste-WC. In den oberen Etagen stehen weitere Wohn- und Schlafräume zur Verfügung.
Das Grundstück umfasst ca. 153 m² und ist pflegeleicht angelegt. Ein Stellplatz ist vorhanden. Beheizt wird die Doppelhaushälfte über eine Gaszentralheizung.
Doppelhaushälfte mit 4 Zimmern und Stellplatz in Bremen-Osterholz
28309 Bremen
Die vollständige Adresse der Immobilie erhalten Sie vom Anbieter.
Auf Karte anzeigen
Die vollständige Adresse der Immobilie erhalten Sie vom Anbieter.
Finanzierungszertifikat
In nur zwei Minuten zu Ihrem persönlichen Finanzierungszertifkat.
Infos
| Haustyp | Doppelhaushaelfte |
|---|---|
| Etagenzahl | 3 |
| Wohnfläche ca. | 111 m2 |
| Grundstücksfläche | 153 m2 |
| Bezugsfrei ab | sofort |
| Zimmer | 4 |
| Schlafzimmer | 3 |
| Badezimmer | 1 |
| Garage/Stellplatz | Außenstellplatz |
| Anzahl Garage/Stellplatz | 1 |
Kosten
| Kaufpreis |
379.000 € |
|---|---|
| Provision |
3,57 % inkl. MwSt. |
Finanzierungsrechner:
Kaufpreis:
600.000 €
Eigenkapital:
600.000 €
Monatliche Rate
0 €
Effektiver Jahreszins
0 %
Sollzinsbindung
10 Jahre
Bausubstanz & Energieausweis
| Baujahr | 2015 |
|---|---|
| Objektzustand | Renovierungsbedürftig |
| Heizungsart | Zentralheizung |
| Wesentliche Energieträger | Gas |
| Energieausweis | liegt vor |
| Energieausweistyp | Bedarfsausweis |
| Energieverbrauchskennwert | 53,0 kWh/(m²*a) |
| Energieeffizienzklasse | B |
53,0
kWh/(m²*a)
Energieeffizienzklasse B
- A+
- A
- B
- C
- D
- E
- F
- G
- H
- 0
- 25
- 50
- 75
- 100
- 125
- 150
- 175
- 200
- 225
- >250
Beschreibung des Objekts
Ausstattung
+ Gäste-WC
+ modernes Bad
+ Terrasse
+ Stellplatz
+ Gasheizung von Wolf
+ solargestützte Warmwasseraufbereitung
Lage
Die Doppelhaushälfte befindet sich in einer lebhaften und gut angebundenen Lage im Bremer Stadtteil Osterholz. Das Umfeld ist geprägt von einer Mischung aus Wohn- und Gewerbenutzung, was für ein urbanes und vielfältiges Stadtbild sorgt. Durch die Nähe zu mehreren Hauptverkehrsstraßen ist die Anbindung an das Bremer Stadtzentrum sowie an umliegende Stadtteile sehr gut, sowohl mit dem Auto als auch mit öffentlichen Verkehrsmitteln. Einkaufsmöglichkeiten, Schulen, Kindergärten und medizinische Einrichtungen befinden sich in der Umgebung und sind bequem erreichbar. Auch Freizeitangebote und Grünflächen liegen nur wenige Minuten entfernt, sodass trotz der verkehrsreichen Lage eine gute Lebensqualität gegeben ist. Insgesamt bietet die Lage eine praktische Kombination aus zentraler Erreichbarkeit und umfassender Infrastruktur.
Sonstige Angaben
Unsere Immobilienangebote verstehen sich freibleibend und unverbindlich. Zwischenvermittlung ausdrücklich vorbehalten. Die Angaben zum Objekt basieren auf erteilten Informationen Dritter. Für die Richtigkeit und Vollständigkeit kann deshalb keine Haftung übernommen werden.
Im Fall des Kaufs der Immobilie, hat der Käufer die ortsübliche Provision an CapitalReal GmbH & Co. KG zu zahlen. Die Provision ist mit Wirksamwerden des Hauptvertrages fällig.
Wir können Anfragen nur mit vollständig angegebenem Namen, Adresse und Telefonnummer bearbeiten. Wir bitten um Ihr Verständnis.
Die erforderlichen Energieangaben wurden entweder bereits im Exposé eingetragen oder der Energieausweis befindet sich derzeit in Bearbeitung.
Alle in dieser Anzeige gemachten Angaben, insbesondere zu den Energieverbrauchswerten, beruhen auf den Informationen aus dem uns vorliegenden Energieausweis. Trotz sorgfältiger Prüfung können unvollständige oder fehlende Angaben nicht vollständig ausgeschlossen werden. Für die Richtigkeit und Vollständigkeit der Angaben übernehmen wir daher keine Gewähr. Der vollständige Energieausweis kann jederzeit angefordert und eingesehen werden. Sollten Angaben im Exposé fehlen oder unvollständig sein, bitten wir höflich um Mitteilung, damit wir diese ergänzen können. Maßgeblich sind in jedem Fall die Daten aus dem vorliegenden Energieausweis. Sollte dieser in Bearbeitung sein, werden die Angaben umgehend nach Erhalt des Ausweises aufgenommen.
Für dieses Objekt befindet sich der Energieausweis aktuell in Bearbeitung //
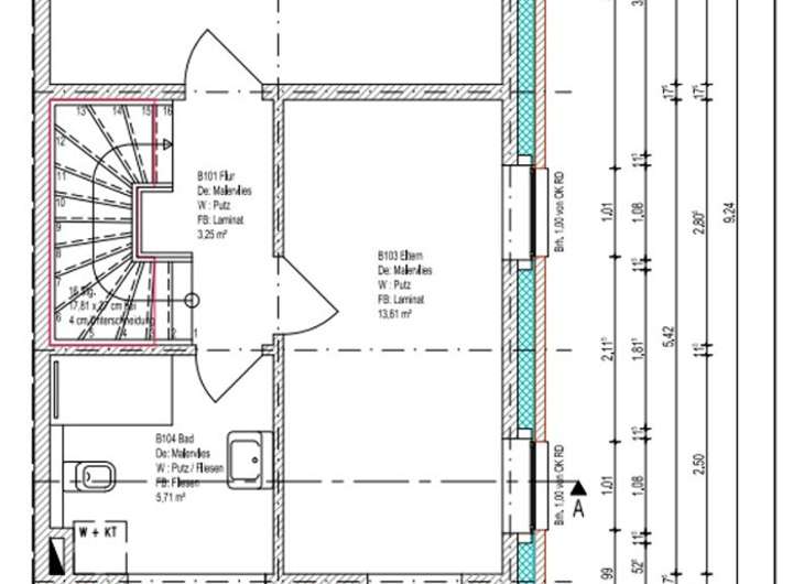
Grundriss
Grundriss EG Osterholzer H
>
>
Grundriss OG Osterholzer H
>
>
Grundriss DG Osterholzer H
>
>
Adresse
28309 Bremen
Interessante Orte
Preis- und Lageinformationen
Preistrend für Bestandsimmobilien in Altstadt