Dieses freistehende Einfamilienhaus mit Garage bietet Ihnen die Möglichkeit, Ihren Wohntraum nach eigenen Vorstellungen zu verwirklichen. Das Gebäude befindet sich aktuell im Rohbauzustand und bildet damit die perfekte Grundlage für eine individuelle Gestaltung von Innenausbau und Ausstattung.
Das großzügige Grundstück ermöglicht eine optimale Ausrichtung des Hauses und bietet ausreichend Platz für Garten- und Freizeitgestaltung. Die Garage ist direkt am Haus integriert und sorgt für komfortables und sicheres Parken.
Eine gültige Baugenehmigung liegt vor, sodass der weitere Baufortschritt unkompliziert fortgesetzt werden kann. Die Grundrissgestaltung ist bereits genehmigt, kann jedoch – je nach den baurechtlichen Möglichkeiten – noch an Ihre Wünsche angepasst werden.
Dieses Objekt eignet sich ideal für Bauherren, die Wert auf Individualität und persönliche Gestaltung legen und gleichzeitig von der bereits erbrachten Rohbauleistung profitieren möchten.
Großzügiger Neubau mit Garage in begehrter Lage
28816 Stuhr
Die vollständige Adresse der Immobilie erhalten Sie vom Anbieter.
Auf Karte anzeigen
Die vollständige Adresse der Immobilie erhalten Sie vom Anbieter.
Finanzierungszertifikat
In nur zwei Minuten zu Ihrem persönlichen Finanzierungszertifkat.
Infos
| Vermarktungsart | Kaufen |
|---|---|
| Grundstücksfläche | 792 m2 |
Kosten
| Miete pro Jahr |
0 € |
|---|---|
| Provision |
3,57 Der Maklervertrag mit der Immobilienberatung Bremen GmbH kommt durch schriftliche Vereinbarung oder auch durch die Inanspruchnahme unserer Maklertätigkeit auf der Basis des Objektexposés und seiner Bedingungen (AGB) zustande. Sollte Ihnen das von uns angebotene Objekt bereits bekannt sein, teilen Sie uns dieses bitte unverzüglich mit. Die Courtage beträgt marktübliche 3,57 % inkl. MwSt. für den Käufer. Die Grunderwerbssteuer, Notar- und Grundbuchkosten sind vom Käufer zu tragen. Die Courtage ist verdient und fällig mit der Unterzeich-nung des notariellen Kaufvertrages. |
Finanzierungsrechner:
Kaufpreis:
600.000 €
Eigenkapital:
600.000 €
Monatliche Rate
0 €
Effektiver Jahreszins
0 %
Sollzinsbindung
10 Jahre
Beschreibung des Objekts
Lage
Die Immobilie befindet sich im beliebten Ortsteil Moordeich. Dieser zählt rund 5.200 Einwohner und kombiniert ein ruhiges, dörfliches Wohnumfeld mit hervorragender Anbindung an Bremen. Versorgungseinrichtungen für den täglichen Bedarf, eine Grundschule sowie die Lise-Meitner-Gesamtschule sind vor Ort verfügbar.
Freizeitmöglichkeiten bieten der naturnahe Silbersee südlich des Ortes sowie der kunstvoll gestaltete Parkfriedhof Moordeich. Die Verkehrsanbindung ist ideal: Über Landesstraßen oder Bus sowie künftig eine Straßenbahnverbindung ist die Bremer Innenstadt schnell erreichbar. Moordeich ist Teil der gut entwickelten Gemeinde Stuhr mit rund 33.900 Einwohnern im Landkreis Diepholz.
Sonstige Angaben
Rechtliche Hinweise
Für die im Exposé gemachten Angaben übernehmen wir keine Gewähr. Die gemachten Angaben basieren ausschließlich auf Informationen unseres Auftrag-gebers. Somit übernehmen wir keine Haftung oder Gewähr für die Vollständig-keit, Richtigkeit und Aktualität dieser Angaben. Nachträgliche Änderungen und Korrekturen im Exposé behalten wir uns vor. Irrtum und Zwischenverkauf bleibt vorbehalten. Eine Besichtigung des Objekts ist nach Vereinbarung möglich.
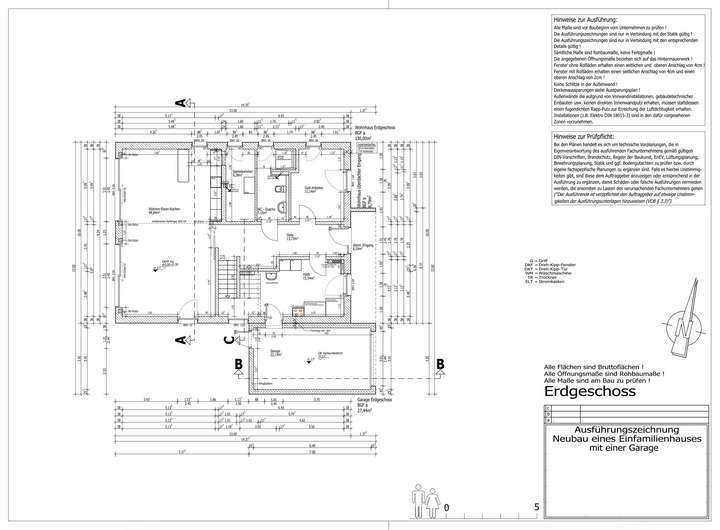
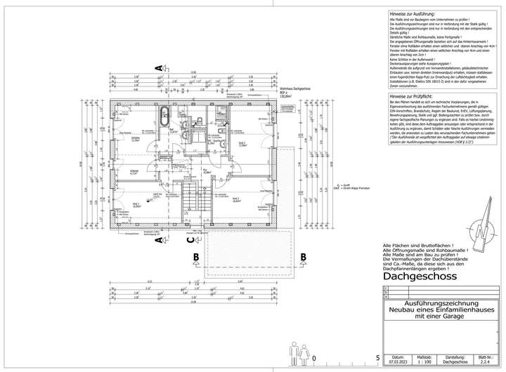
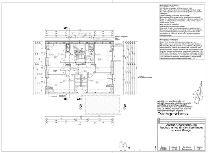
Grundriss
Grundriss EG
>
>
Grundriss DG
>
>