Diese umfangreich sanierte und top gepflegte Immobilie liegt in einer ruhigen Wohnsiedlung von Norden im Ortsteil Ostermarsch. Die Innenstadt von Norden, mit zahlreichen Einkaufsmöglichkeiten, Ärzten, Schulen und Restaurants, erreichen Sie in etwa 10 Minuten mit dem Auto. Auch die beliebten Nordseeheilbäder Norddeich und Neßmersiel und die Fährverbindungen zu den Inseln Norderney und Juist sind schnell erreichbar. Der nahegelegene Deich lädt zu ausgedehnten Spaziergängen und Fahrradtouren ein und macht das Objekt besonders attraktiv.
Die Immobilie ist in zwei Wohneinheiten aufgeteilt und verfügt über eine Wohnfläche von ca. 153 m², welche sich wie folgt aufteilt:
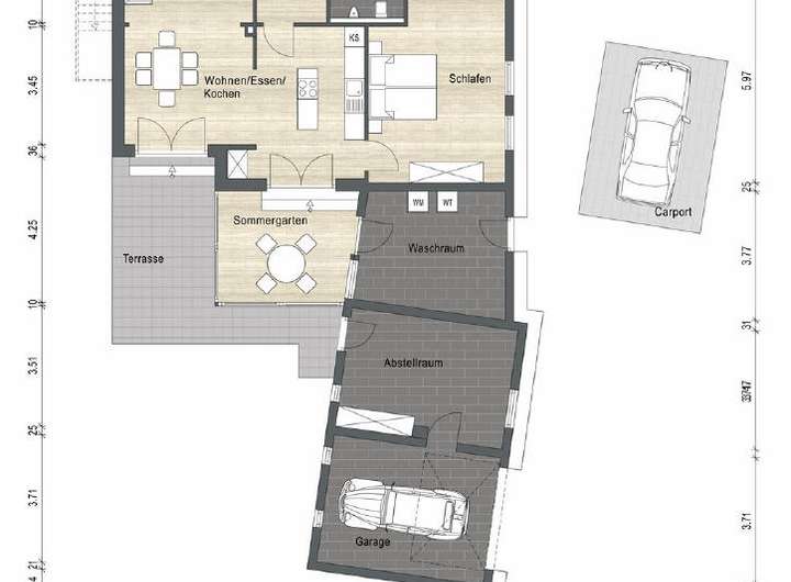
Erdgeschoss (Whg. I):
Offenes Wohnzimmer mit angrenzendem Esszimmer und Kaminofen
Offene Küche mit hochwertiger Einbauküche (Granitplatte, Induktionskochfeld etc.)
Vollbad mit Wanne/ Dusche und WC
Schlafzimmer
Flur
Heizungs-/ Technikraum
Sommergarten mit Spotlights und elektrischer Beschattung
Teilkeller
Dachgeschoss (Whg. II):
Schlafzimmer
Offenes Wohn-/ Esszimmer
Küche mit EBK
Duschbad
Massives Nebengebäude:
Büro
Waschküche
Ausstattung:
Das komplette Erdgeschoss verfügt über eine Fußbodenheizung
Garage mit Werkstatt
Carport
Garten, komplett eingezäunt
Dachsanierung ca. 2009/ 2010
Erneuerte Elektrik von ca. 2009/ 2010
Moderne Videoüberwachung
Gaszentralheizung Baujahr 2009
Kunststoff-Iso-Fenster mit 3-Fachverglasung und z. T. mit Fliegengittern BJ 2009/ 2010
2 Blockhütten
Fasssauna
Regenwasserzisterne zur Gartenbewässerung
Eigentumsgrundstück
Die Immobilie ist an das öffentliche Kanalisationsnetz angeschlossen
Sämtliche Nebengebäude und Anbauten sind genehmigt und eingetragen
Top gepflegtes Wohnhaus mit ELW, Nebengebäude und Fasssauna im schönen Ostermarsch
26506 Norden
Die vollständige Adresse der Immobilie erhalten Sie vom Anbieter.
Auf Karte anzeigen
Die vollständige Adresse der Immobilie erhalten Sie vom Anbieter.
Finanzierungszertifikat
In nur zwei Minuten zu Ihrem persönlichen Finanzierungszertifkat.
Infos
| Haustyp | Einfamilienhaus |
|---|---|
| Wohnfläche ca. | 153 m2 |
| Nutzfläche | 76 m2 |
| Grundstücksfläche | 1.199 m2 |
| Bezugsfrei ab | nach Vereinbarung! |
| Zimmer | 4 |
| Garage/Stellplatz | Außenstellplatz |
| Anzahl Garage/Stellplatz | 3 |
Kosten
| Kaufpreis |
359.500 € |
|---|---|
| Provision |
3,57 % inkl. MwSt |
Finanzierungsrechner:
Kaufpreis:
600.000 €
Eigenkapital:
600.000 €
Monatliche Rate
0 €
Effektiver Jahreszins
0 %
Sollzinsbindung
10 Jahre
Bausubstanz & Energieausweis
| Baujahr | 1952 |
|---|---|
| Letzte Sanierung | 2009 |
| Qualität der Austattung | Gehoben |
| Wesentliche Energieträger | Gas |
| Energieausweis | liegt vor |
| Energieausweistyp | Bedarfsausweis |
| Energieverbrauchskennwert | 116,1 kWh/(m²*a) |
| Energieeffizienzklasse | D |
116,1
kWh/(m²*a)
Energieeffizienzklasse D
- A+
- A
- B
- C
- D
- E
- F
- G
- H
- 0
- 25
- 50
- 75
- 100
- 125
- 150
- 175
- 200
- 225
- >250
Beschreibung des Objekts
Grundriss
Grundrissskizze DG
>
>
Grundrissskizze EG
>
>
Grundrissskizze DG
>
>
Adresse
26506 Norden
Interessante Orte
Preis- und Lageinformationen
Preistrend für Bestandsimmobilien in Norden