Das Bauhaus Anteo ist ein modernes Kern-Haus mit 214 m². Hier hat eine Familie genügend Platz um sich Wohlzufühlen.
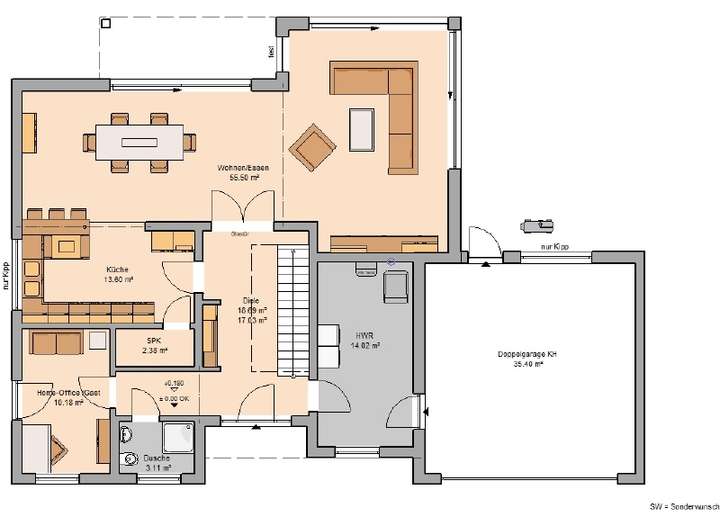
Das Wohn- und Esszimmer auf 55 m² wird zum Lebensmittelpunkt des Hauses, denn direkt angeschlossen ist die offene Küche mit Speisekammer. Große Fensterelemente im Wohnbereich bieten eine grenzenlose Sicht nach draußen. Ebenfalls im Erdgeschoss zu finden sind ein Home-Office, ein Duschbad und der Hauswirtschaftsraum, über den man in die Doppelgarage gelangt.
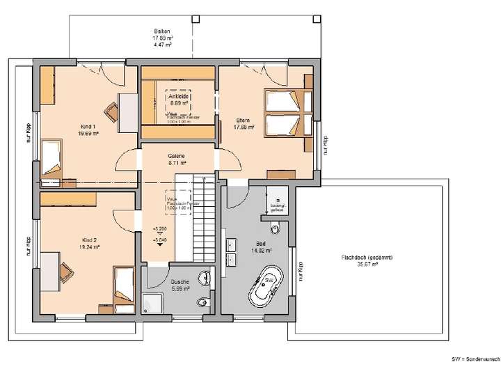
Eine geradlinige Treppe führt in die lichtdurchflutete Galerie im Obergeschoss. Für die Eltern ist hier ein 40 m² großer, separater Bereich geplant. Dieser dient als perfekter Rückzugsort nach einem stressigen Tag. Vom geräumigen Schlafzimmer gelangt man in die Ankleide als auch in das Badezimmer mit Dusche und freistehender Badewanne. Von der Galerie erreicht man außerdem zwei gleichgroße Kinderzimmer und ein weiteres Duschbad.
Abgerundet wird der durchdachte Grundriss von einem großzügigen Balkon in Richtung des Gartens. Dieser ist von einem der Kinderzimmer und dem Elternbereich begehbar.
Dieses Haus wird nach Ihren individuellen Wünschen geplant und ausgestattet!
Knapp 1000m2 Bauland in Graupa
01796 Pirna
Die vollständige Adresse der Immobilie erhalten Sie vom Anbieter.
Auf Karte anzeigen
Die vollständige Adresse der Immobilie erhalten Sie vom Anbieter.
Finanzierungszertifikat
In nur zwei Minuten zu Ihrem persönlichen Finanzierungszertifkat.
Infos
| Haustyp | Einfamilienhaus |
|---|---|
| Wohnfläche ca. | 214 m2 |
| Grundstücksfläche | 967 m2 |
| Zimmer | 5 |
| Schlafzimmer | 3 |
| Badezimmer | 3 |
| Anzahl Garage/Stellplatz | 2 |
Kosten
| Kaufpreis |
885.900 € |
|---|---|
| Provision | Nein |
Finanzierungsrechner:
Kaufpreis:
600.000 €
Eigenkapital:
600.000 €
Monatliche Rate
0 €
Effektiver Jahreszins
0 %
Sollzinsbindung
10 Jahre
Bausubstanz & Energieausweis
| Baujahr | 2026 |
|---|---|
| Bauphase | Haus in Planung (projektiert) |
| Objektzustand | Erstbezug |
| Heizungsart | Wärmepumpe |
| Energieausweis | liegt vor |
| Energieausweistyp | Bedarfsausweis |
| Energieeffizienzklasse | A+ |
Energieeffizienzklasse A+
- A+
- A
- B
- C
- D
- E
- F
- G
- H
- 0
- 25
- 50
- 75
- 100
- 125
- 150
- 175
- 200
- 225
- >250
Beschreibung des Objekts
Ausstattung
5 Zimmer, offene Küche, Diele, 2 x Dusche, Galerie, Bad, Ankleide, Hauswirtschaftsraum, Speisekammer, Balkon, Doppelgarage
Das gezeigte Traumhaus im Überblick:
+ Massivhaus als Ausbauhaus im Sinne der Bau- und Ausstattungsbeschreibung "Paulo"
+ Gebäudehülle ist für Effizienzhaus 40 optimiert
+ Inklusive Bodenplatte
+ Architekten- und Ingenieurleistungen (u. a. Bauantrag, Werkplanung, Statik und Wärmeschutzberechnung)
+ Hochwertiger Kunstharz-Außenputz für eine langlebige Fassade
+ Haustür mit 5-fach-Sicherheitsverriegelung
+ Fenster mit 3-Scheiben-Wärmeschutzverglasung und Rollläden
+ Dachflächenfenster von Velux oder Roto
+ Granitaustrittsschwellen an bodengleichen Terrassentüren
Lage
Graupa als grüner Stadtteil von Pirna liegt im herrlichen oberen Elbtal und ist angenehm umwaldet. Graupa hat ein gut funktionierendes Versorgungsnetz und ist per Bus mit dem Umland verbunden. Die neu Umgehungsstraße bringt Sie schnell zur BAB , nach Pirna und in die Landeshauptstadt. Der Baugrundstück befindet sich in einer ruhigen Seitenstraße und ist geprägt durch überwiegend Einfamilienhäuser. Kindereinrichtungen, Handel und Erholungsmöglichkeiten sind sowohl im Ort als auch im nahen Pirna vorhanden. Das Baugrundstück befindet sich in einer ruhigen Nebenstraße und ist gut geschnitten. Das Grundstück ist erschlossen und vermessen. Ein kleines Gartenhaus ziert das Grundstück.
Sonstige Angaben
Kern-Haus
Kern-Haus baut individuelle und massive Architektenhäuser zu einem attraktiven Preis-Leistungs-Verhältnis – und das bereits mit einer Erfahrung seit 1980.
Maximale Sicherheit bei Kern-Haus:
+ 10 Jahre Gewährleistung auf die wesentlichen Bauleistungen
+ Bis zu 18 Monate Festpreisbindung
+ 50 Jahre Gewährleistung auf das DuoTherm-Mauerwerk
+ Verbindliche Bauzeit
+ Zahlung nach Baufortschritt
Preise und Auszeichnungen von Kern-Haus:
- German Brand Award in den Jahren 2018 und 2021
- Hausbau Design Award: Sieger in den Jahren 2017, 2018, 2019, 2020, 2021, 2022 und 2023
- Deutscher Traumhauspreis: Sieger in den Jahren 2014, 2015, 2016 und 2018 und Silber 2017, 2020 und 2021
- Mittelstandspreis "Top 100" in den Jahren 2014, 2016, 2018, 2020 und 2022
- German Design Award im Jahr 2018
Weitere Informationen
Der gezeigte Preis versteht sich inklusive Grundstück und exklusive der Baunebenkosten.
AUSBAUHAUS
Ihre Ansprechpartnerin Nicole Ulbricht vom Kern-Haus-Team in Dresden freut sich darauf Ihre Fragen zu beantworten. Jetzt anrufen: 0351 / 8391319
Grundriss
Grundriss Erdgeschoss
>
>
Grundriss Obergeschoss
>
>
Adresse
01796 Pirna
Interessante Orte
Preis- und Lageinformationen
Preistrend für Bestandsimmobilien in Pirna