Voll erschlossenen, großzügiges Hanglagen-Baugrundstück, in sonniger West Lage, mit besten Aussichten über Altensteig hinweg.
Die Grundstücksituation ist ideal für ein Doppelhaus. Die jeweilige Fläche für eine DHH wie dargestellt beträgt ca. 341 m².
Darauf basiert diese Anzeige und das Angebot KP 79.000,-- für das Baugrundstück.
Teilungskosten + Architekten-Vorplanungskosten sind hierin bereits enthalten. Damit ist der KP deutlich unter dem Bodenrichtwert.
Ihre komplette eigene Planung bleibt weiterhin möglich.
Die schlüsselfertigen GESAMT-Gestehungskosten für diese dargestellte DHH-Vorplanung, werden in Summe bei relativ kostengünstigen 600.000,-- liegen.
Nur die Kosten für diese abgebildete komplette DHH, ohne Grundstück, liegen inklusive Architekt + Genehmigungen gemäß Recherchen + Erfahrung bei ca. 500.000,-- .
Aktuelles Finanzierungsbeispiel über FALC Finance: monatliche Rate 1.745,-- , Zinsbindung 10 Jahre, Darlehen 490.000,-- angenommenes Eigenkapital 122.000,--. Das ist besser als Mieten! Interesse?
Auch als Ausbauhaus möglich, dann je nach Eigenleistung oder Eigenregie entsprechend deutlich günstiger.
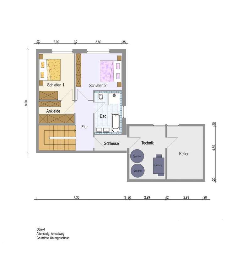
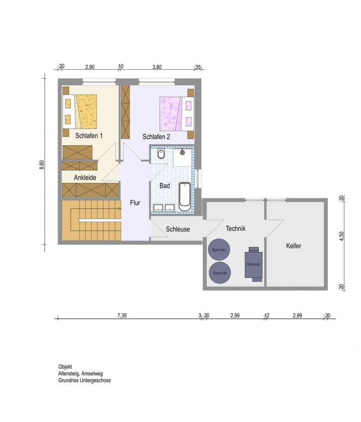
Die hier abgebildete Wohnfläche pro DHH beträgt 145 m², auf jeweils 6 Zimmer verteilt.
Hierin ist der heutige moderne GEG-Standard, als auch ein schicker + moderner Wohnkomfort inklusive.
Im obigen abgefragten Preisen ist enthalten:
2 PKW-Stellplätzen pro Haus direkt neben dem Hauseingang.
Einen über 16 m² großen Balkon am EG-Wohnbereich mit toller Fernsicht.
Und im Gartengeschoss nochmals eine große Gartenterrasse mit teils geebneter Gartenfläche im Hang.
Mehr siehe Entwürfe und Grundrisse der Vorplanung.
Überschaubare Bauzeit durch Systemhaus Vorfertigungen möglich.
Sie erhalten eine ausführliche Baubeschreibung bei entsprechender Festlegung des Haustyps und Hersteller.
Kostensenkung durch Eigenausbau gemäß Festlegungen ist ebenfalls möglich. Dazu ist eine Extraberatung notwendig.
Natürlich kann jeder Käufer eines Bau-Grundstück auch komplett selber sein Wohnglück planen + organisieren.
Das Baugrundstück wurde erst jüngst nochmals mit zeitgemäßer Versorgungstechnik, wie z.B. Glasfaser, neu erschlossen.
Die Teilung des Grundstücks zugunsten des oben dargestellten bezahlbaren + familienfreundlichen DHH-Modell, wird erst bei entsprechender kaufvertraglicher Einigung veranlasst.
So lange ist auch ein Verkauf am Stück denkbar. Damit kann man anspruchsvolles Wohnen in einem sehr großzügigen Ein- bis Zwei Familienhaus oder Ein Familienhaus mit ELW / Büro verwirklichen.
Die gesamte Grundstücksgröße von Flurstück 1097 beträgt 682 m². Preis dann auf Anfrage.
Die hier dargestellte Bauweise ist nach Prüfung unseres beauftragten Architekten gemäß vorhandener Nachbarschaftsbebauung und aktuellem Bebauungsplan gut möglich.
Inwieweit somit sogar ein kleines Mehrfamilienhaus genehmigungsfähig ist, müsste mit dem Bauamt abgestimmt werden.
Unser Architekt + Team übernimmt gerne den Auftrag zur obigen System-Ausführung oder erstellt in klassischer Art für Sie die Planung + Ausschreibung, was eine längere Bauzeit nach sich zieht.
Klasse Hang-Baugrundstück in Aussichtslage für ein Doppelhaus / DHH
Amselweg 1,
72213 Altensteig
Auf Karte anzeigen
Finanzierungszertifikat
In nur zwei Minuten zu Ihrem persönlichen Finanzierungszertifkat.
Infos
| Vermarktungsart | Kaufen |
|---|---|
| Grundstücksfläche | 341 m2 |
| Empfohlene Nutzung | Doppelhaus |
| Bebaubar nach | Bebauungsplan |
Kosten
| Miete pro Jahr |
79.000 € |
|---|---|
| Provision |
3,57 % inklusive 19 % MwSt vom Not. KP |
Finanzierungsrechner:
Kaufpreis:
600.000 €
Eigenkapital:
600.000 €
Monatliche Rate
0 €
Effektiver Jahreszins
0 %
Sollzinsbindung
10 Jahre
Beschreibung des Objekts
Lage
Ruhiges und bürgerliches Wohnbau-Gebiet.
Der Amselweg, Flurstück 1097, vermutlich Hausnummer 1, liegt in Höhenlage mitten in der kleineren, aber sehr charmanten Schwarzwaldstadt Altensteig. Die Einwohnzahl liegt bei knapp 11.000.
Neben der tollen Fernsicht, ist hier oben die tägliche Versorgung mit Bäcker, Schulen und Kindergarten gegeben.
Alle anderen Versorgungen des Alltags befinden sich nicht weit weg und sind überwiegend "unten" in der Kleinstadt.
Der Schwarzwald befindet sich quasi schon im Ort.
Weitere lohnenswerte Ausflüge befinden in der nahen Umgebung, bis hin zum Freizeitzentrum der Nagoldtalsperre.
Ein beliebter Ort zum Erholen, zum Schwimmen und weiteren diversen Wassersportarten.
Neben der Natur des Schwarzwaldes und seinen begehrten Ausflugzielen hat Altensteig eine erfolgreiche mittelständische Industrie zu bieten.
Sonstige Angaben
Wir bieten Ihnen mit unseren bewährten Partnern den Immobilien-Rundum-Service!
Günstige und zügige Finanzierungsvermittlung.
Professioneller Verkauf Ihrer bisherigen Bestandsimmobilie.
Techniker und Hausmeisterservice.
Umbau- und Neubauangebote mit unserem Büropartner Domizil Bau und anderen Teams.
Aktive Planungshilfe mit samt Domizil Bau Handwerkerservice bei der Durchführung von Sanierungen.
Unabhängige Beratung für ein energetisches GEG-Konzept ist über uns möglich und wird von einem DEKRA Ingenieurbüro für Energieberatung durchgeführt.
Dieses Exposee wurde teilweise mit Hilfe eines KI-Tools erstellt.
Die Objektunterlagen für das Grundstück stammen von den Eigentümern.
Weitere Dokumente
Finanzierungsvorschlag-FALC-JRGrundriss
BV Altensteig Grundriss EG bun
>
>
BV Altensteig Grundriss UG bun
>
>
BV Altensteig Grundriss Garten
>
>