Luxus mit südländischem Charme: Die Stadtvilla Aurelio bringt mediterranes Flair in jedes Baugebiet. Auf zwei Geschossen finden Sie großzügige Räume, die dem hohen Anspruch an maximalen Wohnkomfort gerecht werden. Die exklusive Architektur wird durch eine Vielzahl an Fenstern bestimmt, die die Innenräume der Stadtvilla zu einem lichtdurchfluteten Wohnerlebnis machen.
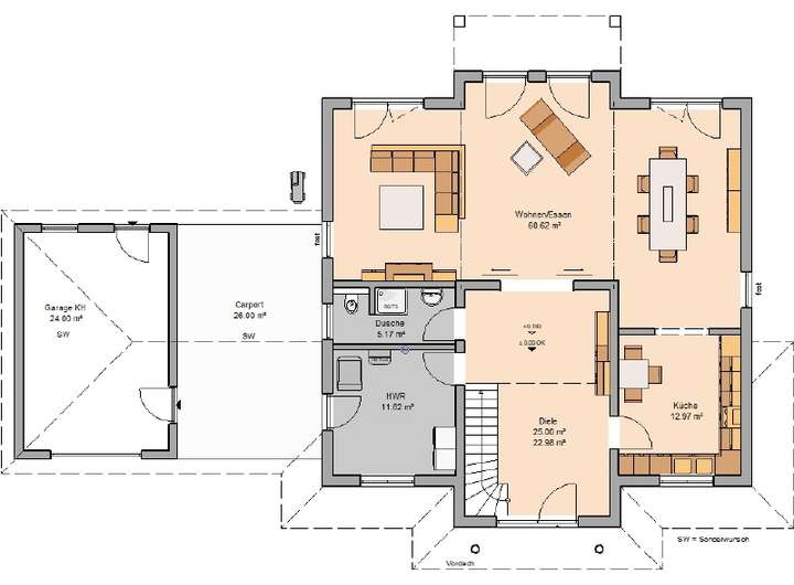
Der große Eingangsbereich, der einen herrlichen Blick auf die Galerie des Obergeschosses bietet, hinterlässt garantiert einen bleibenden Eindruck. Zudem befindet sich im Erdgeschoss das großzügige Wohn- und Esszimmer, die Küche, ein Bad mit Dusche und der Hauswirtschaftsraum mit eigenem, separatem Eingang.
Im Obergeschoss gelangt man von der Galerie in zwei Kinderzimmer mit separatem Bad, in ein Home-Office mit einem direkt angrenzenden Balkon und in das Haupt-Schlafzimmer. An dieses Schlafzimmer grenzt direkt ein Ankleideraum und das eigene Wellness-Badezimmer, dass mit viel Fläche zum Entspannen einlädt.
Um das schlüsselfertige und vollständige Angebot abzurunden, bietet Kern-Haus auf Wunsch die Stadtvilla inklusive der gezeigten Carport-Garagen-Kombination oder weiteren Garagenmöglichkeiten an. Sprechen Sie mit den Baufachberatern über Ihre Wünsche und Vorstellungen. Kern-Haus setzt Ihre Ideen und Träume gerne in die Tat um!
Dieses Haus wird nach Ihren individuellen Wünschen geplant und ausgestattet!
Bauen Sie ihr neues zu Hause auf knapp 1400m2
01990 Großkmehlen
Die vollständige Adresse der Immobilie erhalten Sie vom Anbieter.
Auf Karte anzeigen
Die vollständige Adresse der Immobilie erhalten Sie vom Anbieter.
Finanzierungszertifikat
In nur zwei Minuten zu Ihrem persönlichen Finanzierungszertifkat.
Infos
| Haustyp | Einfamilienhaus |
|---|---|
| Wohnfläche ca. | 213 m2 |
| Grundstücksfläche | 566 m2 |
| Zimmer | 5 |
| Schlafzimmer | 4 |
| Badezimmer | 2 |
| Anzahl Garage/Stellplatz | 2 |
Kosten
| Kaufpreis |
660.500 € |
|---|---|
| Provision | Nein |
Finanzierungsrechner:
Kaufpreis:
600.000 €
Eigenkapital:
600.000 €
Monatliche Rate
0 €
Effektiver Jahreszins
0 %
Sollzinsbindung
10 Jahre
Bausubstanz & Energieausweis
| Baujahr | 2026 |
|---|---|
| Bauphase | Haus in Planung (projektiert) |
| Objektzustand | Erstbezug |
| Qualität der Austattung | Gehoben |
| Heizungsart | Wärmepumpe |
| Wesentliche Energieträger | Strom |
| Energieausweis | liegt vor |
| Energieausweistyp | Bedarfsausweis |
| Energieverbrauchskennwert | 17,5 kWh/(m²*a) |
| Energieeffizienzklasse | A+ |
17,5
kWh/(m²*a)
Energieeffizienzklasse A+
- A+
- A
- B
- C
- D
- E
- F
- G
- H
- 0
- 25
- 50
- 75
- 100
- 125
- 150
- 175
- 200
- 225
- >250
Beschreibung des Objekts
Ausstattung
5 Zimmer, Küche, Diele, 2x Duschbad, Galerie, Bad, Ankleide, Balkon, Hauswirtschaftsraum. Auf Wunsch: Carport/Garagenanbau
Das gezeigte Traumhaus im Überblick:
+ Schlüsselfertiges Massivhaus im Sinne der Ausstattungsbeschreibung "Edition 25"
+ Zukunftsorientierte Energieausstattung in Form einer Luft-Wasser-Wärmepumpe und Fußbodenheizung sowie einer kontrollierten Wohnraumlüftung mit Wärmerückgewinnung
+ Inklusive Bodenplatte
Beste Markenausstattung in jedem Kern-Haus:
+ Zimmermannsmäßiger Dachstuhl aus Konstruktionsvollholz
+ Dacheindeckung mit Betondachsteinen von Braas
+ Hochwertiger Kunstharz-Außenputz für eine langlebige Fassade
+ Vollständige Badausstattung von Villeroy & Boch mit Badewanne und flacher Duschwanne sowie einer Echtglasduschkabine
+ Fliesen von Villeroy & Boch in Bad und WC
+ Haustür mit 5-fach-Sicherheitsverriegelung
+ Erstklassige Innentüren der Marke Herholz
+ Fenster mit 3-Scheiben-Wärmeschutzverglasung und Rollläden
+ Stahl-Holz-Treppe mit individueller Farbgestaltungsmöglichkeit
+ Vollständige und überdurchschnittliche Elektroausstattung inklusive Klingelanlage und Netzwerkdosen
+ Rauchmelder für Ihre Sicherheit
+ Alle Leistungen aus einer Hand
+ Alle Planungs- und Architektenleistungen
+ Einsatz regionaler Handwerksbetriebe
+ Baubegleitende 5-Phasen-TÜV-Prüfung und Blower-Door-Test
+ Individuelle Anpassung auf Ihre Bedürfnisse
+ Auf Wunsch mit Keller erhältlich
+ Auf Wunsch mit weiteren Energietechniken erhältlich
Lage
Großkmehlen ist Brandenburgs südlichste Gemeinde und liegt am Fuße der "Kmehlner Berge" mit dem höchsten Brandenburger Berg, dem Kutschenberg. Im Ortsbereich ist der Anschluss an die Autobahn A13 vorhanden, auf der man Dresden bereits nach 30km erreicht und nach Berlin sind es etwa 130km. Der Zugang zum Streckennetz der Deutschen Bahn ist in der benachbarten Stadt Ortrand vorhanden.
Sonstige Angaben
Kern-Haus
Kern-Haus baut individuelle und massive Architektenhäuser zu einem attraktiven Preis-Leistungs-Verhältnis – und das bereits mit einer Erfahrung seit 1980. Bei Kern-Haus erhalten Sie unter anderem 10 Jahre Gewährleistung auf die wesentlichen Bauleistungen, bis zu 24 Monate Preissicherheit sowie eine dokumentierte 5-Phasen-TÜV-Prüfung während der Bauphase. Jedes Kern-Haus als Effizienzhaus 40 ist bereits QNG-zertifiziert durch die Deutsche Gesellschaft für nachhaltiges Bauen (DGNB).
40 Jahre Expertise für das massive, energieeffiziente Bauen: Kern-Haus realisiert Massivhäuser in Ziegel, Bims, Porenbeton oder Stahlbeton (DuoTherm).
Kern-Haus setzt auf eine hohe Bauqualität der Handwerker und auf eine große Auswahl starker Marken. So verwendet Kern-Haus beim Bau Ihres Hauses nur hochwertige Markenprodukte renommierter Hersteller – wie etwa Produkte von Villeroy & Boch.
Preise und Auszeichnungen von Kern-Haus:
- German Brand Award in den Jahren 2018 und 2021
- Hausbau Design Award: Sieger in den Jahren 2017, 2018, 2019, 2020, 2021, 2022 und 2023
- Deutscher Traumhauspreis: Sieger in den Jahren 2014, 2015, 2016 und 2018 und Silber 2017, 2020 und 2021
- Mittelstandspreis "Top 100" in den Jahren 2014, 2016, 2018, 2020 und 2022
- German Design Award im Jahr 2018
Weitere Informationen
Der gezeigte Preis versteht sich inklusive Grundstück und exklusive der Baunebenkosten.
Ihre Ansprechpartnerin Nicole Ulbricht vom Kern-Haus-Team in Dresden freut sich darauf Ihre Fragen zu beantworten. Jetzt anrufen: 0351 / 8391319
Grundriss
Grundriss Erdgeschoss
>
>
Grundriss Obergeschoss
>
>
Adresse
01990 Großkmehlen
Interessante Orte
Preis- und Lageinformationen
Preistrend für Bestandsimmobilien in Großkmehlen