Großzügiges Einfamilienhaus mit Garage in idyllischer Sackgassenlage in Augustfehn (Randlage) - an Wiesen und Felder angrenzend.
Das nicht freistehende Wohnhaus wurde im Jahr 1998 an den bestehenden Altbestand in konventioneller Massivbauweise angebaut und verfügt über großzügige, helle Räume, die Ihnen und Ihrer Familie ausreichend Platz bieten.
Das Verkaufsobjekt eignet sich nicht nur für Familien, sondern auch für die älter werdende Generation. Im Erdgeschoss befindet sich ein barrierefreies Bad und das Obergeschoss kann über einen Treppenlift erreicht werden.
Räumlichkeiten:
a) Erdgeschoss
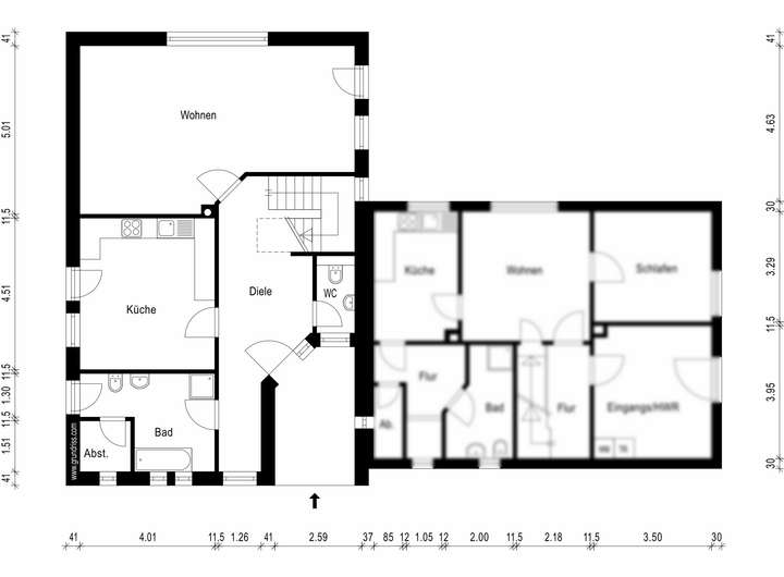
Die Räumlichkeiten unterteilen sich in eine geräumige Eingangsdiele, Wohnküche mit Essbereich und Zugang zur Terrasse, Wohnzimmer mit einem weiteren Essbereich, barrierefreies Bad, Hauswirtschaftsraum und Gäste-WC.
b) Dachgeschoss
Das Dachgeschoss verfügt über 3 Schlafzimmer, Badezimmer, Ankleide und Flurbereich.
Die Wohnfläche beträgt ca. 141 m² zzgl. einer Nutzfläche von ca. 47 m².
Besonders hervorzuheben sind hier die ruhige und idyllische Lage direkt angrenzend an ein kleines Wäldchen. Im hinteren Gartenbereich steht ein Gartenhaus in Holzkonstruktion zu Abstellzwecken zur Verfügung.
Das Verkaufsobjekt befindet sich in einem sehr gepflegten Gesamtzustand!
Die Heizungsanlage wurde in 2023 erneuert.
Die Übergabe erfolgt nach Vereinbarung.
+++ Erstklassig gepflegt - toller Garten - Garage/Werkstatt - idyllische Randlage von Augustfehn +++
26689 Apen
Die vollständige Adresse der Immobilie erhalten Sie vom Anbieter.
Auf Karte anzeigen
Die vollständige Adresse der Immobilie erhalten Sie vom Anbieter.
Finanzierungszertifikat
In nur zwei Minuten zu Ihrem persönlichen Finanzierungszertifkat.
Infos
| Haustyp | Einfamilienhaus |
|---|---|
| Wohnfläche ca. | 141 m2 |
| Nutzfläche | 46,84 m2 |
| Grundstücksfläche | 1.386 m2 |
| Bezugsfrei ab | nach Vereinbarung |
| Zimmer | 4 |
| Schlafzimmer | 3 |
| Badezimmer | 2 |
| Garage/Stellplatz | Garage |
| Anzahl Garage/Stellplatz | 1 |
Kosten
| Kaufpreis |
369.000 € |
|---|---|
| Provision |
Keine zusätzliche Käuferprovision! |
Finanzierungsrechner:
Kaufpreis:
600.000 €
Eigenkapital:
600.000 €
Monatliche Rate
0 €
Effektiver Jahreszins
0 %
Sollzinsbindung
10 Jahre
Bausubstanz & Energieausweis
| Baujahr | 1998 |
|---|---|
| Objektzustand | Gepflegt |
| Heizungsart | Zentralheizung |
| Wesentliche Energieträger | Erdgas leicht |
| Energieausweis | liegt vor |
| Energieausweistyp | Verbrauchsausweis |
| Energieverbrauchskennwert | 60,3 kWh/(m²*a) |
| Energieeffizienzklasse | B |
60,3
kWh/(m²*a)
Energieeffizienzklasse B
- A+
- A
- B
- C
- D
- E
- F
- G
- H
- 0
- 25
- 50
- 75
- 100
- 125
- 150
- 175
- 200
- 225
- >250
Beschreibung des Objekts
Ausstattung
+ idyllische Lage an einem kleinen Wäldchen
+ großzügiger, liebevoll angelegter Garten
+ Heizungsanlage in 2023 erneuert
+ sehr gepflegt
+ große, helle Räume
+ altersgerecht durch barrierefreies Bad und Treppenlift
+ inklusive moderner Einbauküche und Kaminofen
+ Garage mit Werkstatt und Geräteraum
Lage
Sämtliche Versorgungseinrichtungen sind wie auch die medizinische Grundversorgung (Allgemeinmediziner, Zahnärzte, Apotheke) am Ort und in wenigen Minuten zu erreichen.
Weiterführende Schulen (Haupt- und Realschule) befinden sich in Augustfehn bzw. Apen und Westerstede (Gymnasium). Eine Kindertagesstätte befindet sich in direkter Nachbarschaft, nur ca. 800 m entfert.
Die Kreisstadt Westerstede ist ca. 12 km entfernt. Hier befinden sich u.a. die Ammerland-Klinik, Fachärzte und sämtliche Kreisbehörden.
Augustfehn verfügt über sehr gute Verkehrsanbindungen. Die BAB 28 (Anschlussstelle Nr. 4) ist nur ca. 2,5 km entfernt. Weiter verfügt Augustfehn über einen Bahnhof an der Bahnstrecke Oldenburg - Leer. Von hier fahren Züge im stündlichen Wechsel in beide Richtungen. Der bekannte Kurort Bad Zwischenahn ist in ca. 15 Auto- bzw. Bahnminuten zu erreichen, die Oberzentren Oldenburg und Bremen in ca. ½ bzw. 1 Auto- bzw. Bahnstunde.
Sonstige Angaben
Zu diesem Objekt liegt ein ausführliches Exposé mit weiteren Detailinformationen vor, das Sie gerne bei uns anfordern können.
Telefonische Erreichbarkeit:
Montag - Freitag: 8.00 Uhr - 12.30 Uhr und 14.00 Uhr bis 17.30 Uhr
Samstag: 9.00 Uhr -12.00 Uhr
Sie möchten Ihre Immobilie verkaufen.....
..... und suchen den passenden Käufer?
Unabhängig davon, ob Sie aktuell oder erst in unbestimmter Zeit Ihre Immobilie verkaufen möchten, ist eine fundierte Beratung bares Geld wert. Wir wissen, worauf es beim professionellen Verkauf Ihrer Immobilie ankommt.
Über 60 Jahre Marktpräsenz und tausende Vermittlungen sprechen für sich.
Für ein kostenfreies und informatives Beratungsgespräch stehen wir Ihnen jederzeit gerne zur Verfügung.
Grundriss
Erdgeschoss
>
>
Dachgeschoss
>
>
Adresse
26689 Apen
Interessante Orte
Preis- und Lageinformationen
Preistrend für Bestandsimmobilien in Apen