Hier wird ein TOP-erstklassiges Bau-Grundstück und LASTENFREI verkauft!
ACHTUNG : MIT GLASFASER ( Schnelles Internet)
MOBILFUNK DEUTSCHE TELEKOM : 5 G !
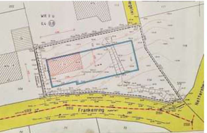
Das Grundstück ist 920 QM groß und es wurde eine Vermessung durchgeführt (Siehe Fotos)!
Das Baufenster ist 30 Meter BREIT und 11 Meter TIEF !
Beispiel : Es kann eine Stadtvilla (2 Vollgeschosse und Keller) mit weiteren Garagen und mit Einliegerwohnung gebaut werden,oder ein Bungalow (siehe weitere Beispiel-Fotos) !
Auf dem Grundstück befinden sich 4 neuwertige fertig Beton- Garagen (Siehe Fotos).
Alle 4 Garagen sind innen durchgängig!
Die Betongaragen sind auf Streifenfundamenten
aus WU-BETON mit über 80 cm Boden-Tiefe aufgestellt!
Vor den 4 Garagen ist der Boden komplett bis zur Straße bearbeitet worden und kann SOFORT gepflastert werden !
LASTENFREIES-BAUGRUNDSTÜCK-TEILBAR-VOLL ERSCHLOSSEN-GLASFASER—BETONGARAGEN—TOP LAGE!
FRANKENRING 47,
53945 Blankenheim
Auf Karte anzeigen
Finanzierungszertifikat
In nur zwei Minuten zu Ihrem persönlichen Finanzierungszertifkat.
Infos
| Vermarktungsart | Kaufen |
|---|---|
| Grundstücksfläche | 920 m2 |
| Erschließung | Erschlossen |
| Empfohlene Nutzung | Einfamilienhaus, Garagen, Stellplaetze, Villa |
| Bebaubar nach | Bebauungsplan |
| Verfügbar ab | 2.1.2026 |
Kosten
| Miete pro Jahr |
139.000 € |
|---|---|
| Provision | Nein |
Finanzierungsrechner:
Kaufpreis:
600.000 €
Eigenkapital:
600.000 €
Monatliche Rate
0 €
Effektiver Jahreszins
0 %
Sollzinsbindung
10 Jahre
Beschreibung des Objekts
Lage
Das Grundstück befindet sich im Neubaugebiet Hohental in 53945 Blankenheim!
Ruhig gelegenes Grundstück und doch ZENTRAL !
Bis zur Autobahn A1 ca.3 Kilometer !
Richtung KÖLN und BONN !
Einkaufsmöglichkeiten,Kindergarten,Bäckereien,Bussbahnhof,,Arzte,Apotheke,Post,Baumarkt,Tankstelle,Fitness,Kfz Werkstätten alles fussläufig erreichbar!
Schulen in unmittelbarer Nähe!
Sonstige Angaben
ACHTUNG :
BAUGRUNDSTÜCK GESAMT 920 QM IN
2 HÄLFTEN TEILBAR !
LINKE HÄLFTE CA. 360 QM !
IN DER MITTE VOM GANZEN TEILBAR !
RECHTE HÄLFTE CA. 560 QM !
1. LINKE SEITE MIT 4 BETON-GARAGEN
ca. 360 Qm!
PREIS: 95.000,-€ (VOLL ERSCHLOSSEN) !
2. RECHTE SEITE REINES BAUGRUNDSTÜCK
ca. 560 Qm !
PREIS: 75.000,-€. (VOLL ERSCHLOSSEN) !
BEBAUBAR GENAUSO WIE BEIM GANZEN GRUNDSTÜCK BESCHRIEBEN !
JEDE GARAGE HAT EINEN ZUSÄTZLICHEN
AUSSENSTELLPLATZ VOR DER GARAGE !
ALS KAPITALANLAGE !
PROBLEMLOS VERMIETBAR !
Grundriss
GRUNDSTÜCK
>
>