Hier kommt ein gepflegtes Reihenmittelhaus in Moers-Kapellen zum Verkauf.
Das Haus wurde in massiver Bauweise erstellt.
Es stehen zwar im Obergeschoss drei Schlafräume zur Verfügung, aber einer davon ist besser als kleines Büro oder Gästezimmer zu nutzen.
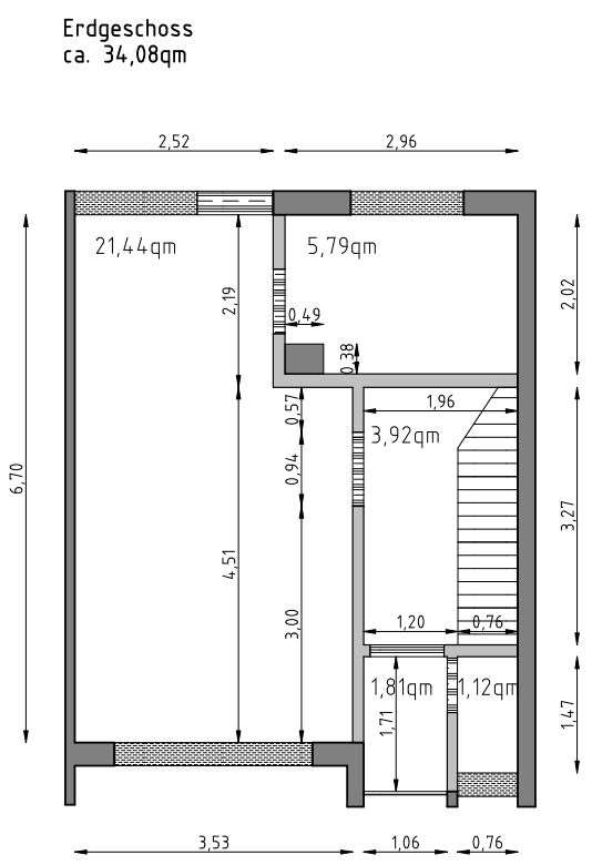
Im Erdgeschoss verfügt das Objekt über einen Flur, ein Gäste-WC, die Küche und einen größeren Wohn-Essbereich mit Zugang zur Terrasse bzw, Garten.
Die obere Etage hat, wie schon gesagt, drei unterschiedlich große Schlafräume und ein Bad mit Dusche, WC und Fenster.
Der Speicher darüber kann noch als Lagerfläche für Kartons dienen.
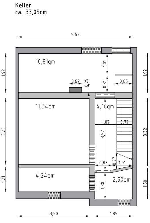
Im Keller gibt es einen schönen größeren Raum.
Weiterhin haben Sie einen kleinen Keller mit einer Werkbank.
Der Heizungskeller dient auch gleichzeitig als Hauswirtschaftsraum mit dem Standort für die Waschmaschine. Dieser Raum hat auch einen Gartenzugang.
Das Haus ist auch von hinten anzufahren. Dort befindet sich auf dem Grundstück auch die Garage und ein evtl. zwei Stellplätzen davor. Die Garage hat noch eine hintere seitliche Tür.
Hinter der Garage befindet sich noch ein Schuppen für Gartenmöbel/Geräte.
Hervorzuheben ist, das die Terrassen türe von aussen abschließbar/zu öffnen ist. Sie können somit das Haus auch von hinten begehen und verlassen. Der vordere Eingang wurde deshalb in der Vergangenheit kaum genutzt.
IMMOKONZEPT-NIEDERRHEIN: Schöne Aufteilung, gepflegt, für die kleine Familie ?, Garage., usw.....
Edmundstraße 4,
47447 Moers
Auf Karte anzeigen
Finanzierungszertifikat
In nur zwei Minuten zu Ihrem persönlichen Finanzierungszertifkat.
Infos
| Haustyp | Reihenmittelhaus |
|---|---|
| Etagenzahl | 2 |
| Wohnfläche ca. | 68 m2 |
| Nutzfläche | 18 m2 |
| Grundstücksfläche | 214 m2 |
| Bezugsfrei ab | nach Vereinbarung |
| Zimmer | 4 |
| Schlafzimmer | 3 |
| Badezimmer | 1 |
| Garage/Stellplatz | Garage |
| Anzahl Garage/Stellplatz | 1 |
Kosten
| Kaufpreis |
269.000 € |
|---|---|
| Provision |
1,785% incl. 19% MwSt. vom notariellen Kaufpreis, zahlbar nach Beurkundung und Erhalt der Rechnung. Vom Verkäufer sowie Käufer sind mit Abschluss des notariellen Kaufvertrages eine Vermittlungs- bzw. Nachweisprovision zu gleichen Teilen vom Gesamtkaufpreis an die Firma Immokonzept-Niederrhein zu zahlen. Die jeweilige Provisionshöhe entnehmen Sie bitte den Angaben im Exposè bzw. auf unserer Webseite. Die gesamte Provision beträgt 3,57% incl. 19% MwSt. vom Kaufpreis, insofern sind also vom Verkäufer und Käufer je zur Hälfte 1,785% incl.19% MwSt. zu zahlen. |
Finanzierungsrechner:
Kaufpreis:
600.000 €
Eigenkapital:
600.000 €
Monatliche Rate
0 €
Effektiver Jahreszins
0 %
Sollzinsbindung
10 Jahre
Bausubstanz & Energieausweis
| Baujahr | 1958 |
|---|---|
| Objektzustand | Gepflegt |
| Qualität der Austattung | Normal |
| Heizungsart | Zentralheizung |
| Wesentliche Energieträger | Öl |
| Energieausweis | liegt zur Besichtigung vor |
Beschreibung des Objekts
Ausstattung
Die Böden des Hauses sind durchweg hell und freundlich gefliest. Das betrifft das Erdgeschoss, das Obergeschoss und den Keller.
Die Fenster sind aus Kunststoff, doppelverglast und alle mit manuellen Rollläden ausgestattet.
Die Bad und das Gäste-WC incl. der Leitungen wurde in der Vergangenheit komplett erneuert.
Ebenso wurden die elektrischen Leizungen teilweise erneuert.
Das Sektionaltor der Garage wird elektrisch betrieben.
Die komplette Einbauküche mit Kühl-Gefrierschrank und Backofen gehört zum Kaufumfang.
Lage
Das Haus befindet sich in einem reinen Wohngebiet, es gibt keinen Durchgangsverkehr.
Einkaufsmöglichkeiten als auch ein Kindergarten usw. sind vorhanden, bzw. schnellstens zu erreichen.
Ebenfalls ist die Auffahrt der A57 sehr gut anzufahren und damit auch die A40 am Moerser Kreuz gut zu erreichen.
Sonstige Angaben
Alle Angaben erfolgen gemäß den uns vom Auftraggeber erteilten Auskünften. Irrtum, Zwischenverkauf oder -vermietung und Änderung bleiben vorbehalten. Schadenersatzansprüche uns gegenüber sind mit Ausnahme von vorsätzlichem oder grob fahrlässigem Verhalten ausgeschlossen.
Grundriss
Grundriss EG
>
>
Grundriss Keller
>
>
Grundriss OG
>
>
Adresse
Edmundstraße 4, 47447 Moers
Interessante Orte
Preis- und Lageinformationen
Preistrend für Bestandsimmobilien in Moers