Auf einem Baugrundstück mit einer Süd-West-Ausrichtung in Ratingen-Hösel können Sie Ihre Immobilie verwirklichen.
Grundstück:
Es bietet sich hier eine hervorragende Gelegenheit für Bauherren, die ihren individuellen Wohntraum verwirklichen möchten. Die großzügige Grundstücksgröße eröffnet vielfältige Gestaltungsmöglichkeiten.
Nutzen Sie diese Chance, um Ihr persönliches Zuhause nach Ihren Vorstellungen zu planen und umzusetzen.
Bebauung:
Eine unverbindliche Bauträgereinschätzung zur Bebaubarkeit des Grundstücks stellen wir Ihnen gerne zur Verfügung. Diese vermittelt erste Anhaltspunkte zur möglichen baulichen Nutzung und Gestaltung des Areals.
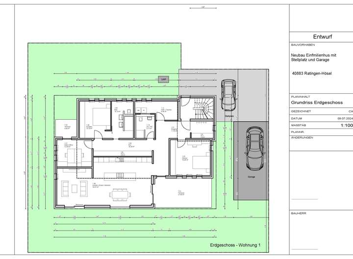
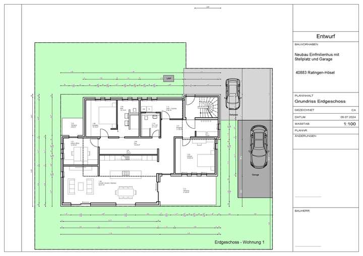
Dieser Entwurf für ein Ein-/ Zweifamilienhaus soll Ihnen einen Eindruck einer möglichen Bebauung verschaffen.
Die Wohn- Nutzfläche incl. Terrassen
in dieser Musterdarstellung liegt bei ca. 272 qm.
Selbstverständlich bedarf es einer weiteren Abstimmung mit den zuständigen Behörden, um Ihr individuelles Bauvorhaben final zu prüfen und genehmigen zu lassen.
Bauen Sie Ihr Traumhaus in einer wunderschönen und wertbeständigen ruhigen Sackgasse von Hösel.
Nutzen Sie diese Chance, um Ihr persönliches Zuhause nach Ihren Vorstellungen zu planen und umzusetzen.
Ratingen Hösel - Individuell Bauen
40883 Ratingen
Die vollständige Adresse der Immobilie erhalten Sie vom Anbieter.
Auf Karte anzeigen
Die vollständige Adresse der Immobilie erhalten Sie vom Anbieter.
Finanzierungszertifikat
In nur zwei Minuten zu Ihrem persönlichen Finanzierungszertifkat.
Infos
| Vermarktungsart | Kaufen |
|---|---|
| Grundstücksfläche | 676 m2 |
| Erschließung | Erschlossen |
| Empfohlene Nutzung | Einfamilienhaus |
| Bebaubar nach | wie Nachbarbebauung |
| Verfügbar ab | sofort |
Kosten
| Miete pro Jahr |
524.850 € |
|---|---|
| Provision |
4,165 % inkl. MwSt. vom notariellen Kaufpreis |
Finanzierungsrechner:
Kaufpreis:
600.000 €
Eigenkapital:
600.000 €
Monatliche Rate
0 €
Effektiver Jahreszins
0 %
Sollzinsbindung
10 Jahre
Beschreibung des Objekts
Lage
In der Nachbarbebauung befinden sich mehrheitlich Ein- und Zweifamilienhäuser.
Das Grundstück liegt im Bauplanungsgebiet H381 der Stadt Ratingen.
Sonstige Angaben
Alle Angaben sind ohne Gewähr und basieren ausschließlich auf Informationen, die uns vom Auftraggeber übermittelt wurden.
Bei dem dargestellten Gebäude handelt es sich um eine beispielhafte Darstellung. Eine Genehmigung für diesen Entwurf liegt nicht vor.
ImmoVest24 übernimmt keine Gewähr für die Vollständigkeit, Richtigkeit und Aktualität dieser Angaben.
Die in diesem Exposé enthaltenen Informationen und Anhänge sind ausschließlich für den bezeichneten Adressaten bestimmt. Die Verwendung, Vervielfältigung oder Weitergabe der Inhalte und Anhänge ist strengstens untersagt. Der Maklervertrag mit
uns kommt durch schriftliche Vereinbarung oder durch die Inanspruchnahme unserer Maklertätigkeit auf der Basis des
Objekt-Exposés und seiner Bedingungen zustande. Im Übrigen gelten unsere Allgemeinen Geschäftsbedingungen. Irrtum und
Zwischenverkauf vorbehalten.
Grundriss
Grundriss_EG_Einfamilienhaus
>
>