Dieses freistehende Einfamilienhaus liegt ruhig eingebettet in einer begehrten Wohnlage von Bochum-Stiepel – nur wenige Gehminuten vom Ortskern entfernt. Das ca. 672 m² große Grundstück ist pflegeleicht und rahmt das Haus vollständig mit Grünflächen ein, wodurch ein harmonisches Zusammenspiel aus Privatsphäre, Naturnähe und Alltagstauglichkeit entsteht. Das Gebäude selbst verbindet den historischen Charme eines Altbaus mit den Vorteilen fortlaufender Renovierungen und einzelner Modernisierungen zwischen 1992 und 2022. Der Haupteingang liegt geschützt auf der Rückseite und schafft eine angenehme Privatsphäre. Im Eingangsbereich empfängt Sie eine helle Atmosphäre mit einem Tageslicht-Gäste-WC. Der großzügige Wohn- und Essbereich öffnet sich zum angrenzenden Wintergarten mit einem direkten Zugang auf die Terrasse, wodurch der Innen- und Außenbereich harmonisch verbunden wird. Die Küche mit integrierter Einbauküche lädt zu geselligen Kochabenden ein. Eine Echtholztreppe führt ins Obergeschoss mit einem im Jahr 2010 modernisierten Tageslichtbad sowie zwei hellen Räumen, die sich sehr flexibel nutzen lassen. Der obere Wintergarten erweitert den Wohnraum und sorgt für eine gemütliche Stimmung. Das Kellergeschoss verfügt über mehrere gut nutzbare Räume, darunter einen wohnlich gestalteten Bereich und eine Waschküche. Geheizt wird das Haus mit einer Gas-Brennwertheizung aus dem Jahr 2019. Eine Erweiterung erfolgte 2001 durch den straßenseitigen Anbau mit eigenem Zugang, der sich ideal als Büro, Praxis oder separate Wohneinheit eignet. Beide Gebäudeteile lassen sich unabhängig voneinander oder auch zusammengelegt nutzen und bieten so ein hohes Maß an Flexibilität. Der Anbau präsentiert sich im Erdgeschoss mit einem offenen Empfangsbereich, einer integrierten Küchenzeile und einem Duschbad mit Tageslicht. Im Obergeschoss befindet sich ein großzügiger, heller Raum mit Parkettboden und Zugang zum südwestlich ausgerichteten Balkon – ideal als Arbeits- oder Rückzugsbereich, der sich bei Bedarf sogar in zwei separate Zimmer unterteilen lässt. Abgerundet wird das Gesamtbild durch eine gepflasterte Einfahrt mit einer Garage, welche sich bei Bedarf zu einem zusätzlichen Wohnraum umgestalten lässt. Dieses Angebot spricht gleichermaßen Familien mit Platzbedarf, Berufstätige, die Wohnen und Arbeiten flexibel miteinander verbinden möchten sowie Lagekunden an, die die hervorragende Erreichbarkeit der Infrastruktur zu schätzen wissen – eine Immobilie mit Substanz, Charakter und vielfältigen Möglichkeiten im Herzen von Bochum-Stiepel.
Ein gepflegtes Zuhause mit Geschichte und Flexibilität – stilvolles Einfamilienhaus mit Anbau in ...
44797 Bochum
Die vollständige Adresse der Immobilie erhalten Sie vom Anbieter.
Auf Karte anzeigen
Die vollständige Adresse der Immobilie erhalten Sie vom Anbieter.
Finanzierungszertifikat
In nur zwei Minuten zu Ihrem persönlichen Finanzierungszertifkat.
Infos
| Haustyp | Einfamilienhaus |
|---|---|
| Etagenzahl | 2 |
| Wohnfläche ca. | 225 m2 |
| Grundstücksfläche | 672 m2 |
| Zimmer | 5 |
| Anzahl Garage/Stellplatz | 2 |
Kosten
| Kaufpreis |
749.000 € |
|---|---|
| Provision |
3.57 % inkl. gesetzl. MwSt. |
Finanzierungsrechner:
Kaufpreis:
600.000 €
Eigenkapital:
600.000 €
Monatliche Rate
0 €
Effektiver Jahreszins
0 %
Sollzinsbindung
10 Jahre
Bausubstanz & Energieausweis
| Baujahr | 1900 |
|---|---|
| Objektzustand | Neuwertig |
| Heizungsart | Zentralheizung |
| Wesentliche Energieträger | Gas |
| Energieausweis | liegt vor |
| Energieausweistyp | Verbrauchsausweis |
| Energieverbrauchskennwert | 139,0 kWh/(m²*a) |
| Energieeffizienzklasse | E |
139,0
kWh/(m²*a)
Energieeffizienzklasse E
- A+
- A
- B
- C
- D
- E
- F
- G
- H
- 0
- 25
- 50
- 75
- 100
- 125
- 150
- 175
- 200
- 225
- >250
Beschreibung des Objekts
Ausstattung
Fliesen
Parkett
Teilunterkellert
Lage
Dieses schöne Haus befindet sich in ruhiger, gewachsener Wohnlage im südlichen Teil von Bochum-Stiepel – einem der beliebtesten Stadtteile der Stadt. Eingebettet in eine von Einfamilienhäusern geprägte Nachbarschaft überzeugt die Umgebung durch ihr gepflegtes Erscheinungsbild, ein angenehmes soziales Umfeld und die Nähe zur Natur. Die Straße selbst ist eine verkehrsberuhigte Anwohnerstraße ohne Durchgangsverkehr, wodurch ein ruhiges und sicheres Wohngefühl entsteht – ideal für Familien, Paare oder Menschen mit dem Wunsch nach Privatsphäre. Nur wenige Gehminuten entfernt beginnt das weitläufige Ruhrtal mit zahlreichen Spazier- und Radwegen – ein echtes Plus für Naturfreunde, Freizeitaktive oder Ruhesuchende. Trotz der naturnahen Lage erreichen Sie in unter zehn Gehminuten die Kemnader Straße, die mit diversen Einkaufsmöglichkeiten, einem Wochenmarkt, Bäckereien, Ärzten, Apotheken, Cafés und kleinen Restaurants alles bietet, was Sie für den Alltag benötigen. Auch infrastrukturell ist die Lage hervorragend angebunden. Bushaltestellen mit Verbindung zur Innenstadt, zur Ruhr-Universität oder zum Kemnader See sind fußläufig erreichbar. Die Bochumer Innenstadt sowie das Zentrum von Hattingen sind mit dem Auto in ca. 10 bis 15 Minuten erreichbar. Die nahegelegene Königsallee ermöglicht zudem eine schnelle Anbindung an die A448 und A43, wodurch auch Pendler in Richtung Essen, Dortmund oder Witten bestens angebunden sind. Die Umgebungslautstärke ist durch die zurückversetzte Lage der Immobilie als sehr gering einzustufen. Gerade diese Kombination aus naturnahem Wohnen und hervorragender Nahversorgung macht diesen Standort so attraktiv. Ob für den morgendlichen Spaziergang durchs Grüne, den schnellen Einkauf zwischendurch oder den reibungslosen Weg zur Arbeit – diese Lage vereint Lebensqualität, Komfort und Alltagstauglichkeit auf ideale Weise.
Sonstige Angaben
Der Makler-Vertrag mit uns kommt durch die Beauftragung der Maklertätigkeit in Textform (z.B. E-Mail mit Bestätigung der gewollten Inanspruchnahme) zustande. Die Höhe der Courtage richtet sich nach den ab dem 23.12.2020 in Kraft getretenen gesetzlichen Regelungen zur Teilung der Maklercourtage. Hiernach wird die Courtage regelmäßig für beide Parteien (Eigentümer und Käufer) jeweils in Höhe von 3 % zuzüglich Umsatzsteuer in jeweils geltender Höhe, derzeit also insgesamt 3,57 % des Kaufpreises einschließlich Umsatzsteuer bei notariellem Vertragsabschluss verdient und fällig. Die Höhe der Bruttocourtage unterliegt einer Anpassung bei Steuersatzänderung. Grunderwerbssteuer, Notar- und Gerichtskosten trägt der Käufer.
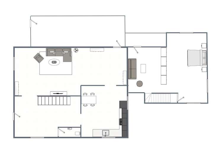
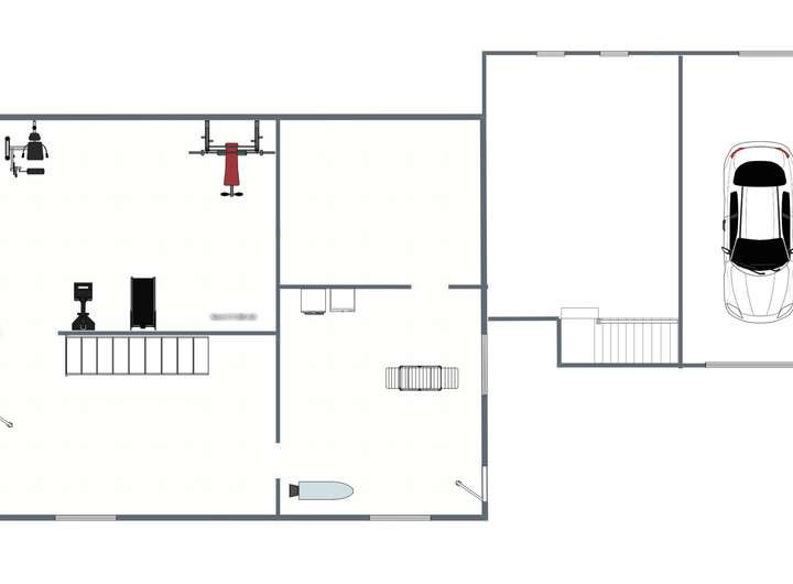
Grundriss
Kellergeschoss
>
>
Erdgeschoss
>
>
Dachgeschoss
>
>
Erreichbarkeit
>
>
Nahversorgung
>
>
Umgebungslärm
>
>
Adresse
44797 Bochum
Interessante Orte
Preis- und Lageinformationen
Preistrend für Bestandsimmobilien in Stiepel