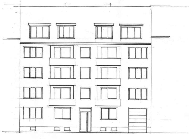
Mehrfamilienhaus mit 10 Wohneinheiten, Garagen und attraktiver Rendite.
In begehrter Zentrumslage von Kassel präsentieren wir Ihnen dieses gepflegte Mehrfamilienhaus mit solider Bausubstanz, guter Vermietbarkeit und langfristigem Wertsteigerungspotenzial.
Das ca. 1950 errichtete Objekt bietet eine Gesamtwohnfläche von rund 634 m² verteilt auf 10 Wohneinheiten sowie vier Garagen und einen PKW-Stellplatz auf einem ca. 474 m² großen Grundstück.
Objektdaten im Überblick
- Baujahr: ca. 1950
- Grundstücksfläche: ca. 474 m²
- Gesamtwohnfläche: ca. 634 m²
- Einheiten: 10 Wohneinheiten
Wohnungsgrößen:
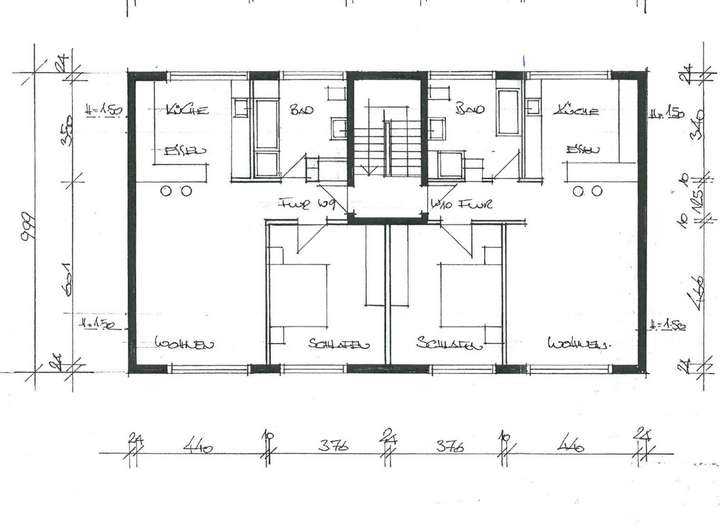
- 9 Einheiten mit je 3 Zimmern, Küche, Bad (je ca. 63–72 m²)
- 1 Einheit mit 1 Zimmer, Küche, Bad (ca. 36 m²)
Balkone: 8 vorhanden
Garagen: 4 vermietete Einzelgaragen
PKW-Stellplatz: 1 vermietet
Kellergeschoss: Voll unterkellert mit Mieterkellern und Trockenraum
Heizung: Gas-Etagenheizungen in allen Wohneinheiten
Mietverhältnisse und Rendite:
Bis auf eine kürzlich freigewordene Einheit im 2. Obergeschoss sind alle Wohnungen vermietet.
Ebenso sind sämtliche Garagen sowie der Stellplatz derzeit vermietet.
Monatliche Nettomiete Wohneinheiten inkl. der frei gewordenen Wohneinheit: 5.312,90 €
Jahresnettomiete Wohneinheiten: 63.754,80 €
Durchschnittliche Miete (Wohnfläche): ca. 8,38 €/m²
Monatliche Miete Garagen/Stellplatz: 235,00 €
Jahresnettomiete Garagen/Stellplatz: 2.820,00 €
Gesamte Jahresnettomiete: 66.574,80 €
Die Zufahrt zu den Stellplätzen erfolgt bequem über ein modernes elektrisches Sektionaltor mit Funksteuerung.
Die solide Mieterstruktur und die zentrumsnahe Lage gewährleisten eine sehr gute Vermietbarkeit.
Modernisierungen und Instandhaltung
Es wurden laufend Instandhaltungs- und Sanierungsmaßnahmen durchgeführt:
- Badsanierungen überwiegend ca. 2000
- Zählerzentralisierung ca. 2005
- Erneuerung des Dachstuhls mit Gauben ca. 2005
- Kunststoff-Isolierfenster nach Sanierungsbedarf erneuert
- Balkonbrüstungen erneuert ca. 2007
- Garagendachsanierung ca. 2006
- Fassadendämmung (WDVS 140 mm, rückseitig) 2016
- Neuer Oberputz rückseitig inkl. Armierung 2024
- Gaubenverblechung erneuert 2023
- Sanierung der Garagendurchfahrt 2023
Lagevorteile
Die zentrale Lage des Objekts bietet kurze Wege zu allen relevanten Infrastrukturen sowie eine hohe Nachfrage durch Studenten, Berufstätige und Pendler. Die Universität Kassel, zahlreiche Arbeitgeber sowie die Innenstadt sind schnell erreichbar.
Entfernungen:
- Universität Kassel (Campus Holländischer Platz): ca. 1,5 km
- Hauptbahnhof Kassel: ca. 600 m
- Fußgängerzone / Innenstadt: ca. 750 m
- Klinikum Kassel: ca. 2,2 km
- Rheinmetall: ca. 3,0 km
- KNDS (vormals Krauss-Maffei Wegmann): ca. 1,0 km
Fazit
Dieses Objekt stellt eine attraktive Kapitalanlage in zentrumsnaher Lage von Kassel dar. Die Kombination aus solider Bausubstanz, kontinuierlicher Instandhaltung und stabilen Mieteinnahmen bietet renditeorientierten Kapitalanlegern mit langfristigem Anlagehorizont eine verlässliche Perspektive.
Haben wir Ihr Interesse geweckt?
Dann freuen wir uns auf Ihre Kontaktaufnahme und stehen Ihnen gern für weitere Informationen oder einen Besichtigungstermin zur Verfügung.
Solide Kapitalanlage in zentraler Lage von Kassel
34117 Kassel
Die vollständige Adresse der Immobilie erhalten Sie vom Anbieter.
Auf Karte anzeigen
Die vollständige Adresse der Immobilie erhalten Sie vom Anbieter.
Finanzierungszertifikat
In nur zwei Minuten zu Ihrem persönlichen Finanzierungszertifkat.
Infos
| Haustyp | Mehrfamilienhaus |
|---|---|
| Etagenzahl | 5 |
| Wohnfläche ca. | 634 m2 |
| Grundstücksfläche | 474 m2 |
| Zimmer | 28 |
| Schlafzimmer | 10 |
| Badezimmer | 10 |
| Garage/Stellplatz | Garage |
| Anzahl Garage/Stellplatz | 5 |
Kosten
| Kaufpreis |
1.350.000 € |
|---|---|
| Provision |
7,14 % inkl. MwSt. vom beurkundeten Kaufpreis |
| Mieteinnahmen | 5.548 € |
Finanzierungsrechner:
Kaufpreis:
600.000 €
Eigenkapital:
600.000 €
Monatliche Rate
0 €
Effektiver Jahreszins
0 %
Sollzinsbindung
10 Jahre
Bausubstanz & Energieausweis
| Baujahr | 1950 |
|---|---|
| Objektzustand | Gepflegt |
| Qualität der Austattung | Normal |
| Heizungsart | Etagenheizung |
| Wesentliche Energieträger | Gas |
| Energieausweis | liegt vor |
| Energieausweistyp | Bedarfsausweis |
| Energieverbrauchskennwert | 132,6 kWh/(m²*a) |
| Energieeffizienzklasse | E |
132,6
kWh/(m²*a)
Energieeffizienzklasse E
- A+
- A
- B
- C
- D
- E
- F
- G
- H
- 0
- 25
- 50
- 75
- 100
- 125
- 150
- 175
- 200
- 225
- >250
Beschreibung des Objekts
Ausstattung
- 10 Wohneinheiten
- 4 Garagen + 1 PKW-Stellplatz
- 8 Balkone
- Elektrisches Sektionaltor
- Gas-Etagenheizungen
- Keller
- Trockenraum
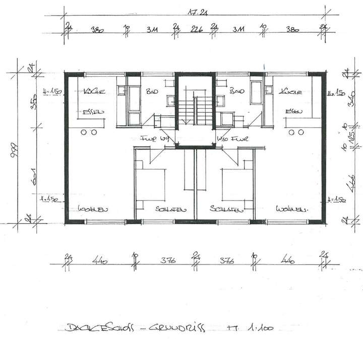
- Dachgeschoss mit Gauben
Lage
Zentrale Lage - nahe der Universität mit direkter ÖPNV Anbindung.
Alle erforderlichen behördlichen und/oder schulischen Einrichtungen, Einkaufsmöglichkeiten, Nahverkehrsanschlüsse, Ärzte, Apotheken, etc. befinden sich in unmittelbarer Umgebung und sind überwiegend innerhalb weniger Minuten gut zu Fuß zu erreichen.
Sonstige Angaben
Alle Angaben sind ohne Gewähr und basieren ausschließlich auf Informationen unseres Auftraggebers. Es wird keine Gewähr für die Vollständigkeit, Richtigkeit und Aktualität dieser Angaben von uns übernommen. Es gelten unsere AGBs.
Grundriss
Grundriss UG
>
>
Grundriss EG
>
>
Grundriss 1.-3.OG
>
>
Grundriss DG
>
>
Adresse
34117 Kassel
Interessante Orte
Preis- und Lageinformationen
Preistrend für Bestandsimmobilien in Nord-Holland