Dieser charaktervolle Vierseitenhof in Kirchscheidungen bietet eine seltene Gelegenheit für Selbstversorger, Tierfreunde, Kreative und alle, die Platz zum Leben und Arbeiten suchen.
Das Ensemble aus Wohnhaus und mehreren Nebengebäuden befindet sich auf einem großzügigen Grundstück mit 2.150 m² Gartenfläche, inklusive großer Zufahrt direkt zum Garten – perfekt für individuelle Nutzungskonzepte.
Die Highlights im Überblick:
- Großer, geschützter Innenhof – uneinsehbar, ideal als Rückzugsort oder gewerbliche Fläche
- Wohnhaus mit ca: 226 m² und Ausbaureserve im Dachgeschoss und den Nebengebäuden (Angabe zur Wohnfläche unverbindlich, Aufmaß durch Verkäufer - Exakte Berechnung auf Wunsch des Käufers möglich. Haftung ausgeschlossen.)
- Einbauküche (Eiche furniert), Eichenparkett
- Nebengebäude mit vielfältigem Potenzial: Werkstatt, Lager, Atelier oder Tierhaltung
- Dach der Stallung inkl. Dachstuhl 2023 erneuert, weitere Dächer im soliden Zustand
- Garten (2.150 m²) – perfekt für Gemüseanbau, Obstbäume, Permakultur oder Kleintierhaltung
- 2 Zufahren (Hof, Garten)
- separate Garage am Haus
- Elektrik 2010
- Zwei Schornsteine, einer davon frisch ummauert
- Teilweise unterkellert, ein Keller direkt an Küche, ein weiterer neben der Scheune
Modernisierungsbedarf:
- Bäder größtenteils aus den 1990ern, nicht funktional
- Teilweise ältere/beschädigte Fenster, Türen und offenliegende Innenausbauten
- Heizung, Elektrik
Zukunft & Energiepotenzial:
- Großzügige Dachflächen bieten sich ideal für Photovoltaik an – für eine nachhaltige Nutzung und langfristige Kostenersparnis.
Leben, Arbeiten, Gestalten – Ihr Projekt auf dem Land beginnt hier
06636 Kirchscheidungen
Die vollständige Adresse der Immobilie erhalten Sie vom Anbieter.
Auf Karte anzeigen
Die vollständige Adresse der Immobilie erhalten Sie vom Anbieter.
Finanzierungszertifikat
In nur zwei Minuten zu Ihrem persönlichen Finanzierungszertifkat.
Infos
| Haustyp | Sonstige |
|---|---|
| Wohnfläche ca. | 226 m2 |
| Grundstücksfläche | 2.150 m2 |
| Zimmer | 9 |
| Schlafzimmer | 4 |
| Badezimmer | 3 |
| Anzahl Garage/Stellplatz | 3 |
Kosten
| Kaufpreis |
185.000 € |
|---|---|
| Provision |
3,57 % inkl. MwSt. 3,57 % Käuferprovision inkl. MwSt., verdient und fällig mit Beurkundung des notariellen Kaufvertrags. |
Finanzierungsrechner:
Kaufpreis:
600.000 €
Eigenkapital:
600.000 €
Monatliche Rate
0 €
Effektiver Jahreszins
0 %
Sollzinsbindung
10 Jahre
Bausubstanz & Energieausweis
| Baujahr | 1900 |
|---|---|
| Letzte Sanierung | 2023 |
| Qualität der Austattung | Einfach |
| Heizungsart | Gas-Heizung |
| Wesentliche Energieträger | Gas |
| Energieausweis | liegt vor |
Beschreibung des Objekts
Lage
Makrolage:
Kirchscheidungen liegt im Bundesland Sachsen-Anhalt, eingebettet im Saale-Unstrut-Gebiet, einer bekannten Weinregion im Osten Deutschlands.
Die Ortschaft befindet sich zwischen den Städten Freyburg (Unstrut) und Nebra, beide gut erreichbar über die Weinstraße Saale-Unstrut.
Diese Region ist geprägt von einer reizvollen Kombination aus Natur, Kultur und Weinanbau.
Die Nähe zu größeren Städten wie Halle (Saale) und Naumburg sorgt für eine gewisse Anbindung an urbane Zentren, ohne dass der ländliche Charme verloren geht.
Mikrolage:
Kirchscheidungen selbst liegt in einer ruhigen, ländlichen Umgebung, umgeben von weitläufigen Feldern und sanften Weinbergen.
Die Infrastruktur im Dorf ist überschaubar, die Nahversorgung erfolgt hauptsächlich in den nahegelegenen Nachbarorten.
Die Lage ist besonders attraktiv für Menschen, die eine naturnahe und ruhige Wohnatmosphäre suchen, abseits von viel Verkehr und städtischem Trubel.
Sonstige Angaben
erfahren. professionell. diskret.
Unser Team setzt sich aus erfahrenen und engagierten Immobilienexperten zusammen, die sich jederzeit um Ihre Anliegen kümmern. Wir begleiten Sie durch den gesamten Prozess – von der Beratung über die Bewertung bis hin zum erfolgreichen Abschluss.
Wenn Sie auf der Suche nach einem zuverlässigen Partner für den Kauf oder Verkauf Ihrer Immobilie sind, dann nehmen Sie gerne unter +49 179 1445194 oder boettcher@valuesamplio.com Kontakt mit uns auf.
Wir stehen Ihnen für ein persönliches Gespräch zur Verfügung und helfen Ihnen gerne weiter.
Besuchen Sie auch gerne unsere Website und folgen Sie uns auf unseren Social Media Kanälen, um immer auf dem neuesten Stand zu bleiben.
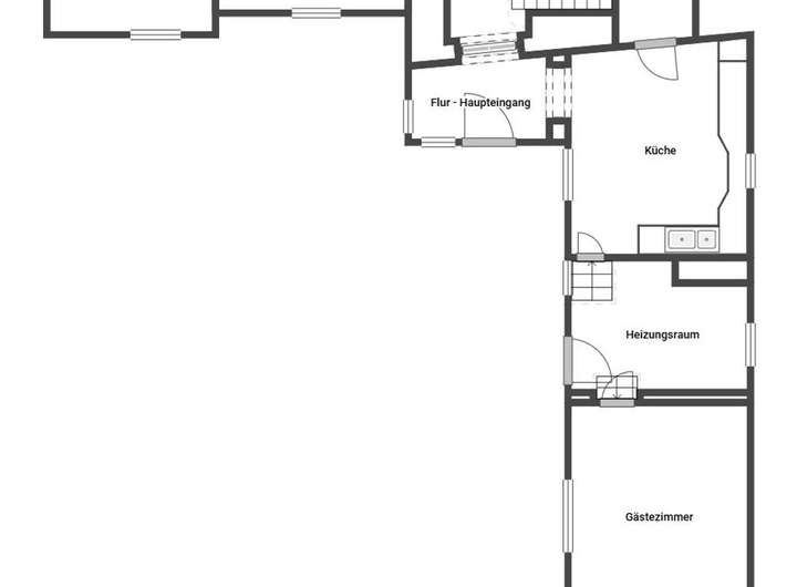
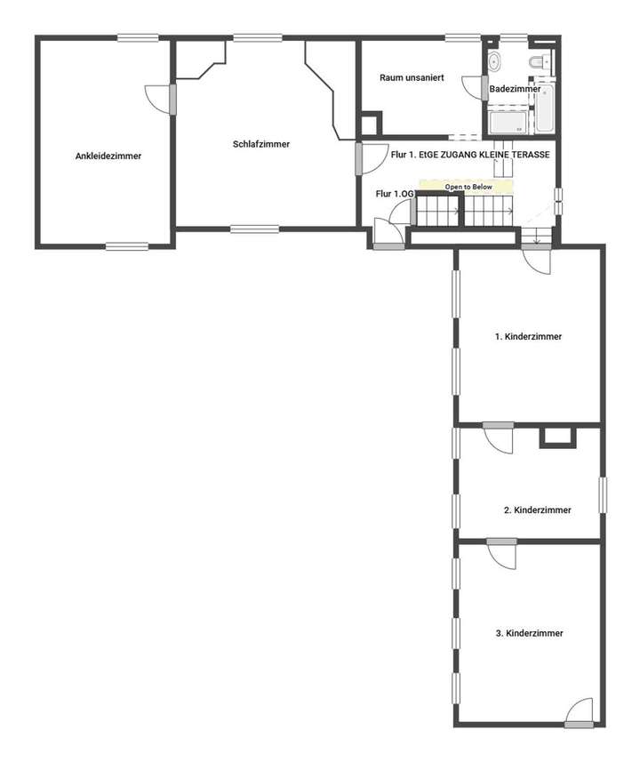
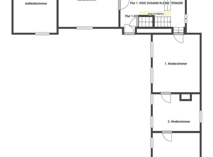
Grundriss
Grundriss Erdgeschoss
>
>
Grundriss 1. Etage
>
>
Adresse
06636 Kirchscheidungen
Interessante Orte
Preis- und Lageinformationen
Preistrend für Bestandsimmobilien in Kirchscheidungen