WIR BITTEN UM BEACHTUNG! **** Ab dem 05.01.2026 können Sie gerne wieder telefonisch oder per E-Mail einen Besichtigungstermin für diese Immobilie vereinbaren. ****
Dieses attraktive Einfamilienhaus in Sande bietet alles, was Sie für einen perfekten Start in die Zukunft brauchen. Mit einer großzügigen Wohnfläche von ca. 135 m² und einem beeindruckenden Grundstück von ca. 1.163 m² ist es ideal für Familien, die viel Platz und eine ruhige Umgebung suchen.
Die große Garage bietet nicht nur Platz für Ihr Auto, sondern auch zusätzliche Abstellmöglichkeiten – perfekt für Hobbyhandwerker oder Familien mit mehreren Fahrzeugen. Wenige Schritte führen Sie direkt zum Haus, das mit seiner soliden Bauweise aus dem Jahr 1955 überzeugt.
Mit insgesamt sechs Zimmern bietet das Haus viel Raum für Ihre individuellen Wohnträume. Ob gemütliches Wohnzimmer, großzügige Schlafzimmer oder ein separates Arbeitszimmer – hier finden Sie Platz für die ganze Familie und Ihre persönlichen Bedürfnisse.
Mit etwas Liebe und Kreativität können Sie hier Ihren persönlichen Wohntraum verwirklichen und ein Zuhause schaffen, das perfekt zu Ihnen passt.
Sie möchten sich persönlich einen Eindruck verschaffen? Dann senden Sie uns gerne eine Nachricht und vereinbaren Sie einen Besichtigungstermin mit uns. Wir freuen uns, Ihnen die Immobilien vorstellen zu können.
Zur Absprache eines Besichtigungstermins, freuen wir uns über die Angabe Ihrer Telefonnummer. Vielen Dank!
Fordern Sie gerne unser ausführliches Exposé an !
Wohnen, Leben und Genießen
26452 Sande
Die vollständige Adresse der Immobilie erhalten Sie vom Anbieter.
Auf Karte anzeigen
Die vollständige Adresse der Immobilie erhalten Sie vom Anbieter.
Finanzierungszertifikat
In nur zwei Minuten zu Ihrem persönlichen Finanzierungszertifkat.
Infos
| Haustyp | Einfamilienhaus |
|---|---|
| Etagenzahl | 1 |
| Wohnfläche ca. | 134 m2 |
| Grundstücksfläche | 1.163 m2 |
| Zimmer | 6 |
| Badezimmer | 1 |
| Garage/Stellplatz | Garage |
| Anzahl Garage/Stellplatz | 1 |
Kosten
| Kaufpreis |
240.000 € |
|---|---|
| Preis für Garage/Stellplatz | 0 € |
| Provision | Nein |
Finanzierungsrechner:
Kaufpreis:
600.000 €
Eigenkapital:
600.000 €
Monatliche Rate
0 €
Effektiver Jahreszins
0 %
Sollzinsbindung
10 Jahre
Bausubstanz & Energieausweis
| Baujahr | 1955 |
|---|---|
| Wesentliche Energieträger | Gas |
| Energieausweis | liegt vor |
| Energieausweistyp | Bedarfsausweis |
| Energieverbrauchskennwert | 288,1 kWh/(m²*a) |
| Energieeffizienzklasse | H |
288,1
kWh/(m²*a)
Energieeffizienzklasse H
- A+
- A
- B
- C
- D
- E
- F
- G
- H
- 0
- 25
- 50
- 75
- 100
- 125
- 150
- 175
- 200
- 225
- >250
Beschreibung des Objekts
Ausstattung
***HINWEIS:
Sehr geehrte Kunden,
sehr geehrte Kundinnen,
auch wir gönnen uns eine kleine Auszeit. Das Büro ist vom 23.12.2025 bis zum 02.01.2026 aufgrund der Feiertage geschlossen. Wir sind ab dem 05.01.2026 wieder wie gewohnt für Sie da!
Besichtigungstermine können gerne wieder ab dem 05.01.2026 vereinbart werden.
Wir wünschen Ihnen eine schöne Weihnachtszeit und einen guten Rutsch ins neue Jahr 2026!
Ihr CENTURY 21 Elpel & Kollegen Team ***
Wissenswertes:
+ moderne EBK im Preis enthalten
+ bereits modernisiertes Badezimmer
+ großes Garage und viele Nebenflächen
+ Stellfläche vor Garage
+ großer Garten mit Rasenroboter
+ ruhige und beliebte Wohnlage
Für die hier dargestellten Flächenangaben kann keine Haftung übernommen werden.
Lage
Ihr neues Zuhause in einer charmanten Gemeinde
Sande liegt im Nordwesten von Friesland, nur eine kurze Fahrt von der Nordseeküste entfernt. Die Gemeinde befindet sich in einer landschaftlich reizvollen Region, die durch ihre weiten Felder, Seen und die Nähe zur Nordsee geprägt ist. Die geographische Lage macht Sande zu einem idealen Ort für alle, die die Ruhe der Natur schätzen, aber dennoch die Nähe zu größeren Städten und urbanen Annehmlichkeiten suchen.
Die gute Anbindung an die Autobahnen und Bahnlinien ermöglicht es Ihnen, schnell nach Wilhelmshaven, Oldenburg oder auch in die umliegenden Regionen zu gelangen. Dadurch sind sowohl berufliche Wege als auch Freizeitaktivitäten bequem erreichbar.
In Sande finden Sie eine Vielzahl an Einkaufsmöglichkeiten, die den Alltag angenehm gestalten. Ob Supermärkte, Fachgeschäfte oder Wochenmärkte – hier ist alles vorhanden, um den täglichen Bedarf zu decken.
Für die medizinische Versorgung sorgt das Nordwest Krankenhaus Sanderbusch, das eine moderne und umfassende medizinische Betreuung bietet. Zusätzlich stehen Ihnen in der Gemeinde gut ausgestattete Ärzte, Apotheken und Gesundheitszentren zur Verfügung, sodass Sie sich hier rundum gut aufgehoben fühlen können.
Sonstige Angaben
Energieausweis:
Art: Bedarfsausweis
Endenergiebedarf: 288,1 kWh(m²a) (H)
Baujahr lt. Ausweis: 1955
Energieträger für Heizung und Warmwasser: Erdgas E
Baujahr Wärmeerzeuger: 2020
Käuferseitig provisionsfrei!
Für die hier dargestellten Flächenangaben kann keine Haftung übernommen werden.
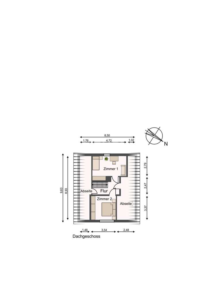
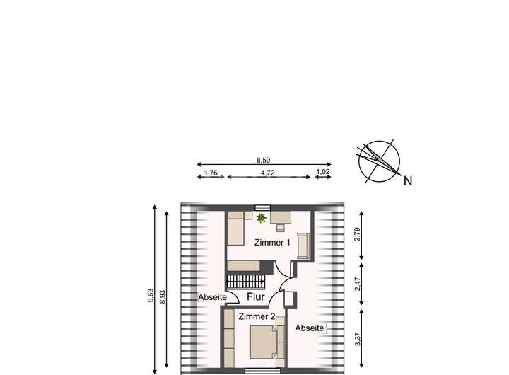
Grundriss
Grundriss EG (beispielhaft)
>
>
Grundriss DG (beispielhaft)
>
>
Adresse
26452 Sande
Interessante Orte
Preis- und Lageinformationen
Preistrend für Bestandsimmobilien in Sande