Das große Baugrundstück mit 2.540 m² Fläche befindet sich in Waldrandlage von Messel. Ein gültiger Bebauungsplan liegt vor: Allgemeines Wohngebiet, max. 600 m² Grundfläche, 3 Vollgeschosse, maximale Gebäudehöhe 11.5 Meter. Eine Baugenehmigung für ein geplantes Mehrfamilienhaus liegt bereits vor. Diese umfasst Keller, Erdgeschoss, zwei Obergeschosse sowie ein Staffelgeschoss und bietet Platz für insgesamt 19 Wohneinheiten. Im EG, 1.OG, 2. OG sind je 5 Wohnungen vorgesehen, im DG 4 Wohnungen, alles in allem ca. 1.700 m² Wohnfläche. Als Dach wurde ein begrüntes Flachdach geplant, sowie 22 KFZ-Stellplätze im Freien. Eine Verlängerung der Baugenehmigung wurde beantragt.
Die Entfernung nach Dieburg beträgt ca. 8 km nach Darmstadt-Mitte ca. 10 km mit dem Auto. Es besteht fußläufige Entfernung zum Bahnhof Messel, der an der Bahnstrecke Aschaffenburg - Darmstadt - Wiesbaden liegt.
Großes Baugrundstück mit Baugenehmigung für ein Mehrfamilienhaus in Messel-Waldrandlage
64409 Messel
Die vollständige Adresse der Immobilie erhalten Sie vom Anbieter.
Auf Karte anzeigen
Die vollständige Adresse der Immobilie erhalten Sie vom Anbieter.
Finanzierungszertifikat
In nur zwei Minuten zu Ihrem persönlichen Finanzierungszertifkat.
Infos
| Vermarktungsart | Kaufen |
|---|---|
| Grundstücksfläche | 2.540 m2 |
| Empfohlene Nutzung | Mehrfamilienhaus |
| Bebaubar nach | Bebauungsplan |
Kosten
| Miete pro Jahr |
1.750.000 € |
|---|---|
| Provision |
6% zzgl. gesetzl. MwSt. |
Finanzierungsrechner:
Kaufpreis:
600.000 €
Eigenkapital:
600.000 €
Monatliche Rate
0 €
Effektiver Jahreszins
0 %
Sollzinsbindung
10 Jahre
Beschreibung des Objekts
Lage
Messel ist eine Gemeinde mit ca. 4090 Einwohnern im südhessischen Landkreis Darmstadt-Dieburg, nordöstlich von Darmstadt. Messel umfasst nur eine Gemarkung und besteht aus dem Hauptort Messel und dem Wohnplatz und Ortsteil Grube Messel (nicht zu verwechseln mit dem daneben befindlichen UNESCO-Weltnaturerbe Grube Messel).
Die Gemeinde grenzt im Norden an die Städte Dreieich und Rödermark (beide Kreis Offenbach) und die Gemeinde Eppertshausen, im Osten an die Gemeinde Münster (Hessen) und die Stadt Dieburg, im Süden an die Gemeinde Groß-Zimmern, letztere alle im Landkreis Darmstadt-Dieburg, sowie im Westen an die kreisfreie Stadt Darmstadt.
Bekannt ist Messel vor allem durch die Fossilienfundstätte Grube Messel, die von der UNESCO 1995 zum UNESCO-Welterbe erklärt wurde. Seit 2010 gibt es am Eingang der Grube ein Besucher-Informationszentrum.
Das Fossilien- und Heimatmuseum Messel zeigt eine Ausstellung zu Fossilienfunden, der Bergbau-, Industrie- und Ortsgeschichte von Messel. Das Museum befindet sich im ältesten bekannten Schulhaus der Gemeinde, einem Gebäude, das 1785 errichtet wurde.
Im Osten der Gemarkung befinden sich Teilflächen des Naturschutzgebietes „Neuwiese von Messel“ mit artenreichen Waldwiesen und seltenen Pflanzen. Es ist eingebettet in das größere Natura2000-Gebiet „Neuwiese und Wald nordöstlich von Messel“ Im Norden liegt ein kleiner Teil des Naturschutzgebietes „Hegbachaue bei Messel“ im Gemeindegebiet von Messel. Es ist gleichzeitig Bestandteil des Natura2000-Gebiets „Kranichsteiner Wald mit Hegbachaue, Mörsbacher Grund und Silzwiesen
Der Bahnhof Messel liegt im Ortsteil Grube Messel, an der Main-Rhein-Bahn, zwischen Aschaffenburg und Wiesbaden über Darmstadt und Mainz. Der Bahnanschluss besteht seit 1858. Der Bahnhof ist von Messel aus über einen kombinierten Fuß- und Radfahrweg zu erreichen. Vor Ort bestehen Park + Ride-Parkplätze. Außerdem wird der Bahnhof von Linienbussen nach Darmstadt-Kranichstein (dort Anschluss an die Straßenbahn Darmstadt), Darmstadt-Oberwaldhaus und nach Rödermark angefahren. An den Wochenenden bestehen einzelne Busverbindungen nach Heusenstamm über Dreieich-Offenthal.
Sonstige Angaben
PROVISION:
Der Erwerber zahlt eine Provision in Höhe von 6 % zzgl. gesetzl. MwSt. auf den Kaufpreis an die Firma Kleinsteuber Immobilien GmbH.
Angebote nur für den Empfänger selbst bestimmt. Weitergabe an Dritte nicht gestattet, anderenfalls Schadensersatzleistung in Höhe der ortsüblichen Nachweis- bzw. Vermittlungsgebühr.
ANGEBOTE FREIBLEIBEND - UNVERBINDLICH - IRRTUM - AUSLASSUNGEN - ZWISCHENVERWERTUNG vorbehalten.
Wir weisen darauf hin, dass die von uns weitergegebenen Objektinformationen vom Verkäufer bzw. von Dritten stammen und von uns weder auf Richtigkeit noch auf Vollständigkeit überprüft worden sind.
Grundriss
Grundriss Untergeschoss
>
>
Grundriss EG
>
>
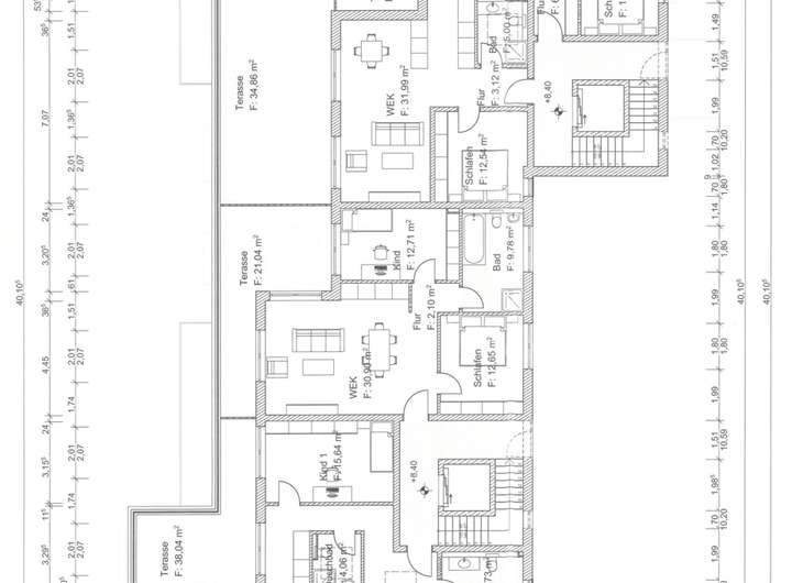
Grundriss 1.OG und 2.OG
>
>
Grundriss DG
>
>
Ansicht Schnitt
>
>