Das hier angebotene Haus hat eine Netto-Raumfläche von insgesamt ca. 118 m² und erreicht die Effizienzhaus-Klasse 40
Haustyp FAMILY - Maßgeschneiderte Klassiker zum Wohlfühlen.
Wenn Sie sich den Traum vom Einfamilienhaus erfüllen möchten, dann ist die Hausserie FAMILY genau das Richtige. Diese Familiendomizile überzeugen mit einer klassischen Architektur, mit einer kompakten und gut strukturierten Grundrissplanung. Mit Leidenschaft und hohem Verantwortungsgefühl für Ihre Investition bauen wir Ihr Einfamilienhaus.
Wir realisieren für Sie frei geplante Häuser zuverlässig und qualitativ hochwertig, passend zum Budget und nach all Ihren Vorgaben und Wünschen.
Die abgebildeten Hausentwürfe sind Gestaltungsvorschläge. Eine Vielzahl individueller Anpassungen wie z. B. Hausgröße, Dachgeometrie, Fenstergrößen und deren Position sind möglich.
STREIF-Energiespar-Häuser sind mit der optional erhältlichen Photovoltaikanlage inkl. Speicher für die Effizienzhaus-Klasse 40 plus ausgelegt. Gerne stellen wir für Ihr Haus eine Ökobilanz (KFWG) aus.
Dies bescheinigt, dass Ihr STREIF-Haus den neuen KfW-Förderrichtlinien für den klimafreundlichen Neubau (KFN) entspricht. So sichern Sie sich bis zu 170.000 EUR ein zinsgünstiges Darlehen.
Wir beraten Sie gerne beim Hauskauf! Sprechen Sie uns an: Werner Fett, Tel.: 01520 4950520
Super-Sommer-Preis - Tolles Neubau-Haus für Ihre Familie!
26721 Emden
Die vollständige Adresse der Immobilie erhalten Sie vom Anbieter.
Auf Karte anzeigen
Die vollständige Adresse der Immobilie erhalten Sie vom Anbieter.
Finanzierungszertifikat
In nur zwei Minuten zu Ihrem persönlichen Finanzierungszertifkat.
Infos
| Haustyp | Einfamilienhaus |
|---|---|
| Etagenzahl | 1 |
| Wohnfläche ca. | 118 m2 |
| Grundstücksfläche | 501 m2 |
| Zimmer | 4 |
| Schlafzimmer | 3 |
| Badezimmer | 2 |
Kosten
| Kaufpreis |
399.000 € |
|---|---|
| Provision | Nein |
Finanzierungsrechner:
Kaufpreis:
600.000 €
Eigenkapital:
600.000 €
Monatliche Rate
0 €
Effektiver Jahreszins
0 %
Sollzinsbindung
10 Jahre
Bausubstanz & Energieausweis
| Baujahr | 2026 |
|---|---|
| Bauphase | Haus in Planung (projektiert) |
| Qualität der Austattung | Gehoben |
| Heizungsart | Wärmepumpe |
Beschreibung des Objekts
Ausstattung
STREIF-Häuser erfüllen bereits im Standard die Effizienzhaus-Klasse KfW40.
Die STREIF-Passiv-Haus-Wände, eine effiziente Heiztechnik mit integrierter Wohnraumlüftung und Wärmerückgewinnung garantieren einen geringen Energieverbrauch und ein fantastisches Raumklima, das insbesondere Allergiker aufatmen lässt.
Streif-Leistungen sind MEHR-WERT - im Grundpreis enthalten!
- 20-monatige Festpreisgarantie
- inkl. individueller Grundrissgestaltung und Raumaufteilung
- inkl. gedämmter Fundamentplatte
- inkl. Wärmepumpen-Technologie mit integrierter Lüftungsanlage mit Wärmerückgewinnung
- inkl. Haustür von KERA und Fenster von Porta/Kömmerling
- inkl. Massivholz-Geschosstreppe aus eigener Produktion
- inkl. Sanitärobjekten von Markenherstellern
- inkl. Elektroinstallation
- inkl. Gütesiegel vom TÜV Rheinland - (schadstoffgeprüfte Materialien)
- inkl. KfW-Berechnungen & Nachweise
Was wir Ihnen sonst noch bieten:
Kostenlose Bauberatung inkl. Grundrissplanung
Ermittlung der Gesamt-Investition Ihres Bauvorhabens
Finanzierungs- & Fördermittelberatung
Die hohe Wertigkeit und Langlebigkeit eines STREIF-Energiespar-Hauses wird durch zahlreiche Auszeichnungen, Qualitäts- und Gütesiegel unabhängiger Institute und Verbände dokumentiert.
Der Angebotspreis ist inklusive Grundstück und bezieht sich auf die Standard-Ausbaustufe Fast-Fertig-Plus (technikfertig inkl. Bäder). Somit wären Ihre Eigenleistungen: Malerarbeiten, Bodenbeläge und die Innentüren. Selbstverständlich können wir Ihr Haus auch schlüsselfertig / bezugsfertig errichten.
Wir beraten Sie gerne beim Hauskauf! Sprechen Sie uns an: Werner Fett, Tel.: 01520 - 4950520
Lage
Das Baugebiet liegt im Nordwesten der ostfriesischen Seehafenstadt Emden im Stadtteil Conrebbersweg. Von hier aus sind sämtliche Ziele einfach und schnell zu Fuß, mit dem Fahrrad oder Auto zu erreichen. Unkompliziert gelangen Sie innerhalb weniger Minuten zu verschiedensten Einkaufsmöglichkeiten, Ärzten, Schulen, der Emder Innenstadt, dem Hauptbahnhof sowie der Autobahn A31.
Der Bebauungsplan Nr. D156 "Conrebbersweg West" III. Abschnitt, Teil A der Stadt Emden ist rechtskräftig. Die Baugrundstücke sind voll erschlossen und kurzfristig bebaubar.
Sonstige Angaben
Das im Gesamtpreis enthaltene Grundstück muss separat von unserem Kooperationspartner erworben werden.
Gerne planen wir für Sie Ihr ganz individuelles Traumhaus auf Ihrem Grundstück nach Ihren ganz persönlichen Wünschen.
Testen Sie unsere Leistungsfähigkeit! Wir freuen uns darauf.
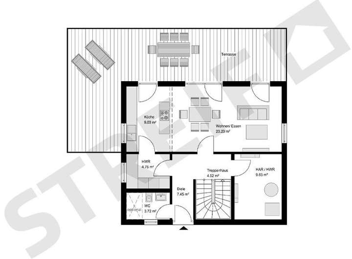
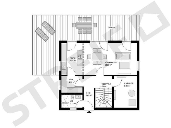
Grundriss
86794-7546-2-g
>
>
86795-7546-3-g
>
>
Adresse
26721 Emden
Interessante Orte
Preis- und Lageinformationen
Preistrend für Bestandsimmobilien in Conrebbersweg