Zum Verkauf kommt hier in der idyllischen Gemeinde Eckental, im Ortsteil Eckenhaid dieses helle und großzügige Reiheneckaus.
Das Haus aus Erstbesitz ist im Jahr 1986 erbaut worden, es verfügt über eine große Garage mit el. Tor, einen Balkon, einen Partykeller mit Sauna sowie ein Gartenhaus. Die Terrasse und der Garten haben einen gewachsenen Charm, der durch die modernen, hohen und großzügigen 5,5 Zimmer klasse ergänzt wird.
Auf einer Wohnfläche von ca. 141 m² ( Dachgeschoss ist ausgebaut ) verteilen sich insgesamt 5,5 Zimmer, die genügend Volumen und Deckenhöhe für individuelle Gestaltungsmöglichkeiten bieten. Hier können Sie Ihre Wohnträume verwirklichen und sich nach Ihren Vorstellungen ein gemütliches Zuhause schaffen. Das Haus verfügt zudem über ein Grundstück von 266 m² + Garage und anteiligem Garagenhof, eine Süd-Terrasse, einen Balkon und ein Gartenhaus für Fahrräder und Gartenequipment, auf dem Sie sich nach Lust und Laune im Freien erholen können. Ob als Spielplatz für die Kinder oder als grüne Oase zum Entspannen - hier ist alles möglich !
Das Haus verfügt über ein Gäste- WC, ein Bad mit Tageslicht, Wanne und Dusche und eine Dusche im Keller neben der Sauna im Hobbyraum.
Im Kellerbereich finden Sie Kellerfenster auf Bodenhöhe ( somit viel Tgeslicht ), einen Waschraum und die neue und moderne Ölheizung ( BJ 2019 mit einem 4000 Liter Tank.
Ein besonderes Highlight ist der gemauerte Kaminofen im offenen Wohn-Essbereich ( auf aktuellem Stand seit 2020 ) neben der Küche ( die Einbauküche mit E-Geräte sind im Kaufpreis enthalten.
Die Lage des Hauses ist ideal für all diejenigen, die die Natur lieben und gleichzeitig die Nähe zur Stadt schätzen. Eckental bietet eine ruhige und familienfreundliche Umgebung mit einer guten Infrastruktur und zahlreichen Freizeit- und Einkaufsmöglichkeiten. Zudem sind die Verkehrsanbindungen ( nach Nürnberg oder Erlangen binnen 20 km ) per Bahn oder dem Auto optimal.
Mit einem Kaufpreis von 415.000 Euro bietet diese Immobilie ein attraktives Angebot für Familien oder Paare, die sich den Traum vom Eigenheim erfüllen möchten.
Sichern Sie sich jetzt Ihr eigenes Stück vom Glück in Eckental und überzeugen Sie sich selbst von den Vorzügen dieser Immobilie und vereinbaren Sie noch heute einen Besichtigungstermin.
Der Energieausweis ist in Bearbeitung und liegt bei Besichtigung vor !
BEZUGSBEREIT ! Helles großzügig geschnittenes Reiheneckhaus mit Garten, Garage Kamin in Eckental
90542 Eckental
Die vollständige Adresse der Immobilie erhalten Sie vom Anbieter.
Auf Karte anzeigen
Die vollständige Adresse der Immobilie erhalten Sie vom Anbieter.
Finanzierungszertifikat
In nur zwei Minuten zu Ihrem persönlichen Finanzierungszertifkat.
Infos
| Haustyp | Reiheneckhaus |
|---|---|
| Etagenzahl | 3 |
| Wohnfläche ca. | 141 m2 |
| Nutzfläche | 190 m2 |
| Grundstücksfläche | 266 m2 |
| Bezugsfrei ab | sofort |
| Zimmer | 5,5 |
| Schlafzimmer | 4 |
| Badezimmer | 1 |
| Garage/Stellplatz | Außenstellplatz |
Kosten
| Kaufpreis |
395.000 € |
|---|---|
| Provision |
2,98% vom Kaufpreis (inkl. MwSt.) |
Finanzierungsrechner:
Kaufpreis:
600.000 €
Eigenkapital:
600.000 €
Monatliche Rate
0 €
Effektiver Jahreszins
0 %
Sollzinsbindung
10 Jahre
Bausubstanz & Energieausweis
| Baujahr | 1985 |
|---|---|
| Letzte Sanierung | 2019 |
| Objektzustand | Modernisiert |
| Qualität der Austattung | Normal |
| Heizungsart | Zentralheizung |
| Wesentliche Energieträger | Öl |
| Energieausweis | liegt zur Besichtigung vor |
Beschreibung des Objekts
Lage
Die Immobilie befindet sich in zentraler Lage von Eckental-Eckenhaid, einem begehrten Ortsteil der Marktgemeinde Eckental im Landkreis Erlangen-Höchstadt. Die Eckenhaider Hauptstraße liegt verkehrsgünstig und doch angenehm ruhig – ideal für Familien, Berufspendler und Ruhesuchende gleichermaßen.
Eckenhaid überzeugt durch seine ausgezeichnete Infrastruktur: In fußläufiger Entfernung befinden sich Einkaufsmöglichkeiten für den täglichen Bedarf, Apotheken, Ärzte, Banken sowie Kindergärten und Schulen. Die nächstgelegene Bushaltestelle ist nur wenige Schritte entfernt und ermöglicht eine schnelle Anbindung an den Bahnhof Eschenau, von dem aus Sie in ca. 20 Minuten bequem nach Nürnberg gelangen.
Die Umgebung ist geprägt von gepflegten Wohnhäusern, viel Grün und einer angenehmen Nachbarschaft. Für Freizeit und Erholung sorgen zahlreiche Spazier- und Radwege in der umliegenden Natur sowie Sport- und Vereinsangebote direkt im Ort.
Wer das Leben im Grünen schätzt, aber auf die Nähe zur Stadt nicht verzichten möchte, ist hier genau richtig!
Sonstige Angaben
Nachweis- oder Vermittlungsprovision:
Für den Käufer beträgt die Provision 2,5% + MwSt. des notariell beurkundeten Kaufpreises, einschließlich 19% Mehrwertsteuer. Die Provision ist fällig am Tag der notariellen Beurkundung. Es besteht ein identischer Vertrag mit dem Eigentümer.
Haftungsausschluss:
Alle Angaben in diesem Exposé wurden nach bestem Wissen und Gewissen des Eigentümers erstellt. Die Thomas Schaller Immobilien übernimmt keine Gewähr für die Richtigkeit und Vollständigkeit der angegebenen Informationen.
Besichtigungen:
Besichtigungen sind nur nach vollständigem Ausfüllen des Kontaktformulars (inklusive Telefonnummer) möglich. Nach Eingang des Formulars wird Frank Himmelseher Sie schnellstmöglich zurückrufen. Online-Anfragen sind selbstverständlich willkommen.
Grundriss
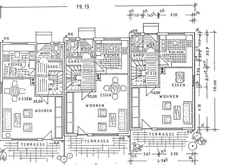
Erdgeschoss
>
>
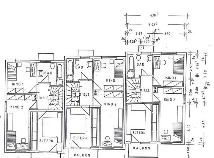
Obergeschoss
>
>
Keller
>
>
Adresse
90542 Eckental
Interessante Orte
Preis- und Lageinformationen
Preistrend für Bestandsimmobilien in Eckental