Das schön gelegene und gut geschnittene Baugrundstück befindet sich in Oberbergkirchen, im Landkreis Mühldorf am Inn, mit ca. 1.800 Einwohnern in der Region Südostbayern nördlich des Isartals.
Das Grundstück mit ca. 367m² befindet sich in mitten des Wohngebietes, in ruhiger Lage auf einer Anhöhe mit nur wenige Gehminuten in das Ortszentrum, sowie Spazierwegen über Wiesen und Felder.
Das Grundstück ist trapezförmig zugeschnitten und biete tolle Voraussetzungen zur Bebauung. Das Grundstück kann nach §34 (umliegende Bebauung) bebaut werden.
Somit besteht die Möglichkeit für eine Familie sich den Traum vom Eigenheim auf diesem Grundstück zu realisieren und den perfekten Rückzugsort für die Familie zu schaffen.
Insgesamt kann ein Baukörper mit E+D errichtete werden, somit ein Haus mit Keller, Erdgeschoss und ausgebautem Dachgeschoss.
Die Eigentümer haben 1999 eine Bauvoranfrage für ein Doppelhaus bei der Gemeinde eingereicht und hatten einen positiven Bescheid hierzu erhalten. Im direkten Umfeld gibt es auch geteilte Grundstücke die mit einem Doppelhaus bebaut wurden, weshalb diese Möglichkeit generell ebenfalls besteht.
Die ca. Maße des Grundstücks sind wie folgt:
- Westseite ca. 16,5 m
- Südseite: ca. 23 m
- Ostseite: ca. 12,5 m
- Nordseite: ca. 27 m
Die genauen Bebauungsmöglichkeiten sind vom Käufer mit der Gemeinde nach dessen Vorstellungen direkt abzuklären. Es wurde keine neue Bauvoranfrage gestellt, sondern es wurden nur mündliche Informationen eingeholt.
ALLES AUF EINEN BLICK:
• Grundstücksgröße: ca. 367 m²
• Grundstückszuschnitt: trapezförmig
• Bebauungsmöglichkeiten: Doppelhaushälften
• Verfügbarkeit: kurzfristig nach Absprache
SCHÖNES, GUT GESCHNITTENES BAUGRUNDSTÜCK MIT CA. 367 M² IN SCHÖNER, RUHIGER WOHNLAGE
84564 Oberbergkirchen
Die vollständige Adresse der Immobilie erhalten Sie vom Anbieter.
Auf Karte anzeigen
Die vollständige Adresse der Immobilie erhalten Sie vom Anbieter.
Finanzierungszertifikat
In nur zwei Minuten zu Ihrem persönlichen Finanzierungszertifkat.
Infos
| Vermarktungsart | Kaufen |
|---|---|
| Grundstücksfläche | 367 m2 |
| Empfohlene Nutzung | Doppelhaus |
| Bebaubar nach | wie Nachbarbebauung |
| Verfügbar ab | kurzfristig nach Absprache |
Kosten
| Miete pro Jahr |
165.000 € |
|---|---|
| Provision |
3,57% inkl. gesetzlicher MwSt. |
Finanzierungsrechner:
Kaufpreis:
600.000 €
Eigenkapital:
600.000 €
Monatliche Rate
0 €
Effektiver Jahreszins
0 %
Sollzinsbindung
10 Jahre
Beschreibung des Objekts
Lage
Die Gemeinde Oberbergkirchen liegt inmitten des tertiären Hügellandes im nördlichen Landkreis Mühldorf a. Inn, Regierungsbezirk Oberbayern. Noch vor 9 Mio. Jahren lag die Landschaft am Rande eines riesigen Flusses, der sich in Richtung des Mittelmeeres bewegte. Die geologische Besonderheit ließ zahlreiche Fossilien entstehen, die heute in der Tertiärwelt Aubenham bestaunt werden können. Nach dem Entstehen der Alpen formten eiszeitliche Gletscher unsere Landschaft.
Die Gemeinde Oberbergkirchen wurde im Jahre 788 n. Chr. erstmals im „in diculus“ des Erzbischofs Arno von Salzburg erwähnt. Im späteren Mittelalter entwickelte sich Oberbergkirchen unter einer Adelsfamilie zur Hofmark, einem besonderen Rechtsbezirk. Hier übte der Hofmarksherr bzw. sein Richter die niedere Gerichtsbarkeit, die Polizeigewalt sowie das notarielle Recht aus. Auch die Pfarrei Oberbergkirchen mit den Zwiebeltürmen des 18. Jahrhunderts, ein markantes Bau-Ensemble und Wahrzeichen des Ortes.
Oberbergkirchen liegt im nördlichen Landkreises Mühldorf a. Inn im Regierungsbezirk Oberbayern, ca. 80 km östlich von München. Es ist erreichbar über die Bundesstraße 12 (Ausfahrt Ampfing oder Mühldorf a. Inn) oder über Bundesstraße 299 (Ausfahrt Neumarkt-Sankt Veit). Die nächstgelegenen Bahnhöfe befinden sich in Ampfing, Mühldorf a. Inn und Neumarkt-Sankt Veit.
Die Gemeinde hat sich den dörflichen Charakter erhalten und hat ein aktives Dorfleben!
Den Bewohnern stehen verschiedene Vereinsangebote, Kindergarten, Dorfkrämerei, Supermärkte uvm. unmittelbar zur Verfügung und runden das wohnen in Oberbergkirchen ab.
Grundriss
Grundriss Erdgeschoss
>
>
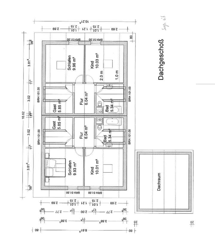
Grundriss Dachgechoss
>
>
Grundriss Kelergeschoss
>
>
Ansicht Süd-Ost
>
>
Ansicht Nord-West
>
>