Viel günstiger Wohnraum für eine Familie mit Kindern – Fachwerk aus Eiche!
Diese außergewöhnliche Eigentumswohnung erstreckt sich über drei Etagen und bietet mit
ca. 139,91 m2 Wohnfläche das Wohngefühl eines eigenen Hauses – eine seltene Gelegenheit
für alle, die das Besondere suchen. Die Einheit steht derzeit leer und kann somit kurzfristig
bezogen oder individuell gestaltet werden.
Bereits beim Betreten fällt der eigenständige Charakter der Immobilie ins Auge. Vom Unterge-
schoss, das praktische Stauraummöglichkeiten bietet, führt eine charmante Holztreppe direkt
ins Erdgeschoss.
Hier erwarten Sie ein gemütliches Wohnzimmer mit echtem Holzboden, eine separate Küche,
ein innenliegendes Badezimmer sowie ein separates WC. Zwei weitere Räume lassen sich
flexibel als Schlafzimmer, Büro oder Gästezimmer nutzen.
Besonders praktisch: Auf dieser Etage gibt es eine separat abschließbare Tür, die den direk-
ten Zugang zu den gemeinschaftlichen Heiz- und Technikräumen sowie zum Garten auf der
Rückseite des Hauses ermöglicht.
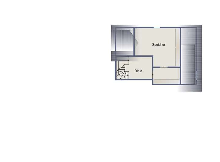
Im Obergeschoss befinden sich zwei weitere Schlafzimmer sowie ein helles Tageslichtbad.
Das darüberliegende Dachgeschoss beherbergt einen ausgebauten Speicher, der sich her-
vorragend als Homeoffice oder Hobbyraum eignet.
Die Wohnung ist mit zweifach verglasten Holzfenstern ausgestattet. Im Jahr 1995 wurde die
gesamte Einheit umfassend modernisiert – inklusive Elektrik, Heizungs- und Wasserleitungen.
Gleichzeitig wurde das gesamte Gebäude von innen gedämmt.
Ein separater Gartenanteil im gemeinschaftlichen Gartenbereich sowie eine eigene, ab-
schließbare Garage runden dieses attraktive Angebot ab.
Wohnen wie im eigenen Haus – großzügige Maisonette mit Garten und Garage!
75446 Wiernsheim
Die vollständige Adresse der Immobilie erhalten Sie vom Anbieter.
Auf Karte anzeigen
Die vollständige Adresse der Immobilie erhalten Sie vom Anbieter.
Finanzierungszertifikat
In nur zwei Minuten zu Ihrem persönlichen Finanzierungszertifkat.
Infos
| Wohnungskategorie | Maisonette |
|---|---|
| Etagenzahl | 3 |
| Wohnfläche ca. | 139 m2 |
| Zimmer | 6 |
| Schlafzimmer | 4 |
| Badezimmer | 2 |
Kosten
| Kaufpreis |
319.000 € |
|---|---|
| Provision |
3,57 % Käuferprovision inkl. 19 % MwSt. |
Finanzierungsrechner:
Kaufpreis:
600.000 €
Eigenkapital:
600.000 €
Monatliche Rate
0 €
Effektiver Jahreszins
0 %
Sollzinsbindung
10 Jahre
Bausubstanz & Energieausweis
| Baujahr | 1800 |
|---|---|
| Objektzustand | Renovierungsbedürftig |
| Heizungsart | Zentralheizung |
| Wesentliche Energieträger | Gas |
| Energieausweis | liegt vor |
| Energieausweistyp | Verbrauchsausweis |
| Energieverbrauchskennwert | 99,7 kWh/(m²*a) |
| Energieeffizienzklasse | C |
99,7
kWh/(m²*a)
Energieeffizienzklasse C
- A+
- A
- B
- C
- D
- E
- F
- G
- H
- 0
- 25
- 50
- 75
- 100
- 125
- 150
- 175
- 200
- 225
- >250
Beschreibung des Objekts
Ausstattung
Die Immobilie bietet Ihnen nachfolgende Ausstattung:
- Fachwerkhaus aus Eiche (nicht denkmalgeschützt), Baujahr 1800 (Annahme)!
- 1995 umfangreich saniert (Elektrik, Heizung, Wasserleitungen, Fassaden - und Dachdämmung)
-2-fach Isolierverglaste Holzfenster
-Holztreppe,
-Gaszentralheizung 2009
-sep. WC im Erdgeschoss mit Waschtisch
- innenliegendes Badezimmer im Erdgeschoss, raumhochgefließt, Dusche, Waschtisch, Waschmaschinenanschluss
- Tageslichtbadezimmer im Obergeschoss, raumhochgefließt, Badewanne, Waschtisch, WC,
-Bodenbeläge in Holzboden, Fliesen, Korkboden,
-Tapeten, teilweise Holzdecken
-Einbauküche,
- Garage
-Kellerabteil
-Gartenanteil im Gemeinschaftsgarten
- Gewölbekeller zur Gemeinschaftlichen Nutzung
- Die Wohneinheit verfügt über einen separat zugänglichen Eingang
Die obige Ausstattungsbeschreibung bezieht sich auf dominierende Merkmale.
Lage
Den ca. 1.200 Einwohnern bietet der Ortsteil Wiernsheim-Iptingen eine gute Infrastruktur. Einen Kindergarten sowie eine Bäckerei finden Sie direkt im Ort. Alle weiteren Einkaufsmöglichkeiten für den täglichen Bedarf, Ärzte, Apotheke sowie die Grund-, Haupt- und Werkrealschule finden Sie direkt in Wiernsheim.
Wiernsheim selbst ist über zwei Anschlussstellen der A 8 Stuttgart-Karlsruhe, nämlich Pforzheim-Süd/Wurmberg (5 km) und Heimsheim (7 km), zügig mit dem Auto zu erreichen. Aufgrund der guten Einbindung der Gemeinde Wiernsheim in den Öffentlichen Personennahverkehr (ÖPNV) kommt man von Wiernsheim aus auch mit dem Bus schnell ans Ziel: egal ob nach Mühlacker (Norden), Heimsheim/Leonberg (Süden), Nussdorf/Stuttgart (Osten) oder Pforzheim (Westen).
Weitere Informationen finden Sie auf der Internetseite: http://www.wiernsheim.de/startseite.html
Sonstige Angaben
Angaben und Haftungsvorbehalt: Alle Angaben in diesem Exposé wurden mit großer Sorgfalt zusammengestellt und auf ihre Korrektheit überprüft. Eine Haftung für Irrtümer (z. B. bei Flächen- / Maßangaben) wird dennoch ausgeschlossen. Im Exposé enthaltene Illustrationen und Fotos sind teilweise als Vorschläge, Entwürfe und Muster zu verstehen und nicht als wesentliche Elemente im Sinne der Baubeschreibung. Sie repräsentieren den Planungsstand zum Zeitpunkt der Drucklegung. Grundrissillustrationen können z. B. Sonderausstattungen enthalten. Maßgebend für Erwerber ist die Baubeschreibung sowie die Objektbeschreibung in der Teilungserklärung.
Gender-Hinweis: Die in diesem Exposé, auf unserer Webseite sowie in unseren Social Media-Kanälen gewählte männliche Form bezieht sich stets gleichermaßen auf weibliche, männliche und diverse Personen. Auf geschlechterspezifische Schreibweise und Mehrfachbezeichnungen wird ausschließlich zum Zweck der besseren Lesbarkeit verzichtet. Sämtliche personenbezogene Bezeichnungen in all unseren Publikationen sind somit geschlechtsneutral zu verstehen.
Grundriss
Erdgeschoss
>
>
Obergeschoss
>
>
Dachgeschoss
>
>
Adresse
75446 Wiernsheim
Interessante Orte
Preis- und Lageinformationen
Preistrend für Bestandsimmobilien in Wiernsheim