Projektgrundstück für Mehrfamilienhaus mit 8 Wohneinheiten in schöner Lage von Zerf –
- ideal zur Bebauung mit öffentlicher Förderung und hohem Tilgungszuschuss von bis zu 677.000 EUR und interessanten Steuervorteilen durch degressive Abschreibung von
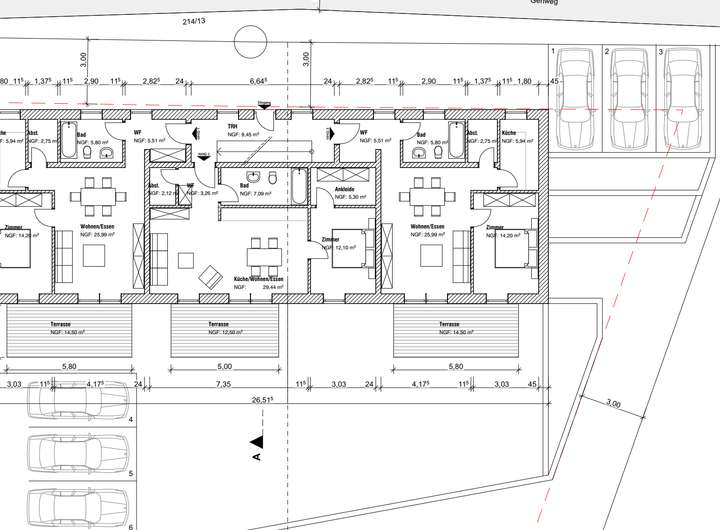
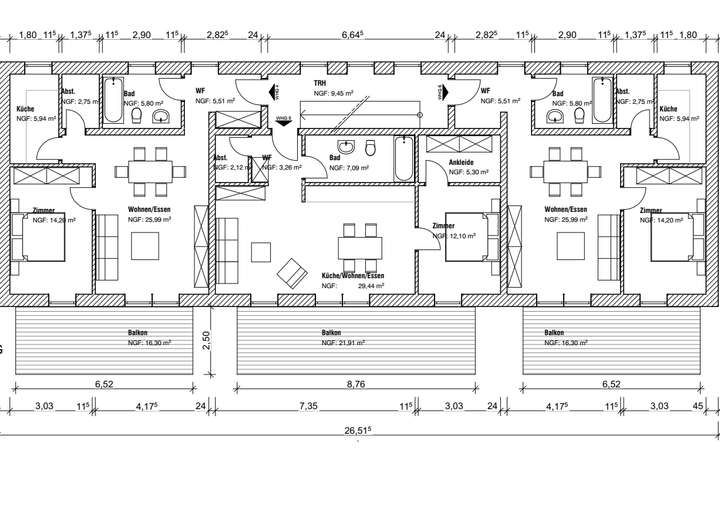
jährlich 5 %. Eine Bauvoranfrage für ein Mehrfamilienhaus mit 8 Wohnungen ist genehmigt. Die Planung sieht im Erd- und Obergeschoß jeweils 3 Wohneinheiten mit 2 Zimmer, Kochen, Abstellen, Bad, Terrasse/ Balkon mit Flächen von ca. 62 bzw ca. 64 m² vor.
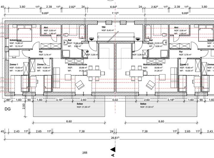
Im Dachgeschoß sind 2 Wohnungen mit 4 Zimmer, Kochen, Bad und Balkon mit ca. 90 m² vorgesehen. Alternativ ist auch eine Bebauung ohne Keller möglich. Es sind 12 Stellplätze geplant.
Es besteht die Möglichkeit die Wohnungen durch Mittel der ISB Rheinland-Pfalz öffentlich zu fördern. Die Höhe der Förderung richtet sich nach dem Standort des Objektes (Mietenstufe 1–7), der Belegbindung sowie der Belegbindungsdauer, der Wohnungsart, der Ausstattung und den Wohnungsgrößen. Zerf ist in der Mietenstufe 5 (also dritthöchsten Stufe) eingestuft. Hier beträgt die Grundförderung abhängig von der Belegbindung und Einkommenshöhe des Mieters 1.900 EUR bis 2.800 EUR pro m² Wohnfläche. Durch die ISB wird ein Tilgungszuschuss auf die Grundförderung von 40 bzw. 45 % sowie auf die Zusatzdarlehen von 50 % gewährt. Auf der Grundlage der Planung können bei den anerkannten Wohnflächen von 538 m² Darlehen von bis zu 1.506.400 EUR in Anspruch genommen werden. Dieser Betrag kann sich durch standortbedingte Mehrkosten um bis zu 16.000 EUR je Wohnung erhöhen. Hier kann ein Tilgungszuschuss von bis zu 45 % - entsprechend 677.880 EUR in Anspruch genommen werden. Das Darlehen verringert sich um diesen Betrag. Der Zinssatz ist bei der Belegbindung von 30 Jahren 1 %. Die Miete liegt bei dieser Förderung 7,00 EUR/m² mit jährlicher Steigerung um 1,75 %. Für Küchen können monatlich 20 EUR sowie für Außenstellplätze monatlich 30 EUR zusätzliche Mieten gefordert werden.
Bei der erhöhten Einkommensgrenze (+ 60 %) liegt die Förderung bei 1.900 EUR/m² anerkannte Wohnfläche - entsprechend 1.022.200 EUR zuzüglich Zusatzdarlehen für Standortbedingte Mehrkosten. Durch die ISB wird ein Tilgungszuschuss auf die Grundförderung von 30 % sowie auf die Zusatzdarlehen von 50 % gewährt. Auf der Grundlage der Planung können bei den anerkannten Wohnflächen von 538 m² Darlehen von bis zu 1.022.200 EUR in Anspruch genommen werden. Dieser Betrag kann sich durch standortbedingte Mehrkosten um bis zu 16.000 EUR je Wohnung erhöhen.Hier kann ein Tilgungszuschuss von bis zu 30 % - entsprechend
306.660 EUR zuzüglich Tilgungszuschuss von 50 % für anerkannte standortbedingte Mehrkosten in Anspruch genommen werden. Die Belegbindung liegt hier bei 20 Jahren. Der Zinssatz ist bei der Belegbindung von 20 Jahren 1 %. Die Miete liegt bei dieser Förderung 8,10 EUR/m² mit jährlicher Steigerung um 1,75 %. Für Küchen können monatlich 20 EUR sowie für Außenstellplätze monatlich 30 EUR zusätzliche Mieten gefordert werden. Details finden Sie unter https://isb.rlp.de/foerderung/551.html.
Unabhängig von der Föderung über die ISB Rheinland-Pfalz ist bei entsprechende Bauweise bzw. entsprechenden Nachweisen eine KFW-Förderung nach dem Programm 298 bzw. 296 möglich. Hier sind Darlehen von 100.000 EUR je Wohnung möglich. Hier betragen die Zinssätze ab 1,07 %.
Die neu entstehenden Wohnungen können mit der degressiven Abschreibung nunmehr mit jährlich 5 % bezogen auf den jeweiligen Buchwert/Restwert abgeschrieben werden. Hierdurch können hohe Steuervorteile erzielt werden. Wir übernehmen keine steuerliche Beratung und keine Haftung für steuerliche Ziele. Hierzu informiert Sie Ihr Steuerberater umfassend
Zuschuß von 677.000 EUR + hohe Steuervorteile- Grundstück für 8 WE in Zerf
54314 Zerf
Die vollständige Adresse der Immobilie erhalten Sie vom Anbieter.
Auf Karte anzeigen
Die vollständige Adresse der Immobilie erhalten Sie vom Anbieter.
Finanzierungszertifikat
In nur zwei Minuten zu Ihrem persönlichen Finanzierungszertifkat.
Infos
| Vermarktungsart | Kaufen |
|---|---|
| Grundstücksfläche | 1.160 m2 |
| Bebaubar nach | wie Nachbarbebauung |
Kosten
| Miete pro Jahr |
199.000 € |
|---|---|
| Provision | Nein |
Finanzierungsrechner:
Kaufpreis:
600.000 €
Eigenkapital:
600.000 €
Monatliche Rate
0 €
Effektiver Jahreszins
0 %
Sollzinsbindung
10 Jahre
Beschreibung des Objekts
Lage
Zerf, gefragter Wohnort ca. 20 Autominuten von Trier. Zerf verfügt über eine sehr gute Infrastruktur. Grundschule mit Essen und Nachmittagsbetreuung, Kindertagesstätte mit Nachmittagsbetreuung, Supermarkt, Banken, Bäckereien, verschiedene Geschäfte, Gastronomie, Ärzte, Apotheke etc. sind im Ort vorhanden.
Sonstige Angaben
Vereinbaren Sie einen Besichtigungs/Beratungstermin.
In Zusammenarbeit mit einem Finanzierungsvermittler sind wir Ihnen gerne bei der Gestaltung Ihrer Finanzierung behilflich.
Weitere interessante Kauf- oder Mietangebote finden Sie unter www.scherf-immobilien.de