Einmal streichen, einziehen und wohlfühlen! In ruhiger, geschützter Lage in zweiter Reihe präsentiert sich dieses moderne Einfamilienhaus als Rückzugsort mit Privatsphäre und Komfort.
Die blickgeschützte Terrasse und der gepflegte Garten schaffen eine Oase der Entspannung mitten
im Alltag.
Verstecktes Traumhaus mit Garten
78737 Fluorn-Winzeln
Die vollständige Adresse der Immobilie erhalten Sie vom Anbieter.
Auf Karte anzeigen
Die vollständige Adresse der Immobilie erhalten Sie vom Anbieter.
Finanzierungszertifikat
In nur zwei Minuten zu Ihrem persönlichen Finanzierungszertifkat.
Infos
| Haustyp | Einfamilienhaus |
|---|---|
| Etagenzahl | 2 |
| Wohnfläche ca. | 160 m2 |
| Grundstücksfläche | 350 m2 |
| Bezugsfrei ab | nach Absprache |
| Zimmer | 7,5 |
| Badezimmer | 2 |
Kosten
| Kaufpreis |
675.000 € |
|---|---|
| Provision |
3,57 % inkl. ges. MwSt. Die Maklercourtage für den Käufer beträgt 3 % aus dem Kaufpreis zuzüglich der gesetzlichen MwSt., somit gesamt 3,57 %. |
Finanzierungsrechner:
Kaufpreis:
600.000 €
Eigenkapital:
600.000 €
Monatliche Rate
0 €
Effektiver Jahreszins
0 %
Sollzinsbindung
10 Jahre
Bausubstanz & Energieausweis
| Baujahr | 2015 |
|---|---|
| Letzte Sanierung | 2025 |
| Bauphase | Haus fertig gestellt |
| Objektzustand | Neuwertig |
| Qualität der Austattung | Gehoben |
| Heizungsart | Holz-Pelletheizung |
| Wesentliche Energieträger | Pelletheizung |
| Energieausweis | liegt vor |
| Energieausweistyp | Verbrauchsausweis |
| Energieverbrauchskennwert | 70,0 kWh/(m²*a) |
| Energieeffizienzklasse | B |
70,0
kWh/(m²*a)
Energieeffizienzklasse B
- A+
- A
- B
- C
- D
- E
- F
- G
- H
- 0
- 25
- 50
- 75
- 100
- 125
- 150
- 175
- 200
- 225
- >250
Beschreibung des Objekts
Ausstattung
Das Haus überzeugt durch ein großzügiges, lichtdurchflutetes Raumkonzept mit hochwertiger Ausstattung.
Untergeschoss:
- Waschküche (Anschlüsse für ein drittes Bad vorhanden)
- Hobbyraum
- Lagerraum für Pellets
Erdgeschoss:
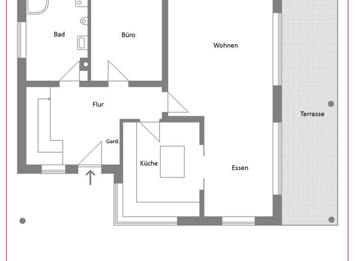
- großzügiges Gäste-Bad
- moderne Küche mit Glasschiebetüren und flexibel
abtrennbaren Essbereich
- offen gestalteter Wohn-/Essbereich mit direktem
Zugang zur Terrasse
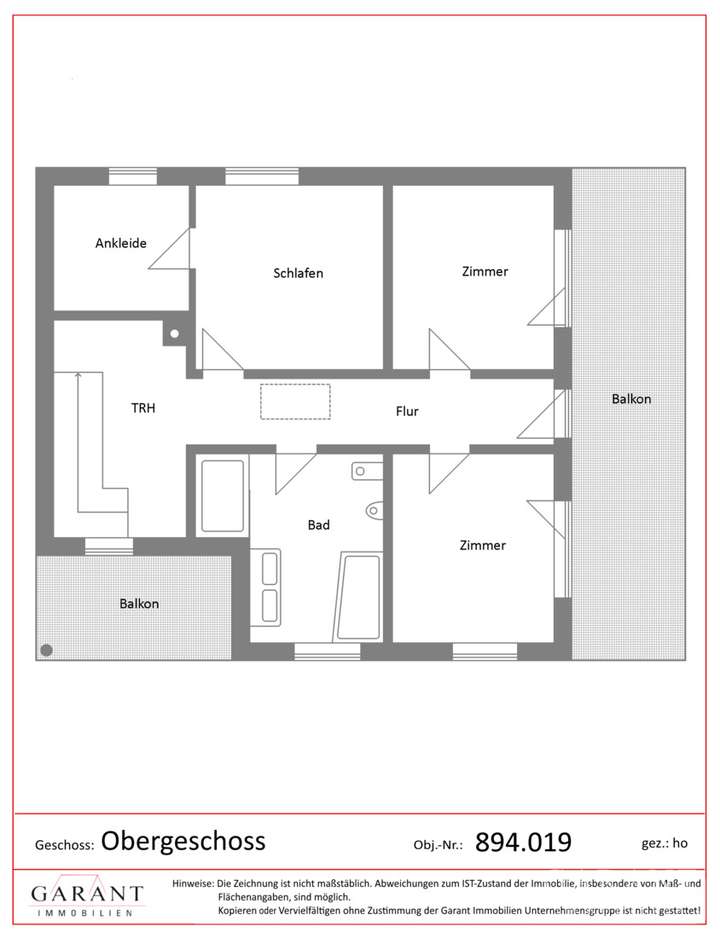
Obergeschoss:
- keine Dachschrägen auf der gesamten Ebene
- Bad mit Dusche, Badewanne, WC
- zwei Zimmer mit direktem Zugang zum Balkon
- ein Zimmer mit Ankleide
- zwei Balkone
Heizung:
- Effiziente Pelletsheizung für Fußbodenheizung
- vier neue Solarpaneele (installiert im Juli 2025)
Stellplatz:
- Außenstellplatz direkt am Haus (Carport möglich)
Lage
Einkaufsmöglichkeiten:
- EDEKA ca. 600 m
Gastronomie:
- Ristorante "Coni" Krone ca. 100 m
- Restaurant Kegelstüble ca. 600 m
- Erlebnisbauernhof Schmid ca. 1 km
Gesundheit:
- Zentral Apotheke ca. 100 m
- Ärzte im Umkreis von ca. 2-4 km
Bildungseinrichtungen:
- Kindergarten Fluorn ca. 1.9 km
- Grundschule, Heimbachschule Grundschule
ca. 2 km
- Grundschule, Grundschule Waldmössingen
ca. 2 km
Sonstige Angaben
Energieverbrauchsausweis Energiekennwert: 70,00 kWh/(qm*a) Energieeffizienz: Klasse B (kl.75) Heizung: Holz-Pelletheizung mit Pellets Baujahr laut Energieausweis: 2015
Grundriss
Grundriss Keller
>
>
Grundriss EG
>
>
Grundriss OG
>
>
Adresse
78737 Fluorn-Winzeln
Interessante Orte
Preis- und Lageinformationen
Preistrend für Bestandsimmobilien in Fluorn-Winzeln